BR1 4SB - 3 bedroom terraced house for sale in Hillcrest Road, BROMLE…

View on Property Piper

3 bedroom terraced house for sale in Hillcrest Road, BROMLEY, Kent, BR1

Summary - 54 HILLCREST ROAD BROMLEY BR1 4SB

3 bed 1 bath Terraced

**Standout Features:**
- Spacious three-bedroom mid-terraced home
- Quiet, desirable residential area
- Two separate reception rooms
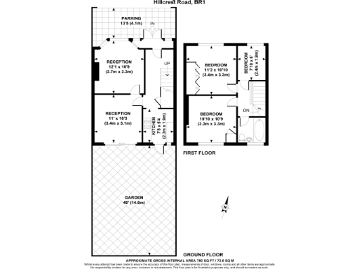
- Well-sized, secluded garden (extends to 14.6m)
- Off-street parking
- Under a mile to Grove Park station
- Local amenities and reputable schools nearby
- EPC Rating: C

This charming three-bedroom mid-terraced family home, priced from £425,000 to £450,000, provides an excellent opportunity for first-time buyers or savvy investors. Located on a quiet, sought-after road, the property boasts two spacious reception rooms and a welcoming kitchen, perfect for family gatherings. The well-sized garden offers an ideal space for outdoor leisure and children's playtime.

Upstairs, the home presents three comfortable bedrooms and a modern bathroom, catering to families of any size. With the added convenience of off-street parking and being less than a mile from Grove Park station, commuting into Central London is a breeze. The property is surrounded by reputable schools and essential amenities, making it ideal for families looking for a community feel.

This property may have some scope for cosmetic enhancements, but with its solid foundation and spacious layout, it represents a fantastic canvas for personalization. Don’t miss the chance to view this incredible home and envision your future here – opportunities like this in such a desirable area won't last long!

Property Details

Brochure Descriptions

Image Descriptions

Floorplan Description

Rooms

Textual Property Features

Detected Visual Features

EPC Details

Nearby Schools

Nearest Bars And Restaurants

,,,,}

Nearest General Shops

,,}

Nearest Grocery shops

,,}

Nearest Supermarkets

,,}

Nearest Religious buildings

,,}

Nearest Medical buildings

,,,}

Nearest Airports

,,}

Nearest Leisure Facilities

,,,,}

Nearest Tourist attractions

,,}

Nearest Train stations

,,,,}

Nearest Bus stations and stops

,,,,}

Nearest Hotels

,,}

Tags

Local Market Stats

AirBnB Data

Similar Properties

Meta

High Res Images

Compatible Images

Low res Images

Thumbnails

Raw Images

High Res Floorplan Images

Compatible Floorplan Images

Low res Floorplan Images

FloorplanImages Thumbnail

Raw Floorplan Images