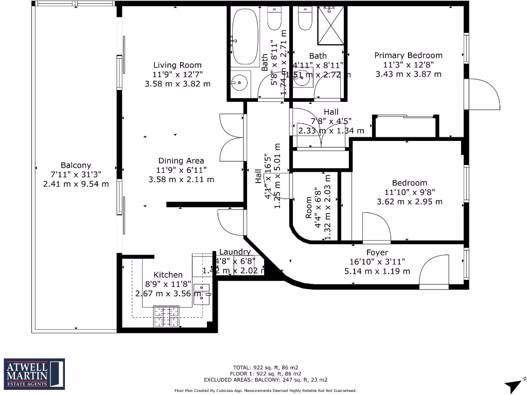
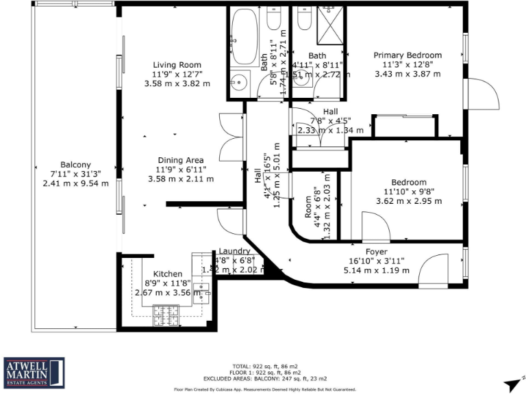
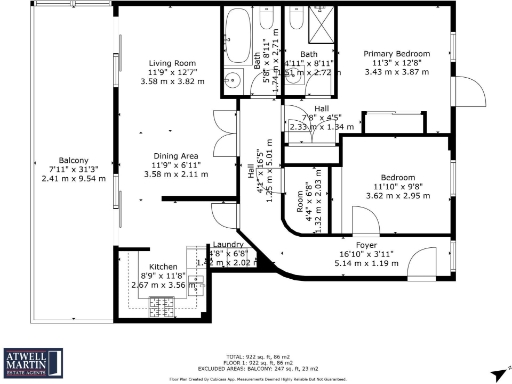
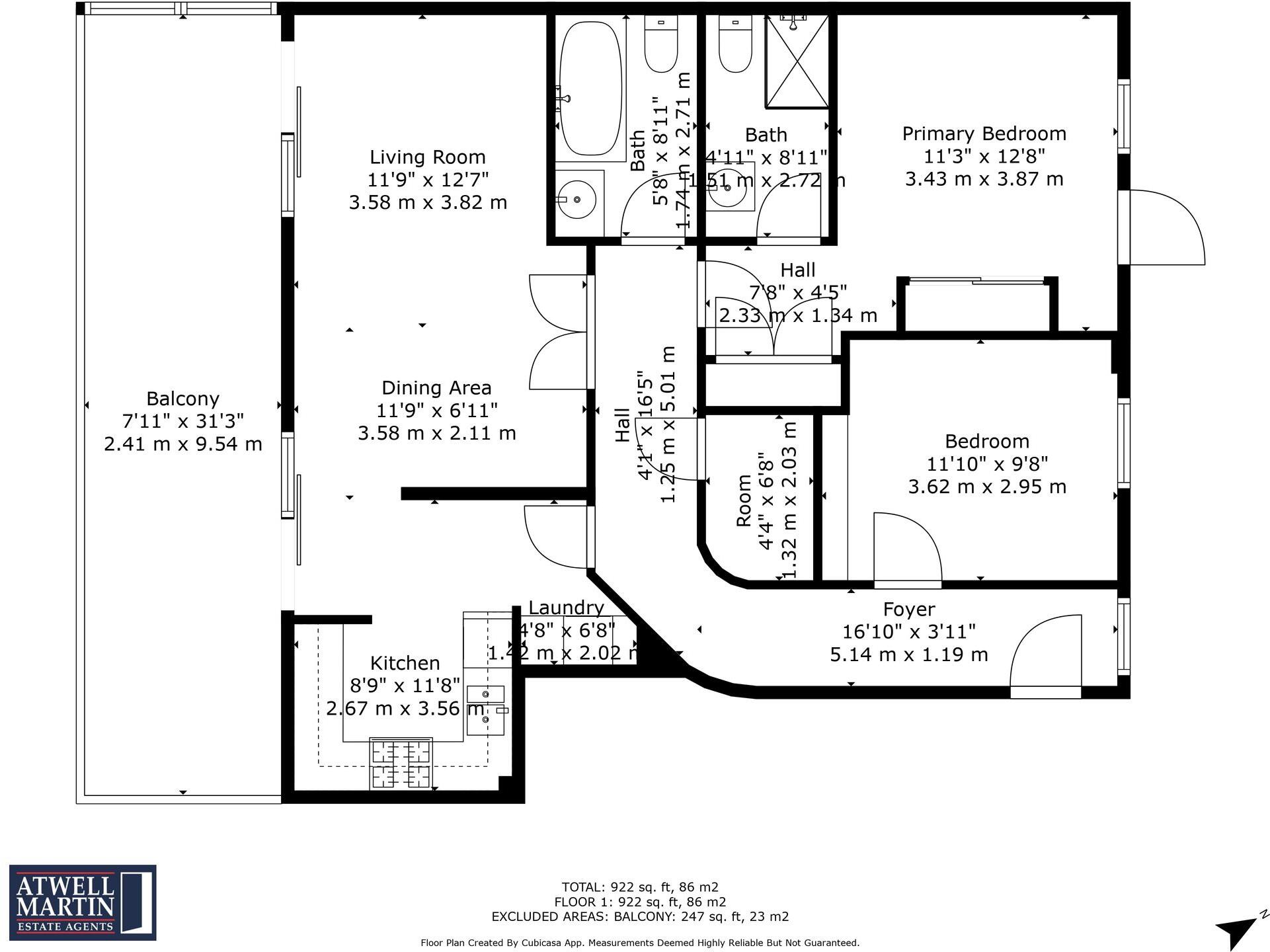
**Property Highlights:**
- Two double bedrooms, including a master en-suite
- Large south-facing terrace with stunning views of Mount Batten Pier
- Located in the secure, sought-after Queen Anne's Quay development
- Spacious lounge diner and separate kitchen/utility area
- Walking distance to The Aquarium, The Hoe, The Barbican, and city center
- 978-year lease remaining
- EPC Rating: B
Nestled in the prestigious Queen Anne's Quay development, this exquisite two-bedroom apartment offers a unique blend of elegant living and seaside charm. The spacious lounge diner provides an inviting atmosphere, leading to a separate kitchen/utility area perfect for culinary enthusiasts. Enjoy the lavish master en-suite and an additional double bedroom ideal for guests or a home office. The standout feature is the expansive south-facing terrace—an oasis for al fresco dining and breathtaking views.
This apartment not only boasts an impressive 978-year lease but is also ideally located within walking distance of vibrant city attractions, ensuring you never miss out on Plymouth's cultural and social offerings. With its modern aesthetics and secure setting, this property promises a comfortable lifestyle perfect for families, first-time buyers, or investors looking to capitalize on the local rental market. However, prospective owners should note the property is in an area classified as having above-average crime and may require some attention to local amenities and infrastructure such as slow broadband speeds. Elevate your living experience—schedule your viewing today!
2 bedroom apartment for sale in Queen Anne's Quay, Plymouth, PL4 — £350,000 • 2 bed • 2 bath • 1070 ft²
2 bedroom apartment for sale in Grand Parade, Plymouth, PL1 — £250,000 • 2 bed • 2 bath • 686 ft²
3 bedroom flat for sale in Parsonage Way, Plymouth, Devon, PL4 — £350,000 • 3 bed • 2 bath • 1249 ft²
4 bedroom penthouse for sale in Parsonage Way, Plymouth, PL4 — £575,000 • 4 bed • 3 bath • 1733 ft²
2 bedroom flat for sale in Grand Hotel Road, Plymouth, PL1 — £260,000 • 2 bed • 2 bath • 958 ft²
2 bedroom flat for sale in Citadel Road, Plymouth, PL1 — £160,000 • 2 bed • 1 bath • 571 ft²






















































