Move-in-ready town-centre flat with balcony, parking and quick station access..
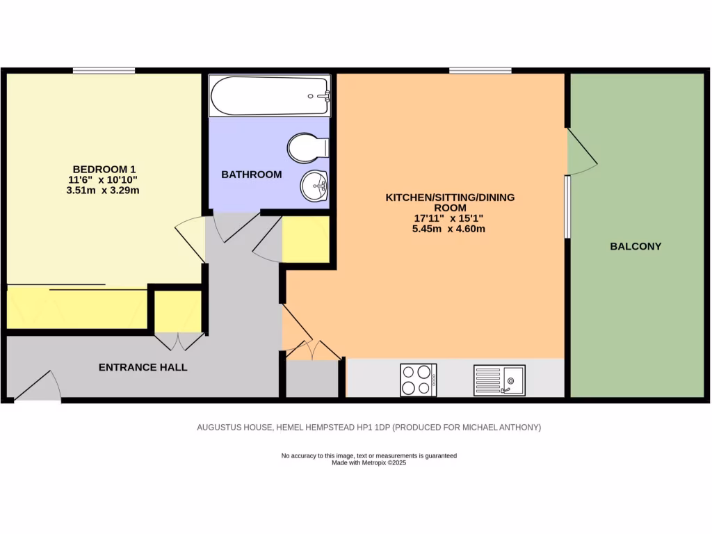
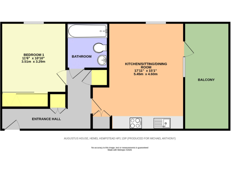
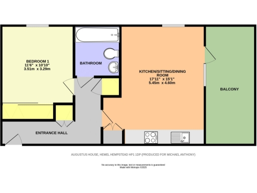
One double bedroom; open-plan living with fitted kitchen and balcony
Underfloor heating throughout; modern 2019 build and newly refurbished
Allocated off-street parking included
Leasehold with approximately 121 years remaining
Small footprint ~394 sq ft; best for single occupants or couples
Communal landscaped courtyard and childrens play area, not private garden
Heating via community scheme (not individual boiler)
Area records very high crime levels — consider security and insurance
This recently renovated one-bedroom apartment sits in the town centre of Hemel Hempstead, a short walk from the mainline station and local amenities. The open-plan living area and fitted kitchen open onto a balcony, creating a compact, modern city-home with underfloor heating throughout and allocated off-street parking.
Sized at about 394 sq ft, the flat is well suited to a first-time buyer or city professional seeking low-maintenance, contemporary living. Built in 2019, the block offers a landscaped communal courtyard with planted beds and a children’s play area rather than a private garden. The lease has approximately 121 years remaining.
Practical points to note: heating is provided via a community scheme rather than an individual boiler, and the development sits in an area with very high recorded crime levels—buyers should factor local security and insurance implications into their decision. Council tax is described as affordable, and broadband and mobile signals are strong.
Overall, this apartment offers a convenient, move-in-ready base in a central location with sensible running costs and modern fixtures. It will appeal to buyers prioritising location, low upkeep and good transport links, while those needing larger living space or private outdoor space may find the footprint limiting.
1 bedroom flat for sale in Normandy House Wolsey Road, Hemel Hempstead, HP2 — £197,500 • 1 bed • 1 bath • 369 ft²
1 bedroom flat for sale in Wolsey Road, Hemel Hempstead, HP2 — £170,000 • 1 bed • 1 bath • 395 ft²
1 bedroom apartment for sale in Midland Road, Hemel Hempstead, HP2 — £210,000 • 1 bed • 1 bath • 495 ft²
1 bedroom flat for sale in Cotterells, Hemel Hempstead, HP1 — £223,000 • 1 bed • 1 bath • 459 ft²
1 bedroom flat for sale in Wolsey Road, Hemel Hempstead, HP2 — £190,000 • 1 bed • 1 bath • 375 ft²
1 bedroom apartment for sale in Marlowes, Hemel Hempstead, HP1 — £250,000 • 1 bed • 1 bath • 416 ft²










































