Move-in ready home with parking and garden on a generous plot.
Two bedrooms in a single-storey layout, ideal for easy living
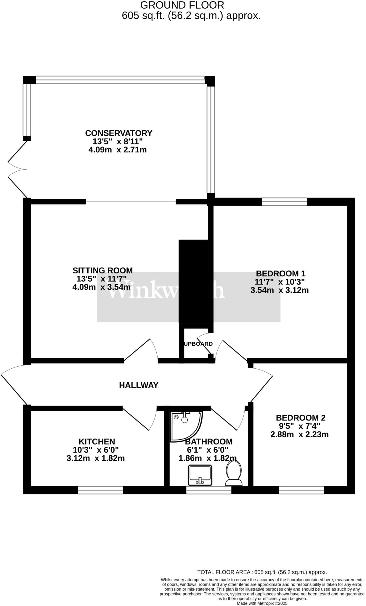
Set on a generous plot in quiet Bintree, this two-bedroom semi-detached bungalow has been recently renovated and is ready to move into. The single-storey layout and sizeable living room with a sunny conservatory make it particularly suitable for downsizers seeking easy, low-maintenance living in a village setting. The property is offered with no onward chain and benefits from ample off-street parking and a low-maintenance mature garden.
Practical details you should know: the home runs on oil-fired central heating with a boiler and radiators, and an EPC of E has been recorded. Broadband speeds in the area are slow. The bungalow is modest in size (about 605 sq ft) and has one bathroom, which may limit flexibility if you regularly host guests. There is planning potential to extend subject to permissions, offering scope to increase living space for those who wish to invest in adaptation.
Overall this bungalow delivers a straightforward, comfortable home in a peaceful rural neighbourhood. It will appeal to buyers wanting single-level, move-in-ready accommodation with scope to personalise or extend. Note the fuel type, energy rating and local broadband constraints when assessing running costs and suitability.
3 bedroom semi-detached house for sale in Church Lane, Bintree, Dereham, Norfolk, NR20 — £280,000 • 3 bed • 1 bath • 748 ft²
2 bedroom semi-detached bungalow for sale in Tipton Close, Dereham, NR19 — £250,000 • 2 bed • 1 bath • 625 ft²
2 bedroom semi-detached bungalow for sale in Mountains Road, Corpusty, Norwich, NR11 — £230,000 • 2 bed • 1 bath • 558 ft²
3 bedroom bungalow for sale in Bexfield Road, Foulsham, NR20 — £290,000 • 3 bed • 1 bath • 829 ft²
2 bedroom semi-detached bungalow for sale in Halls Drive, Gressenhall, NR20 — £225,000 • 2 bed • 2 bath • 593 ft²
3 bedroom semi-detached house for sale in The Street, Bintree, NR20 — £315,000 • 3 bed • 1 bath • 960 ft²


































































