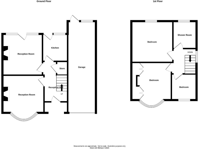
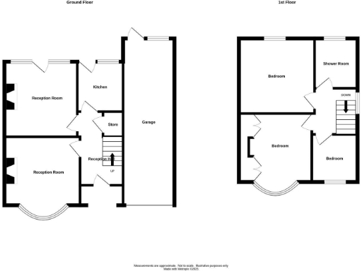
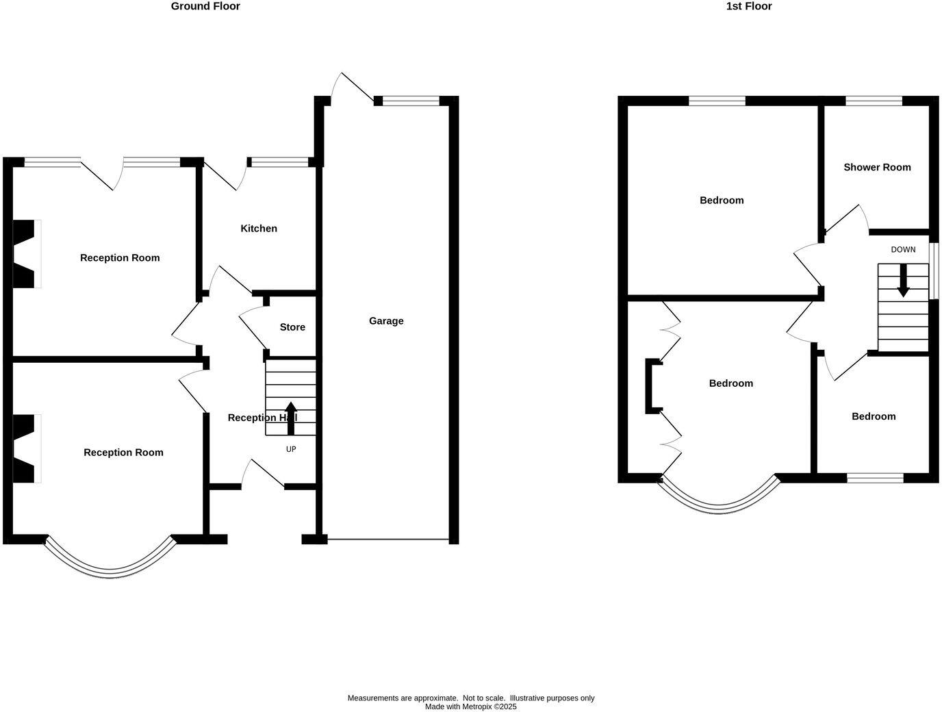
**Standout Features:**
- Traditional semi-detached house in respected Hurst Green area
- Offers potential for comprehensive modernization
- Two reception rooms and three bedrooms
- Chain-free sale with possessory title
- Average-sized plot with garden and derelict garage
- Excellent mobile signal and fast broadband speeds
- Close proximity to multiple well-rated primary and secondary schools
**Concise Summary:**
Discover the opportunity to transform a traditional semi-detached house in the highly regarded Hurst Green area. This property, ideal for cash buyers and investors, boasts two reception rooms, three bedrooms, and a garden, all set in a community of good schools. While it requires comprehensive modernization, its strong potential for renovation can be a rewarding project for the right buyer. Enjoy the benefits of a chain-free purchase, with all main services available and the flexibility to create your dream home.
Note that the property features a long derelict garage and an overgrown garden, indicating that some initial effort will be required. The energy rating is currently low (EPC F), presenting an opportunity for energy efficiency upgrades. Don’t miss out on this exclusive chance to capitalize on a property with remarkable potential in a respected neighborhood.
3 bedroom semi-detached house for sale in Fulwood Avenue, Halesowen, B62 9SA, B62 — £270,000 • 3 bed • 1 bath • 1180 ft²
2 bedroom detached bungalow for sale in HALESOWEN, Roundhills Road, B62 — £235,000 • 2 bed • 1 bath • 786 ft²
3 bedroom semi-detached house for sale in HURST GREEN, Firth Park Crescent, B62 — £250,000 • 3 bed • 1 bath • 793 ft²
3 bedroom semi-detached house for sale in HALESOWEN, Lansdowne Road, B62 — £229,950 • 3 bed • 1 bath • 699 ft²
3 bedroom semi-detached house for sale in Dale Road, Halesowen, B62 — £325,000 • 3 bed • 1 bath • 1185 ft²
3 bedroom semi-detached house for sale in Dorrington Road, Perry Barr, B42 — £200,000 • 3 bed • 1 bath • 676 ft²






































