Ready-to-move-in flat with private garden and garage near Haydons Park Station.
Ground-floor two-bedroom flat, well-proportioned living spaces
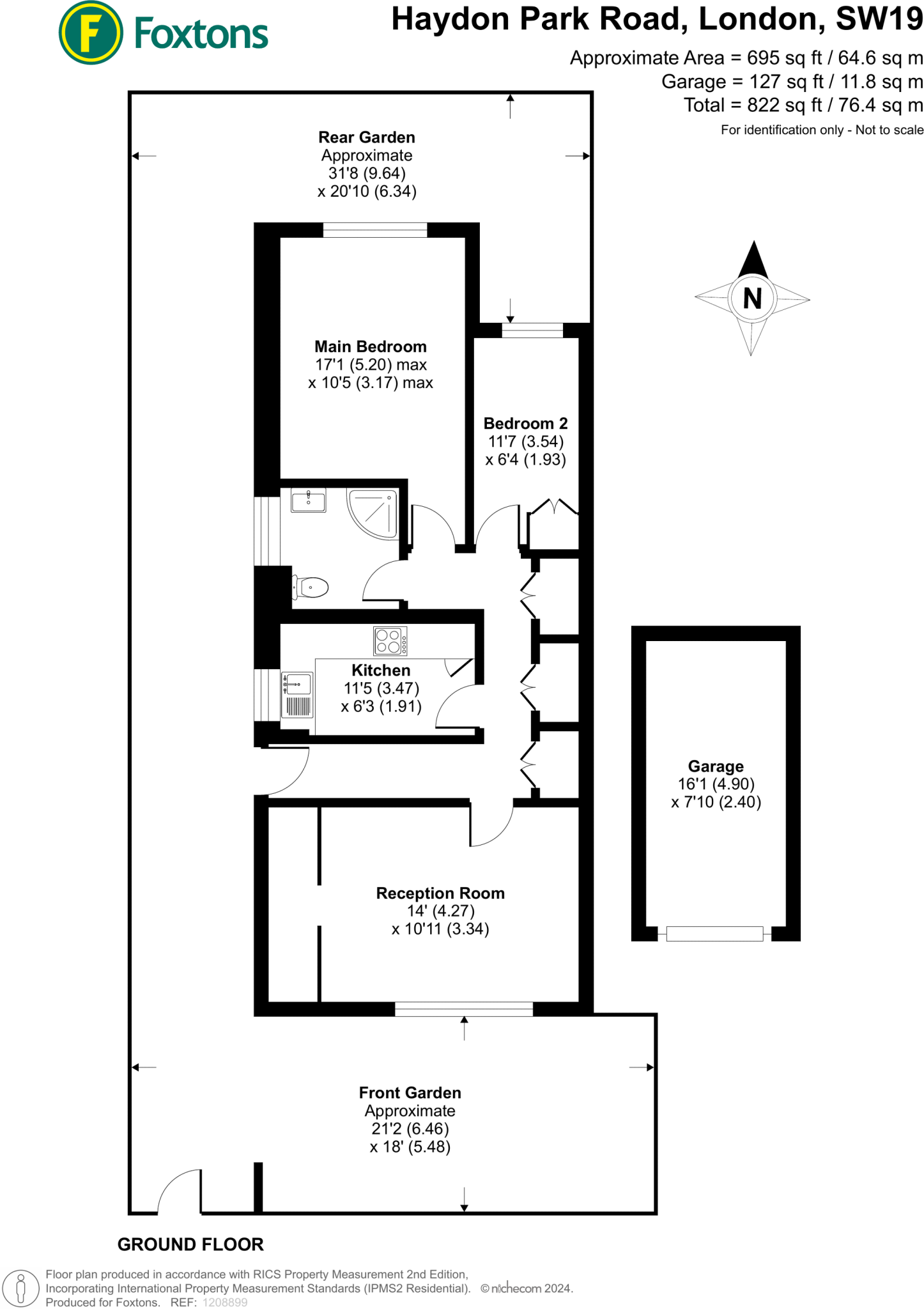
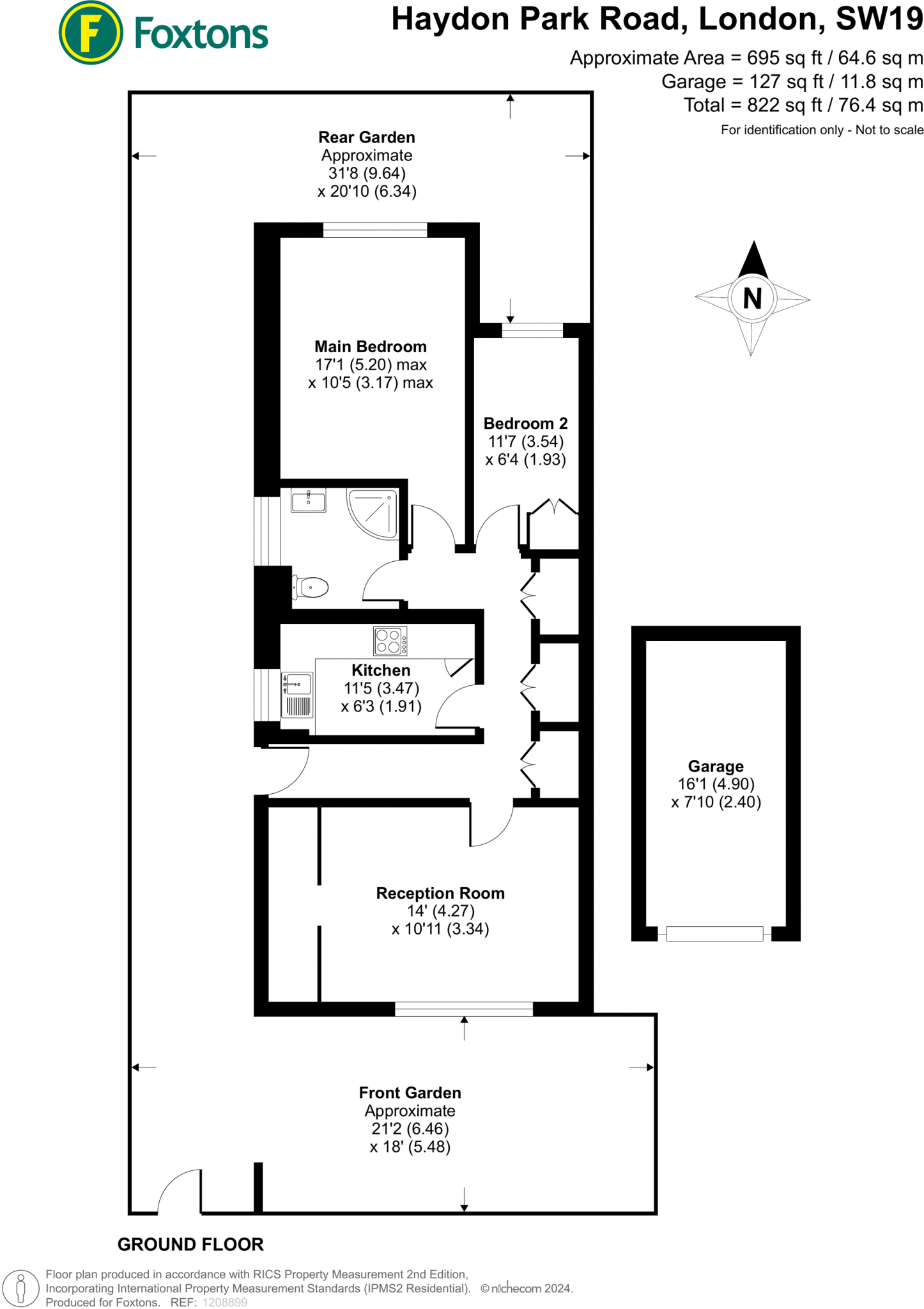
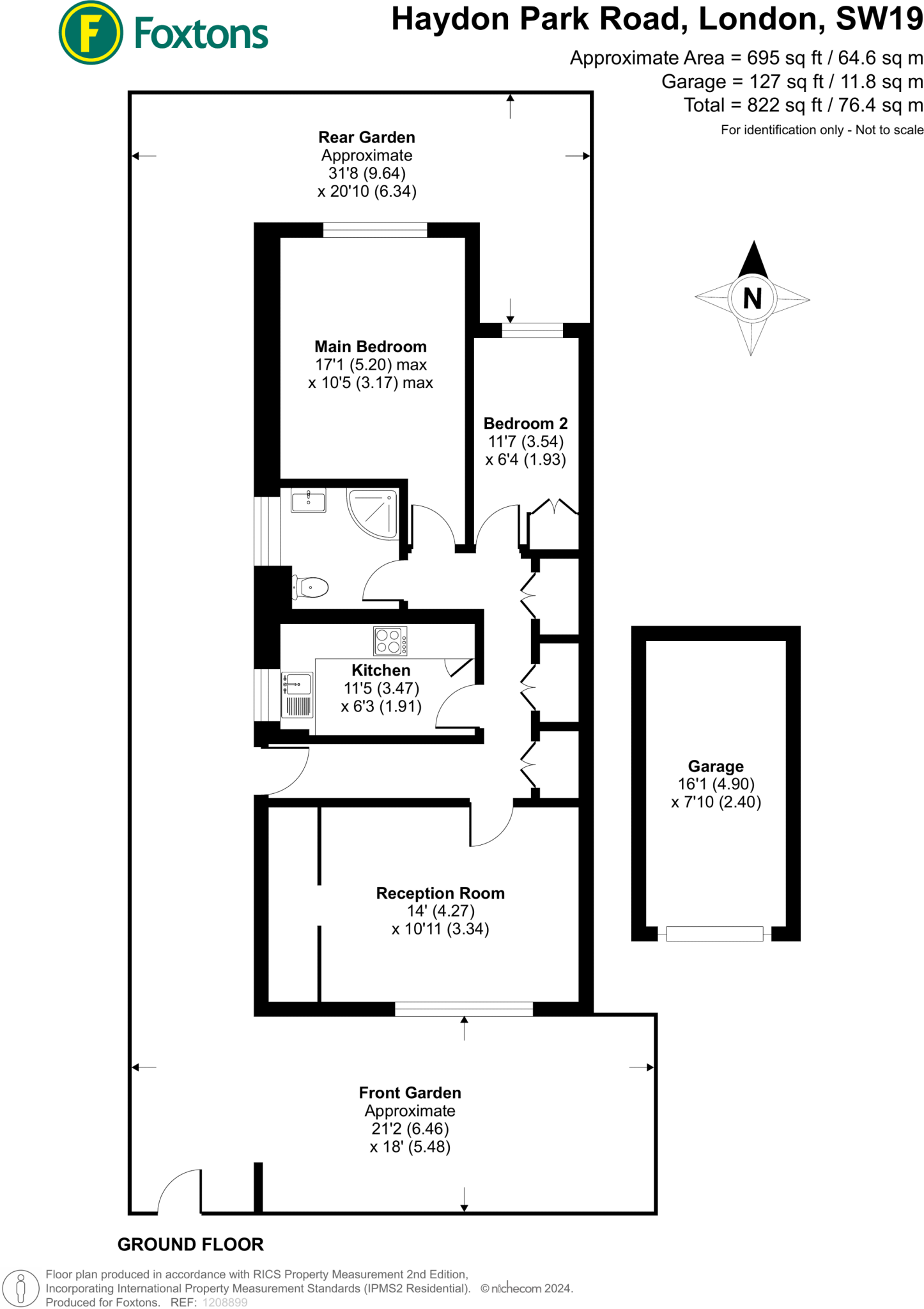
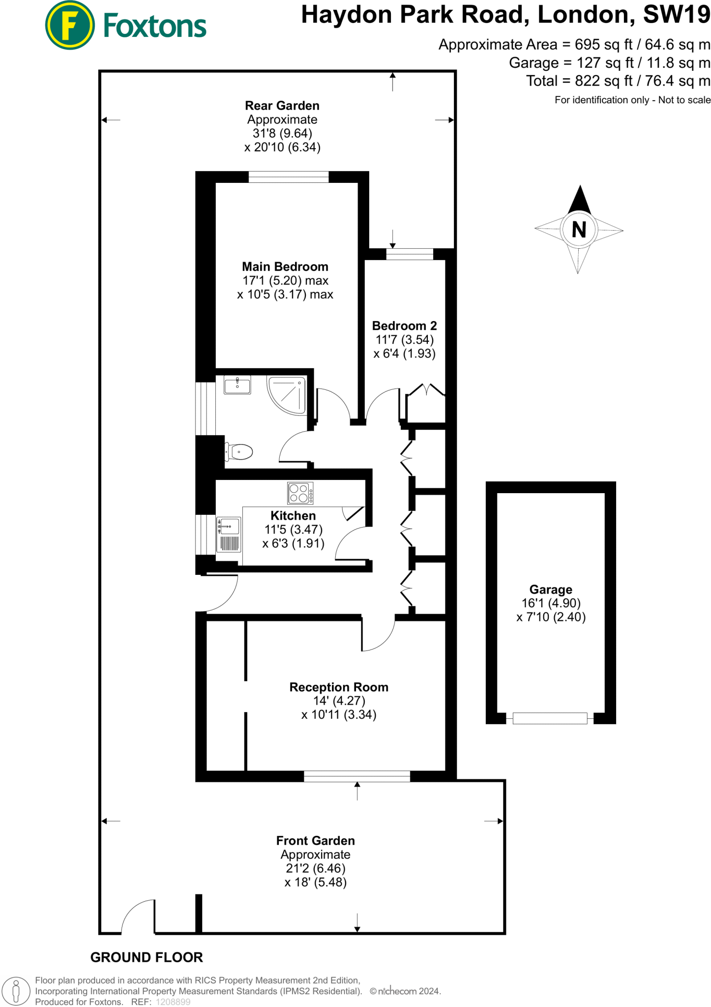
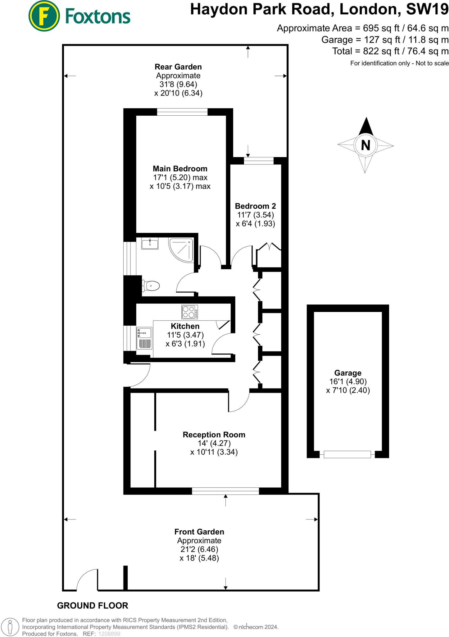
This ground-floor two-bedroom flat offers comfortable, well-proportioned living across approximately 822 sq ft. The reception room is spacious and bright; a newly renovated kitchen and a stylish bathroom deliver modern convenience. A private garden and a garage add rare outdoor and parking benefits for a flat in this part of Wimbledon.
Positioned moments from Haydons Park Station and close to Wandle Meadow Nature Reserve, the location suits commuters and buyers who value access to green space. Local schools include highly regarded state and independent options; nearby amenities and fast broadband/strong mobile signal support everyday life.
The property is chain free and sits on a long lease (134 years remaining) with a modest ground rent (£150). It was built in the mid-20th century and has double glazing, mains gas central heating and recently updated interior fittings. Note the building’s cavity walls are recorded as having no insulation (assumed), which may be a consideration for long-term energy efficiency and running costs.
Overall this is a ready-to-move-in flat with scope for personalisation. It will suit first-time buyers seeking low immediate renovation work, or purchasers looking for a well-located home with private outdoor space and secure parking. Buyers should review service charge details and consider potential insulation upgrades for future savings.
2 bedroom flat for sale in Henfield Road, Wimbledon, London, SW19 — £450,000 • 2 bed • 1 bath • 652 ft²
2 bedroom flat for sale in Graham Road, London, SW19 — £495,000 • 2 bed • 1 bath • 776 ft²
2 bedroom flat for sale in Crescent Gardens, London, SW19 — £650,000 • 2 bed • 1 bath • 992 ft²
2 bedroom flat for sale in Chaucer Way, Wimbledon, London, SW19 — £515,000 • 2 bed • 1 bath • 693 ft²
2 bedroom flat for sale in Woodside, Wimbledon, London, SW19 — £525,000 • 2 bed • 1 bath • 569 ft²
2 bedroom flat for sale in Durnsford Road, Wimbledon, London, SW19 — £415,000 • 2 bed • 2 bath • 666 ft²


































































































































































































































































































































































