Chain-free with driveway, private garden and excellent local schools and transport links.
- Chain-free with immediate vacant possession
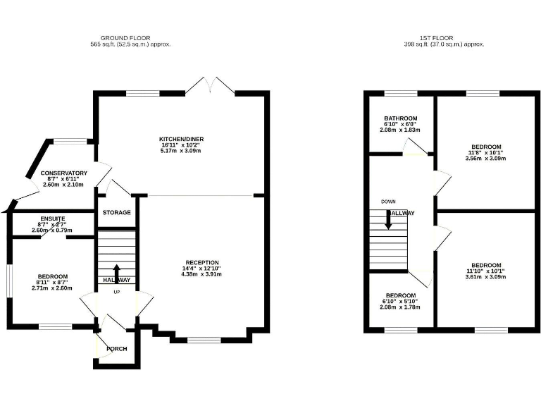
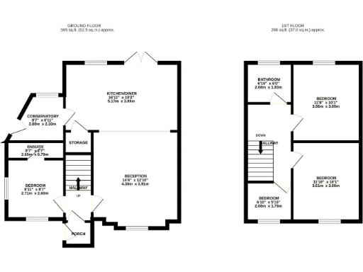
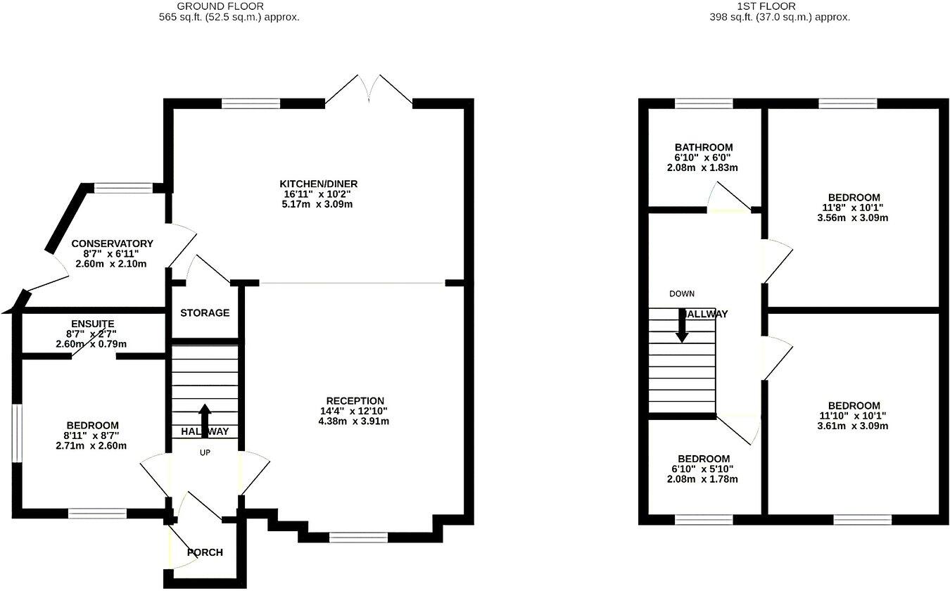
- Four bedrooms, one family bathroom plus ground-floor ensuite
- Off-street driveway and private rear garden
- Mostly double glazing; gas central heating throughout
- Small overall plot and compact room sizes
- Dated interior; requires cosmetic updating and possible refit
- Solid brick walls assumed uninsulated; loft has insulation
- Property within 1km of a historic coalfield; survey advised
A chain-free, four-bedroom semi with immediate possession and off-street parking in a well-connected Nottingham suburb. The house sits on a small plot with a private rear garden and a paved driveway — useful for family parking and outdoor space without heavy upkeep.
Internally the layout is traditional: living room with bay window, kitchen/diner with patio doors, one ground-floor bedroom with ensuite, and three first-floor bedrooms served by a single family bathroom. The home benefits from gas central heating, mostly double glazing and low-energy lighting, making day-to-day running straightforward and economical.
The property is dated and will suit buyers seeking cosmetic modernisation or a refurbishment project: carpets, kitchen and bathrooms show wear and some rooms require updating. The solid brick walls are likely uninsulated and the house is near a historic coalfield area — surveys are recommended to check insulation, services and any mining-related risks. Council tax is low (band B), broadband and mobile signal are strong, and several highly rated schools lie close by, making this a practical choice for families or buyers looking for rental/investment potential.
Viewings are recommended for those wanting a firm blank canvas and quick move-in. Buyers should factor renovation costs and obtain a full survey before exchange to confirm condition and any required remedial work.
4 bedroom terraced house for sale in Oakland Way, Nottingham, NG8 — £235,000 • 4 bed • 3 bath • 1240 ft²
3 bedroom semi-detached house for sale in Hanslope Crescent, Bilborough, Nottingham, NG8 — £230,000 • 3 bed • 1 bath • 830 ft²
4 bedroom semi-detached house for sale in Lower Road, Beeston, NG9 — £275,000 • 4 bed • 1 bath • 808 ft²
3 bedroom semi-detached house for sale in Ridgmont Walk, Clifton, Nottingham, NG11 — £225,000 • 3 bed • 1 bath • 1558 ft²
3 bedroom semi-detached house for sale in Lawley Avenue, Beeston, Nottingham, Nottinghamshire, NG9 — £300,000 • 3 bed • 1 bath • 959 ft²
2 bedroom semi-detached house for sale in Woodland Avenue, Nottingham, NG6 — £155,000 • 2 bed • 1 bath • 975 ft²














































































