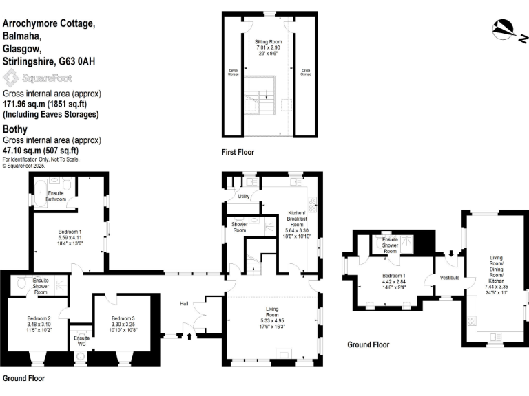
Spacious rural home with exceptional views and independent bothy for guests or income.
Panoramic Loch Lomond views from full-height windows throughout the property
Approximately three acres of landscaped gardens, lawns and woodland
Separate self-contained one-bedroom bothy ideal for guests or rental
Underfloor heating to ground floor; LPG central heating and electric panels
Converted outbuilding built to approved plans; completion certificate pending
Private septic tank drainage; mains water and electricity connected
EPC rating D and council tax above average; consider energy improvement costs
Fast broadband but average mobile signal; rural location with limited services
Set on approximately three acres on the eastern shore of Loch Lomond, this sympathetically extended detached cottage combines rural charm with contemporary comfort. Full-height windows frame panoramic loch views throughout the main house and the self-contained one-bedroom bothy, filling living spaces with natural light and making the landscape a constant feature of daily life. The open-plan ground floor, duel-fuel stove and elevated galleried sitting area give flexible family living and distinct entertaining zones.
The property includes extensive landscaped gardens, a sunken patio, raised vegetable beds, expansive lawns and wooded areas — ideal for outdoor activities and home growing. Practical features include off-street gravel parking for multiple cars, underfloor heating on the ground floor, LPG-fired central heating and fast broadband, supporting both family life and remote working. The bothy offers guest or ancillary rental potential as fully independent accommodation.
Buyers should note a few material points: the converted outbuilding has been built to approved plans and building warrant but the completion certificate is still pending. Services include mains water and electricity but drainage is to a private septic tank. The Energy Performance Certificate is D and council tax is above average. Mobile signal is average and the wider area shows indicators of local deprivation, which may affect service provision and resale perceptions.
This is a rare Loch Lomond opportunity for buyers who value space, privacy and spectacular vistas. It will suit families or purchasers seeking a country retreat with ancillary income potential, but those prioritising the highest energy efficiency or immediate paperwork-complete outbuildings should factor these items into their plans.
7 bedroom detached house for sale in Gartochraggan, Gartocharn, Alexandria, West Dunbartonshire, G83 — £1,450,000 • 7 bed • 5 bath • 6296 ft²
3 bedroom detached house for sale in Achray View, Trossachs, Callander, Stirlingshire, FK17 — £395,000 • 3 bed • 2 bath • 1615 ft²
5 bedroom apartment for sale in The Chalet, Dunard House, Kinlochard, Stirling, Stirlingshire, FK8 — £695,000 • 5 bed • 4 bath • 1927 ft²
4 bedroom detached house for sale in Drummakill House, Gartocharn, Dunbartonshire, G83 — £700,000 • 4 bed • 4 bath • 2479 ft²
11 bedroom detached house for sale in Lomond Bank, Balmaha, Glasgow, G63 — £1,250,000 • 11 bed • 8 bath • 5575 ft²
5 bedroom mews property for sale in The Coach House, Auchenheglish, By Loch Lomond, G83 — £750,000 • 5 bed • 5 bath • 3136 ft²


































































































































