Five-bedroom period home with garden and parking potential, ready for modernization..
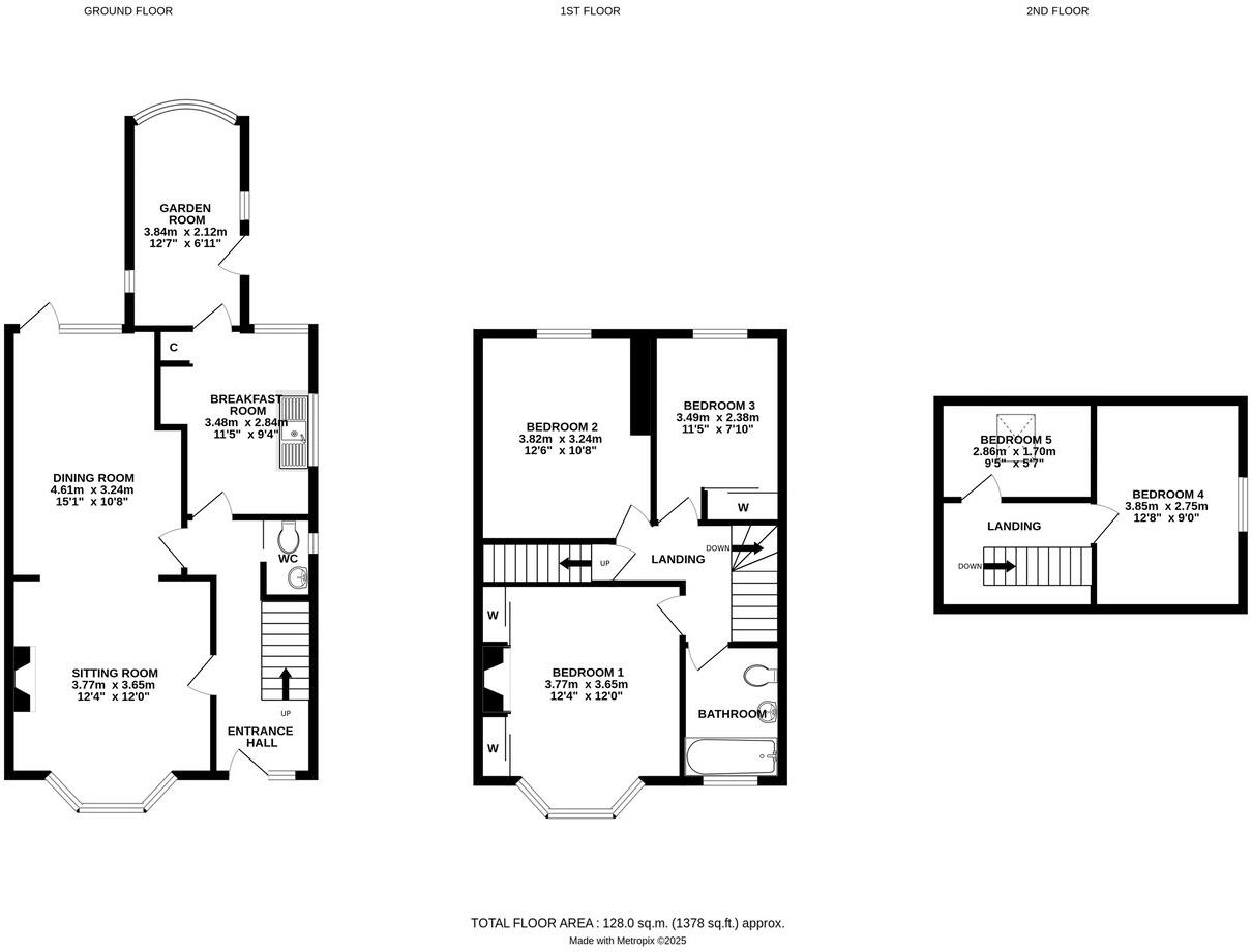
Five bedrooms over three floors, including two attic-level rooms
Good-size private rear garden, well stocked with mature planting
Provision for off-street parking in place (subject to planning permission)
Kitchen requires modernisation; dated fixtures and fittings throughout
Bathroom needs updating; single family bathroom only
EPC rated E and above-average council tax — consider running costs
Fast broadband and excellent mobile signal; low flood risk
Popular south-side location, short walk to High Street and marinas
Set just off Lymington High Street on the favoured south side, this rarely available five-bedroom semi offers classic Tudor character and a generous, private rear garden — ideal for family life and outdoor entertaining. The home’s bay-fronted sitting room leads through to a dining area, with a garden room that overlooks the lawn and can double as a home office. Its location places shops, marinas and sailing clubs within an easy walk.
The property offers genuine scope to create a contemporary family home: five bedrooms across three floors, useful attic-level rooms, and provision already made to create off‑street parking (subject to planning permission). Key practical points include fast broadband, excellent mobile signal, low flood risk and a desirable local school catchment.
There are clear renovation requirements: the kitchen and bathroom both need modernising and the house would benefit from general updating throughout. EPC rating E and an above-average council tax band reflect running-cost and energy-efficiency considerations. Buyers should allow budget and time for refurbishment and for any formal planning application for the parking conversion.
5 bedroom semi-detached house for sale in Stanley Road, Lymington, SO41 — £845,000 • 5 bed • 1 bath • 1496 ft²
5 bedroom detached house for sale in Southampton Road, Lymington, Hampshire, SO41 — £1,095,000 • 5 bed • 2 bath • 2405 ft²
2 bedroom semi-detached house for sale in Ambleside Road, Lymington, SO41 — £519,950 • 2 bed • 1 bath • 865 ft²
3 bedroom semi-detached house for sale in Ambleside Road, Lymington, Hampshire, SO41 — £499,000 • 3 bed • 1 bath • 978 ft²
3 bedroom detached house for sale in Daniells Walk, Lymington, Hampshire, SO41 — £1,250,000 • 3 bed • 2 bath • 2128 ft²
2 bedroom semi-detached house for sale in Middle Road, Lymington, Hampshire, SO41 — £350,000 • 2 bed • 1 bath • 924 ft²














































