DH1 3HN - 5 bedroom terraced house for sale in Old Elvet, Durham, DH1

View on Property Piper

5 bedroom terraced house for sale in Old Elvet, Durham, DH1

Summary - 41 OLD ELVET DURHAM DH1 3HN

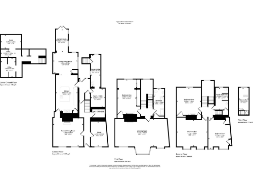
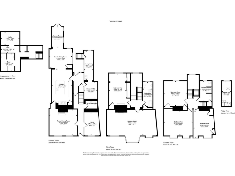
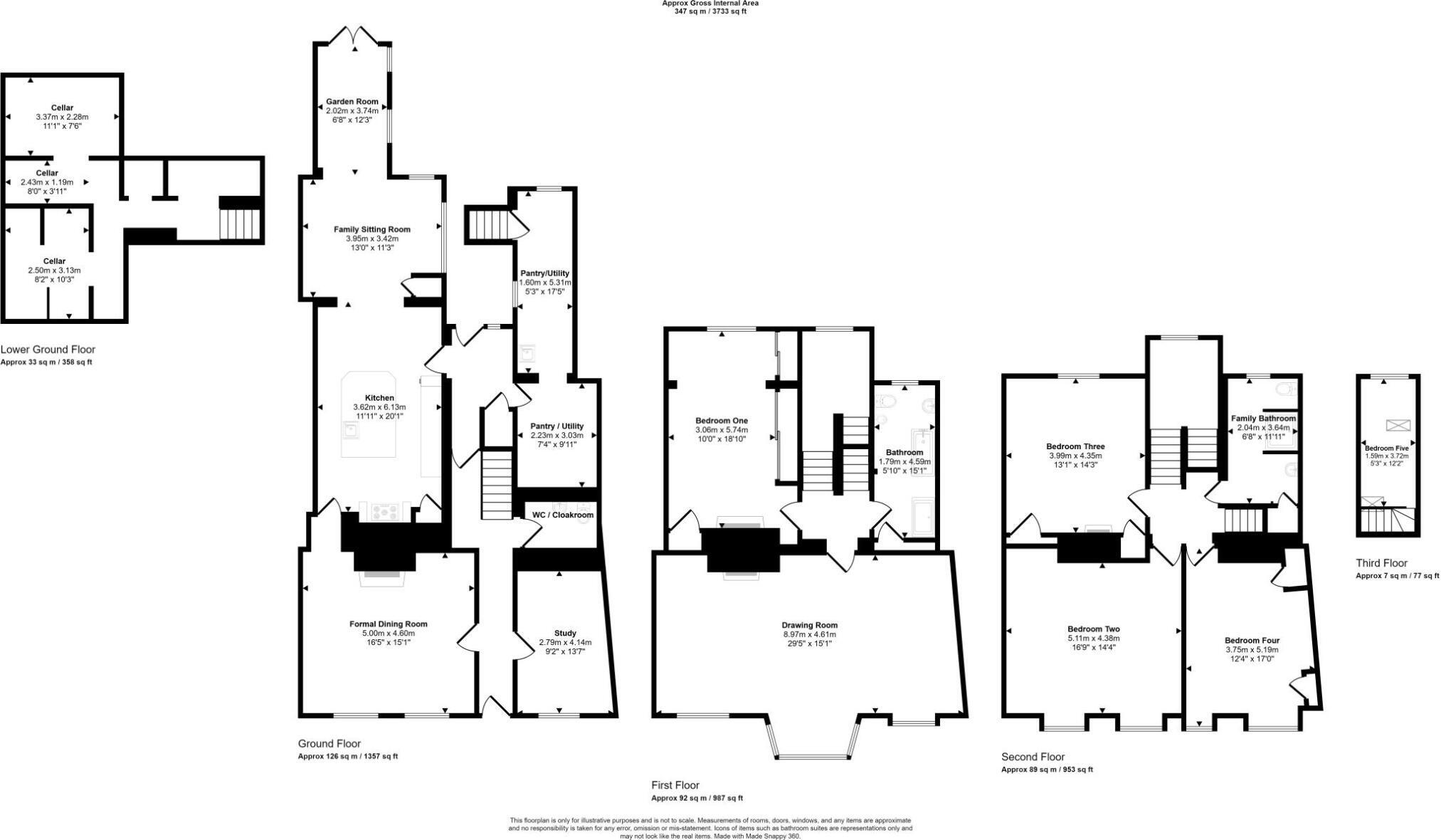
5 bed 2 bath Terraced

**Standout Features:**
- Historic Grade II listed property dating back to 1725
- Generous 3,700 sq. ft floor space with extensive rear garden
- Impressive open-plan kitchen with high-end appliances
- Scenic views of Durham Cathedral from multiple bedrooms
- Chain-free sale: immediate occupancy potential
- Listed status may complicate certain renovations

Discover a rare opportunity to own a magnificent Georgian gem in the heart of Durham, ideally suited for buyers seeking both historic charm and modern comforts. Crafted in 1725, this Grade II listed mid-terrace property boasts an expansive layout over three levels, highlighting its original features alongside contemporary renovations. The bespoke open-plan kitchen and family room, outfitted with luxurious amenities, serves as a perfect gathering space, while the extensive rear garden provides a serene private retreat for outdoor entertaining and gardening enthusiasts.

The property also features five spacious bedrooms, including a master suite with a dressing area and a grand drawing room that showcases stunning cathedral views. Unique touches await at every turn, from the original marble fireplace to the rich history embedded in every room. Set in a vibrant community close to iconic landmarks, boutique shops, and excellent schools, this home is perfect for families, professionals, or investors looking to tap into the lively student rental market.

With no onward chain and exceptional potential for modern living, this historic retreat invites you to experience the joys of urban life with the comfort of home. Act quickly; opportunities to own such a unique property are rare and in high demand.

Property Details

Image Descriptions

Rooms

Textual Property Features

Detected Visual Features

EPC Details

Nearby Schools

Nearest Bars And Restaurants

,,,,}

Nearest General Shops

,,}

Nearest Grocery shops

,,}

Nearest Supermarkets

,,}

Nearest Religious buildings

,,}

Nearest Medical buildings

,,,}

Nearest Leisure Facilities

,,,,}

Nearest Tourist attractions

,,}

Nearest Train stations

,,,,}

Nearest Bus stations and stops

,,,,}

Nearest Hotels

,,}

Tags

Local Market Stats

AirBnB Data

Similar Properties

Meta

High Res Images

Compatible Images

Low res Images

Thumbnails

Raw Images

High Res Floorplan Images

Compatible Floorplan Images

Low res Floorplan Images

FloorplanImages Thumbnail

Raw Floorplan Images