**Key Features:**
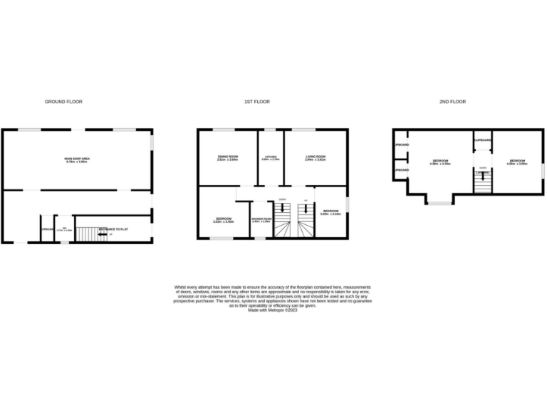
- **Development Opportunity:** Ground floor shop with store; upper floors offer a four-bedroom flat requiring full renovation.
- **Central Location:** Situated in the bustling market town of Cupar with excellent transport links.
- **Space Overview:** Total area spans approximately 414 square feet; each floor has a distinct layout fostering creativity for potential renovations.
- **Community Amenities:** Accessible local conveniences including schools, healthcare, shops, dining options, and recreational facilities.
This unique commercial property at 1 West Port, Cupar presents an exciting development opportunity for savvy investors or ambitious homeowners. The ground floor features a shop and store, perfect for a retail business, while the first and second floors house a spacious four-bedroom flat that is ripe for renovation. This versatile layout provides ample scope for reimagining the space to enhance its value, whether for personal use or rental potential.
Situated in a vibrant area, the property benefits from excellent public transport links, including a nearby railway station, making daily commuting to surrounding cities such as Edinburgh and Dundee a breeze. The local community boasts numerous amenities within walking distance, catering to families and professionals alike.
While the flat requires significant renovation—which may deter some buyers—it also presents a blank canvas to create a personalized living environment tailored to individual tastes. With an attractive price of £110,000 and strong potential for appreciation, this property is an exceptional find. Don’t miss your chance to transform this space into something extraordinary!
Commercial property for sale in Crossgate, Cupar, KY15 — £140,000 • 1 bed • 1 bath • 2623 ft²
2 bedroom villa for sale in 6C Bonnygate, Cupar, KY15 4LE, KY15 — £124,995 • 2 bed • 1 bath • 990 ft²
3 bedroom flat for sale in 34A Bonnygate, Cupar, KY15 — £103,500 • 3 bed • 1 bath • 1022 ft²
Residential development for sale in 35A, 35B & 35C Market Street, St Andrews, Fife, KY16 9NT, KY16 — £440,000 • 1 bed • 1 bath • 1403 ft²
2 bedroom flat for sale in 34C Bonnygate, Cupar, KY15 — £75,000 • 2 bed • 1 bath • 581 ft²
2 bedroom flat for sale in Flat 1, Eastbridge Mews Castlehill Place, Cupar, KY15 — £110,000 • 2 bed • 1 bath • 667 ft²


































































