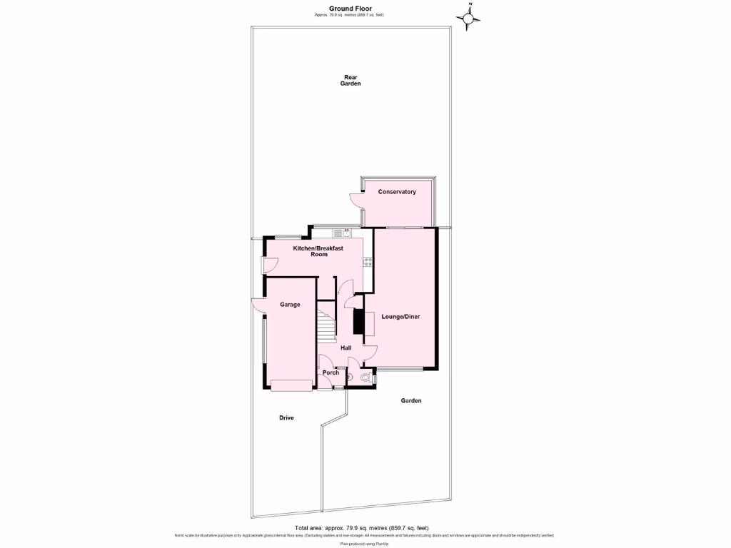
Spacious plot, garage and conservatory close to station and village amenities.
Three well-proportioned bedrooms, approximately 1,368 sq ft
Set on a sizeable plot in the popular village of Nether Poppleton, this three-bedroom detached home offers comfortable family living with scope to personalise. Ground floor accommodation includes a large living room that opens to a bright conservatory, plus a spacious kitchen-diner that leads straight out to a private, well-screened rear garden. Off-street parking and an integral garage add practicality for everyday life.
Upstairs are three well-proportioned bedrooms served by a modern shower room; the house totals about 1,368 sq ft and is offered freehold with no onward chain. The property dates from the late 1960s/early 1970s and presents well externally with double glazing and a gas boiler with radiators, while internal updating will allow purchasers to add value and tailor the layout to current tastes.
Location is a major draw: Poppleton provides village amenities, a good primary school, and a railway station with direct services to York and Leeds, plus easy access to the A59 and ring road for commuters. Broadband and mobile signal are strong, and the area is very affluent with very low local crime rates.
Practical points: there is a single shower room and a ground-floor WC only, and the exact ages of glazing and some services are unspecified. While the house is in good external condition, buyers should factor potential modernisation costs if seeking a contemporary finish or planning extensions/loft conversion subject to planning permission.
5 bedroom detached house for sale in Midway Avenue, Nether Poppleton, York, YO26 6NT, YO26 — £695,000 • 5 bed • 2 bath • 2246 ft²
3 bedroom semi-detached house for sale in Allerton Drive, Nether Poppleton, York YO26 6NW, YO26 — £400,000 • 3 bed • 1 bath • 1006 ft²
3 bedroom detached house for sale in Severn Green, Nether Poppleton, York, YO26 — £400,000 • 3 bed • 2 bath • 1203 ft²
3 bedroom detached house for sale in Severn Green, Nether Poppleton, York, YO26 6RE, YO26 — £325,000 • 3 bed • 1 bath • 929 ft²
5 bedroom detached house for sale in Manor Close, Upper Poppleton, York, YO26 6PU, YO26 — £695,000 • 5 bed • 4 bath • 2534 ft²
4 bedroom detached house for sale in Calder Avenue, Nether Poppleton, York, YO26 — £450,000 • 4 bed • 2 bath • 1388 ft²






































































