Light-filled contemporary one-bedroom near Wimborne town and riverside walks.
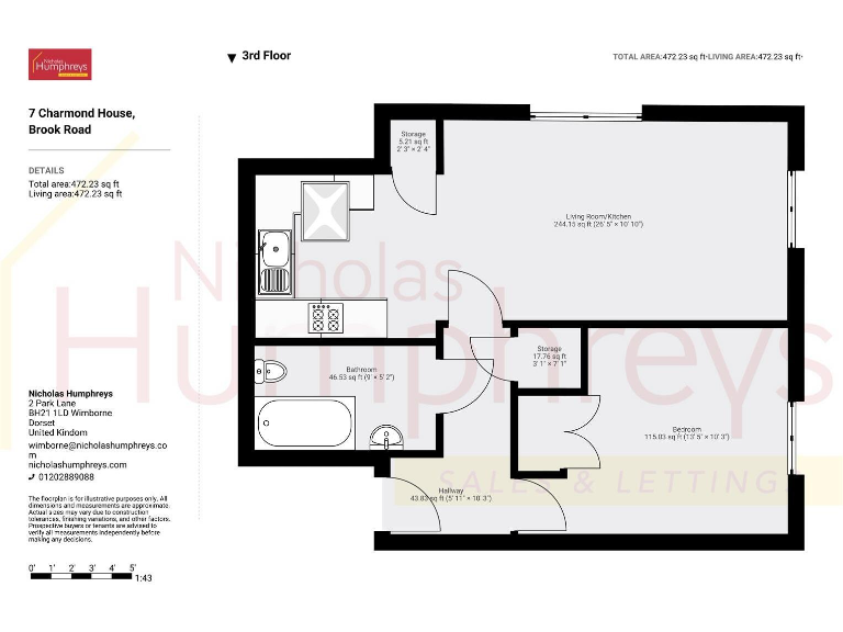
Well-presented top-floor apartment built 2016, approx. 496 sq ft
Good-sized double bedroom with built-in wardrobe
Allocated off-street parking space included
Adjoins riverside walks and communal lawns
Gas central heating; fast broadband and excellent mobile signal
Leasehold: 116 years remaining
Service charge £197.90 pcm from 01/10/25; covers insurance and maintenance
No lift noted; access via communal stairs
Bright, contemporary and neatly presented, this top-floor one-bedroom apartment offers low-maintenance living close to Wimborne centre. Finished in 2016 and reportedly still covered by the new-build warranty, the home features a light-filled lounge with open-plan kitchen, a good-sized double bedroom with built-in wardrobe, and a modern bathroom. The apartment totals about 496 sq ft and benefits from fast broadband and excellent mobile signal.
Practical convenience includes gas central heating, security entry phone, and an allocated off-street parking space. Communal gardens and a bike store sit within the well-kept development, and riverside walks adjoin the site for easy access to outdoor space. Nearby schools and town amenities make this a sensible choice for first-time buyers or those downsizing.
The property is leasehold with 116 years remaining. Service charges are £197.90 per month (from 01/10/25) covering cleaning, garden maintenance, building insurance, sinking fund, communal water and management fees. Council tax is described as cheap and local crime levels are average. These running costs and the tenure should be considered alongside the purchase price.
1 bedroom flat for sale in Station Road, Wimborne, BH21 , BH21 — £200,000 • 1 bed • 1 bath • 573 ft²
1 bedroom apartment for sale in Rowlands Hill, Wimborne, BH21 — £239,950 • 1 bed • 1 bath • 607 ft²
2 bedroom apartment for sale in Allen Road, Wimborne, Dorset, BH21 — £249,950 • 2 bed • 2 bath • 718 ft²
2 bedroom flat for sale in 148 Wimborne Road West, Wimborne, BH21 — £235,000 • 2 bed • 1 bath • 645 ft²
1 bedroom apartment for sale in Leigh Road, Wimborne, BH21 — £165,000 • 1 bed • 1 bath • 442 ft²
2 bedroom maisonette for sale in Ryan Way, Wimborne, Dorset, BH21 — £335,000 • 2 bed • 2 bath • 824 ft²


























































