TN15 6EZ - 4 bed four bed detached home in The Briars, TN15 6EZ

View on Property Piper

4 bedroom detached house for sale in The Briars, West Kingsdown, TN15

Summary - 13 THE BRIARS WEST KINGSDOWN SEVENOAKS TN15 6EZ

4 bed 2 bath Detached

Spacious family living with extension consent and good-sized garden.
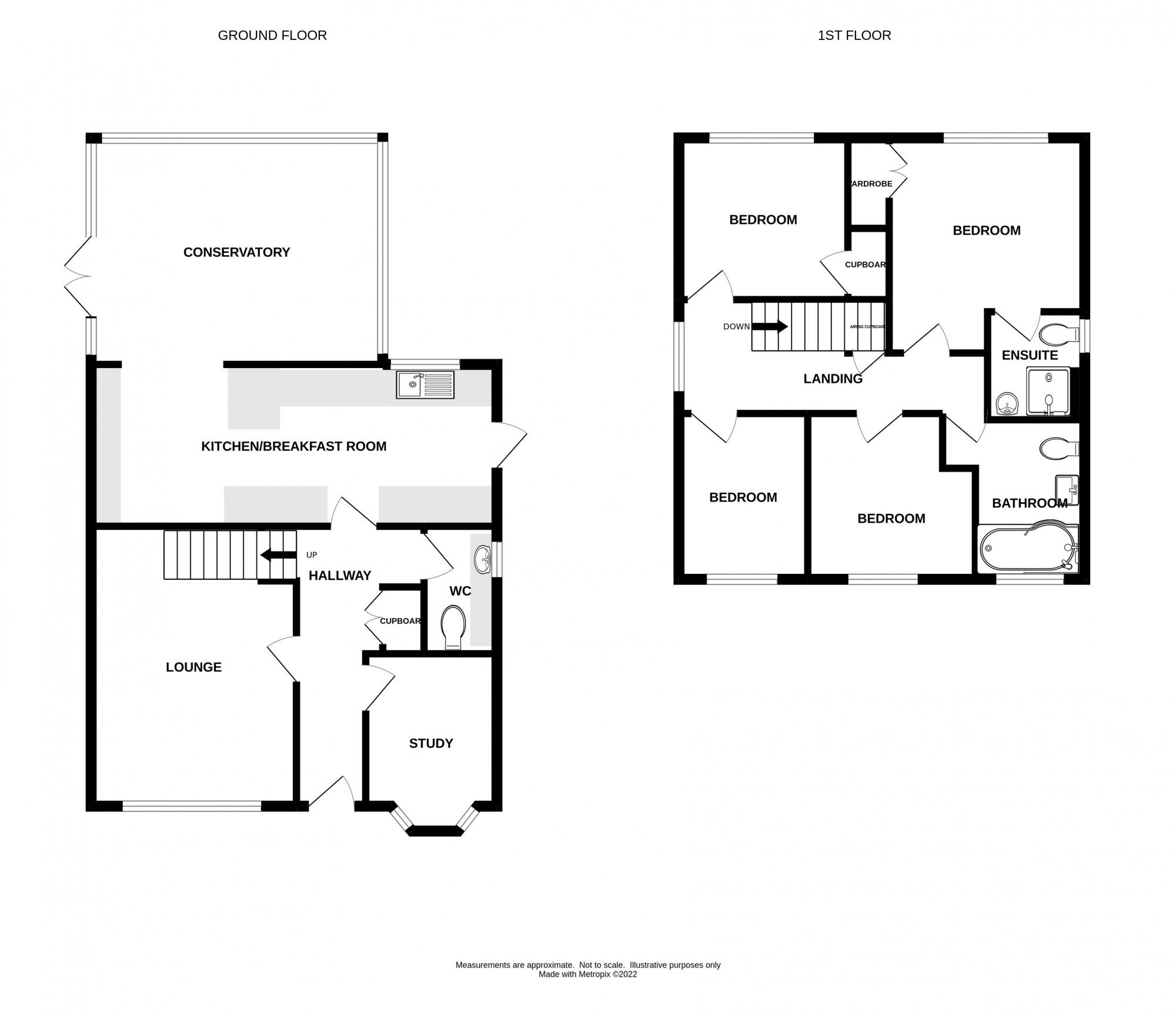
Double-fronted detached four-bedroom house with orangery-style extension
Master bedroom with en-suite; three further bedrooms and family bathroom
Approved planning consent for rear and first-floor extension (ref 24/00936/HOUSE)
Driveway and attached garage; good-sized rear garden with summerhouse and shed
Chain-free sale — ready for a quick purchase
Energy Performance Rating D; Council Tax Band E (above average)
Part-boarded loft for storage; some interior updating may be desirable
Approximately 1,195 sq ft on a decent plot in a quiet cul-de-sac
This spacious double-fronted detached house offers practical family living across an average-sized footprint (approx. 1,195 sq ft) in a quiet West Kingsdown cul-de-sac. The ground floor layout includes a semi open-plan kitchen/diner with orangery-style extension, separate lounge and a further room currently used as a playroom or study. Upstairs there are four bedrooms, the master with en-suite, plus a family bathroom and a part-boarded loft for storage.

Outside the property sits on a decent plot with a rear garden, summerhouse/chalet, shed, driveway and attached garage. The location is convenient for local shops and primary/secondary schools rated Good, with quick road access to the M20/M25 and local leisure attractions including Brands Hatch and nearby villages.

Notable value-adds include approved planning consent for a rear and first-floor extension (planning reference 24/00936/HOUSE), double glazing and mains gas central heating. The house is offered chain-free, making it suitable for families wanting to move quickly and buyers who wish to extend or reconfigure the living space.

Material facts: the property has an Energy Performance Rating of D and lies in Council Tax Band E (above average). The loft is partly boarded only. Buyers should note the age and style of some fittings may need updating to achieve modern finishes and full benefit from the approved extension consent.

Property Details

Image Descriptions

Rooms

Textual Property Features

Target Audience

AI Tags

Detected Visual Features

EPC Details

Nearby Schools

Nearest Bars And Restaurants

,,,,}

Nearest General Shops

,,}

Nearest Grocery shops

,,}

Nearest Supermarkets

,,}

Nearest Religious buildings

,,}

Nearest Medical buildings

,,,}

Nearest Airports

,,}

Nearest Leisure Facilities

,,,,}

Nearest Tourist attractions

,,}

Nearest Train stations

,,,,}

Nearest Bus stations and stops

,,,,}

Nearest Hotels

,,}

Tags

Local Market Stats

AirBnB Data

Similar Properties

Meta

High Res Images

Compatible Images

Low res Images

Thumbnails

Raw Images

High Res Floorplan Images

Compatible Floorplan Images

Low res Floorplan Images

FloorplanImages Thumbnail

Raw Floorplan Images