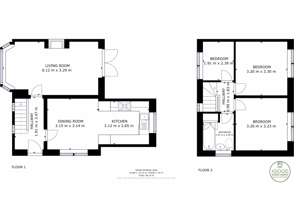
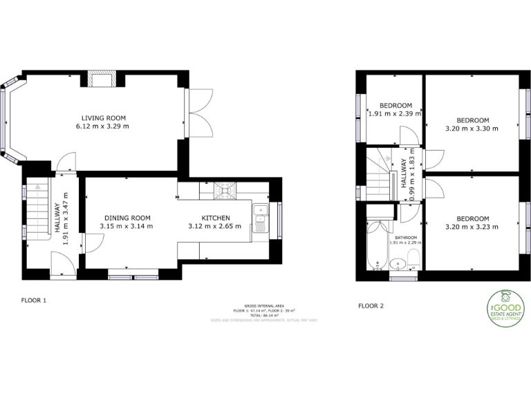
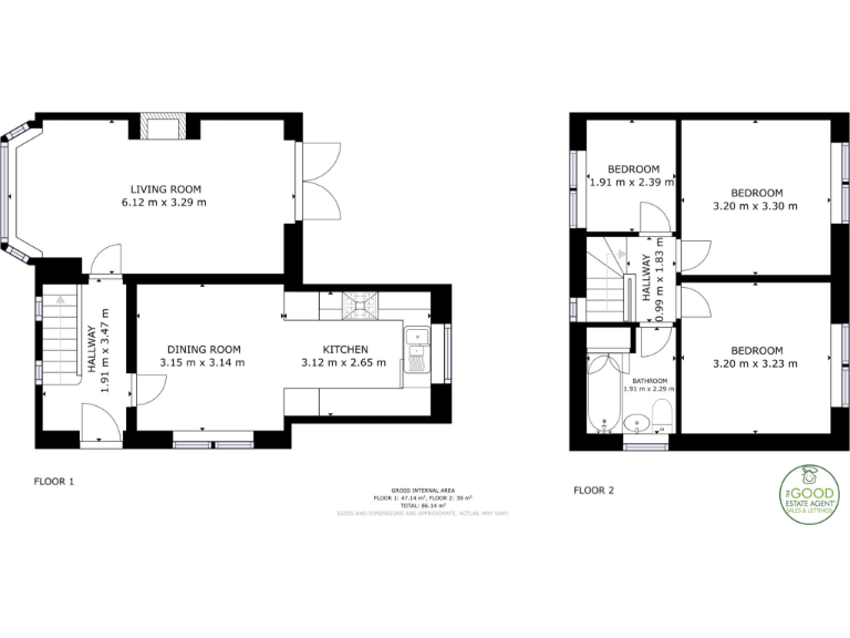
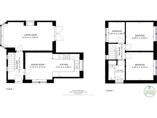
Comfortable family home near town centre and hospital.
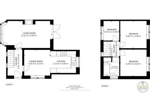
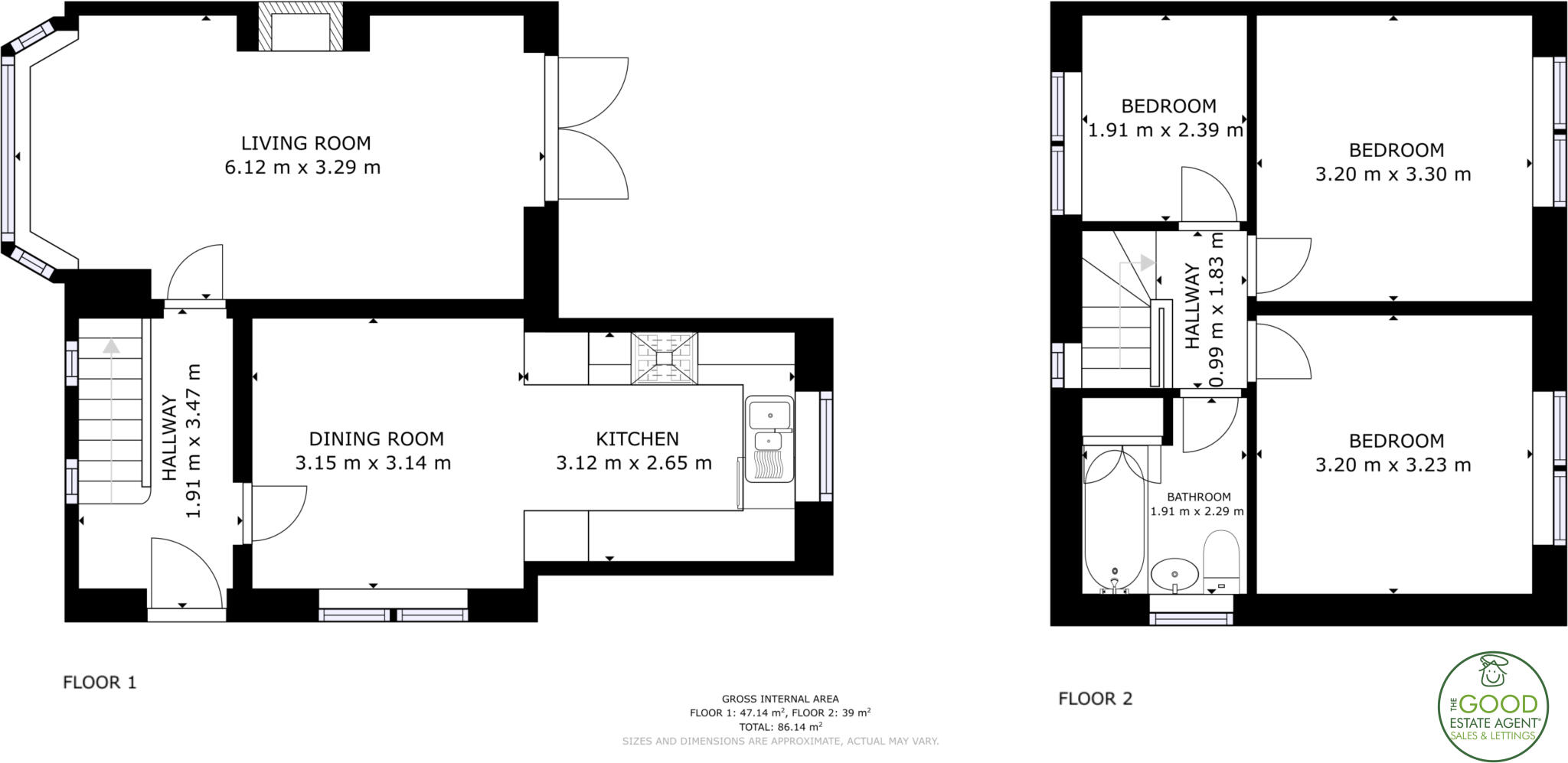
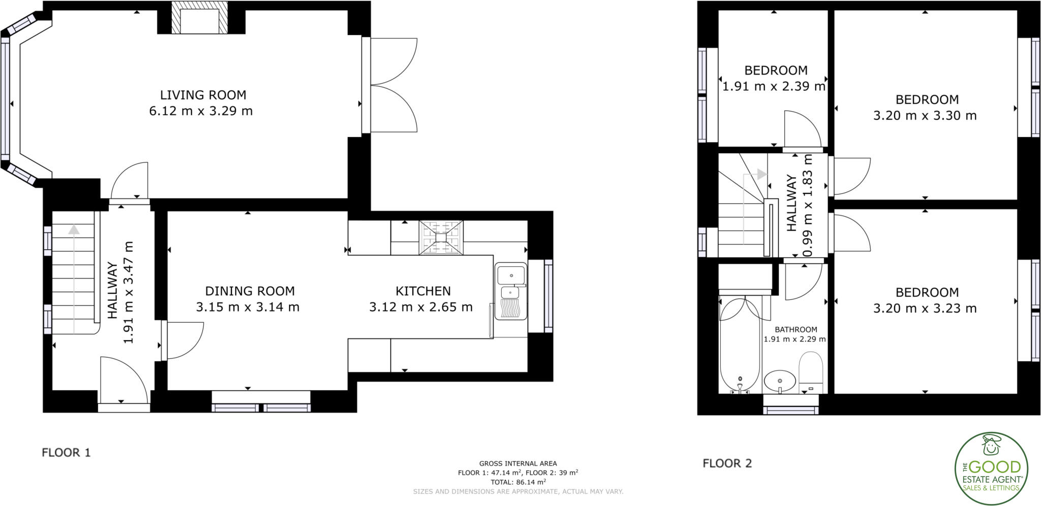
Three bedrooms: two doubles and one single
This three-bedroom semi-detached home on Parkbrook Road blends period charm with recent upgrades. The bay-front living room, LVT flooring and wood-burning stove create a warm, characterful reception space. A recently fitted modern kitchen/dining area opens to a lawned rear garden and patio — a practical layout for family life and weekend entertaining.
Practical features include off-street shared driveway parking, a boarded loft with light, a nine-year-old boiler, and a full CCTV and alarm system installed 18 months ago. The long lease (over 900 years) and nominal ground rent (£6 per year) make tenure straightforward.
Location is a key draw: walking distance to Wythenshawe Town Centre and Wythenshawe Hospital, with fast road links to the M56 and Manchester Airport. Broadband and mobile signal are strong, suited to home working and commuting.
Buyers should note a few material points: the driveway is shared, the wider area scores as very deprived and some nearby schools have poor Ofsted ratings. All buyers should verify appliance condition, services, and any past extensions with their solicitor before purchase.
3 bedroom semi-detached house for sale in Parkbrook Road, Wythenshawe, M23 — £352,000 • 3 bed • 2 bath
3 bedroom semi-detached house for sale in Parkbrook Road, Spinney Estate, Baguley, Manchester, M23 — £375,000 • 3 bed • 2 bath • 895 ft²
3 bedroom semi-detached house for sale in 29 A Lawton Moor Road, Manchester, M23 — £260,000 • 3 bed • 1 bath • 852 ft²
3 bedroom semi-detached house for sale in Meliden Crescent, MANCHESTER, Lancashire, M22 — £280,000 • 3 bed • 1 bath • 767 ft²
3 bedroom semi-detached house for sale in Blackcarr Road, Manchester, Greater Manchester, M23 — £350,000 • 3 bed • 1 bath • 1270 ft²
3 bedroom semi-detached house for sale in Brookash Road, M22 5LU, M22 — £325,000 • 3 bed • 1 bath • 956 ft²






































































































