Quiet cul-de-sac living with nature reserve nearby, ideal for growing families.
Built 2024; modern, low-maintenance three-bedroom detached home
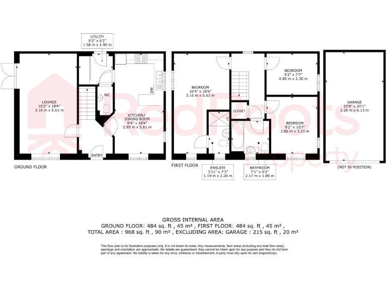
This well-presented three-bedroom detached home, built in 2024, sits on a quiet cul-de-sac in the sought-after Warren Park development, bordering Potteric Carr Nature Reserve. The layout suits a family seeking modern, low-maintenance living with easy access to local amenities, Doncaster city centre and main roads (M18 / A1).
The ground floor offers a full-length living room with patio doors to a landscaped, low-maintenance garden and a light-filled kitchen/diner with walk-in pantry. A matching utility, downstairs WC and useful partially boarded loft add practical storage and day-to-day convenience. The detached garage has power, lighting and EV charging pre-wire.
Upstairs the master bedroom spans the depth of the house and includes a private en-suite with double shower. Bedroom two is a good-sized double; bedroom three is a single suitable as a nursery, guest room or home office. The family bathroom is modern and finished in grey marble-effect tiling.
Notable limits: the overall living area is around 968 sq ft (average sized), so room proportions are practical rather than expansive. Visitor parking around the cul-de-sac is available but limited, and the garage sits at the bottom of the garden which may not suit every buyer. Otherwise the property offers a largely move-in-ready finish with fast broadband, mains gas heating and low-maintenance outdoor space.
3 bedroom detached house for sale in Herringbone Drive, Bessacarr, Doncaster, DN4 — £290,000 • 3 bed • 3 bath • 451 ft²
5 bedroom detached house for sale in Brocklesby Drive, Bessacarr, Doncaster, DN4 — £389,500 • 5 bed • 2 bath • 1191 ft²
3 bedroom semi-detached house for sale in Bawtry Road,
Bessacarr,
Doncaster,
DN4 — £265,000 • 3 bed • 1 bath • 1153 ft²
3 bedroom detached house for sale in Bawtry Road,
Bessacarr,
Doncaster,
DN4 — £305,000 • 3 bed • 1 bath • 381 ft²
3 bedroom semi-detached house for sale in Bawtry Road,
Bessacarr,
Doncaster,
DN4 — £265,000 • 3 bed • 1 bath • 575 ft²
3 bedroom detached house for sale in Bawtry Road,
Bessacarr,
Doncaster,
DN4 — £295,000 • 3 bed • 1 bath • 1449 ft²






























































































































