RG12 7RJ - 2 bed wildridings two bedroom maisonette in Greenhow, RG12…

View on Property Piper

2 bedroom maisonette for sale in Greenhow, Bracknell, Berkshire, RG12

Summary - 33 GREENHOW BRACKNELL RG12 7RJ

2 bed 1 bath Maisonette

Compact, chain-free flat with garage and long lease, ideal for buyers or investors.
- Chain-free first-floor maisonette with own entrance
- Two bedrooms, one bathroom; compact, efficient layout
- Garage in nearby block plus residents' parking
- Large internal storage cupboard included
- Long lease remaining (about 130 years)
- Area flagged as deprived with higher crime levels
- Timber-frame construction, partial insulation assumed
- Double glazing present; install date unknown
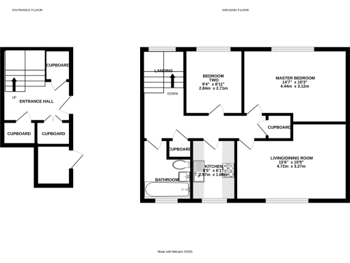
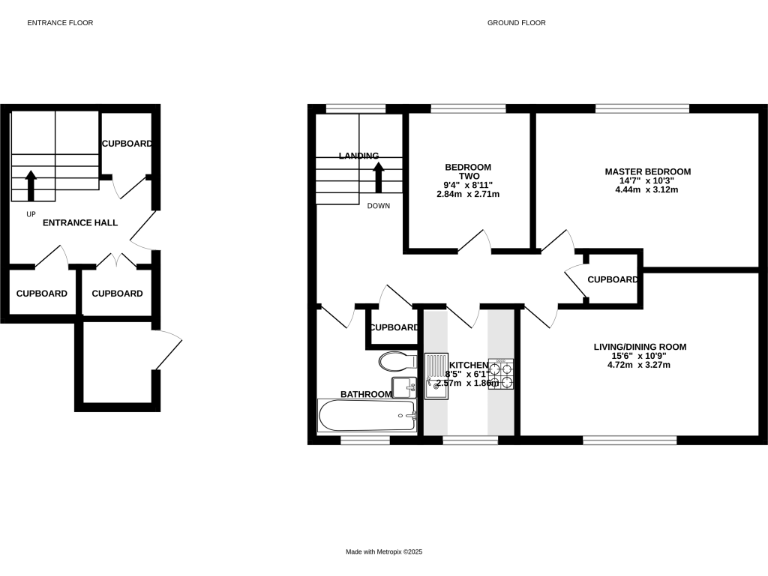
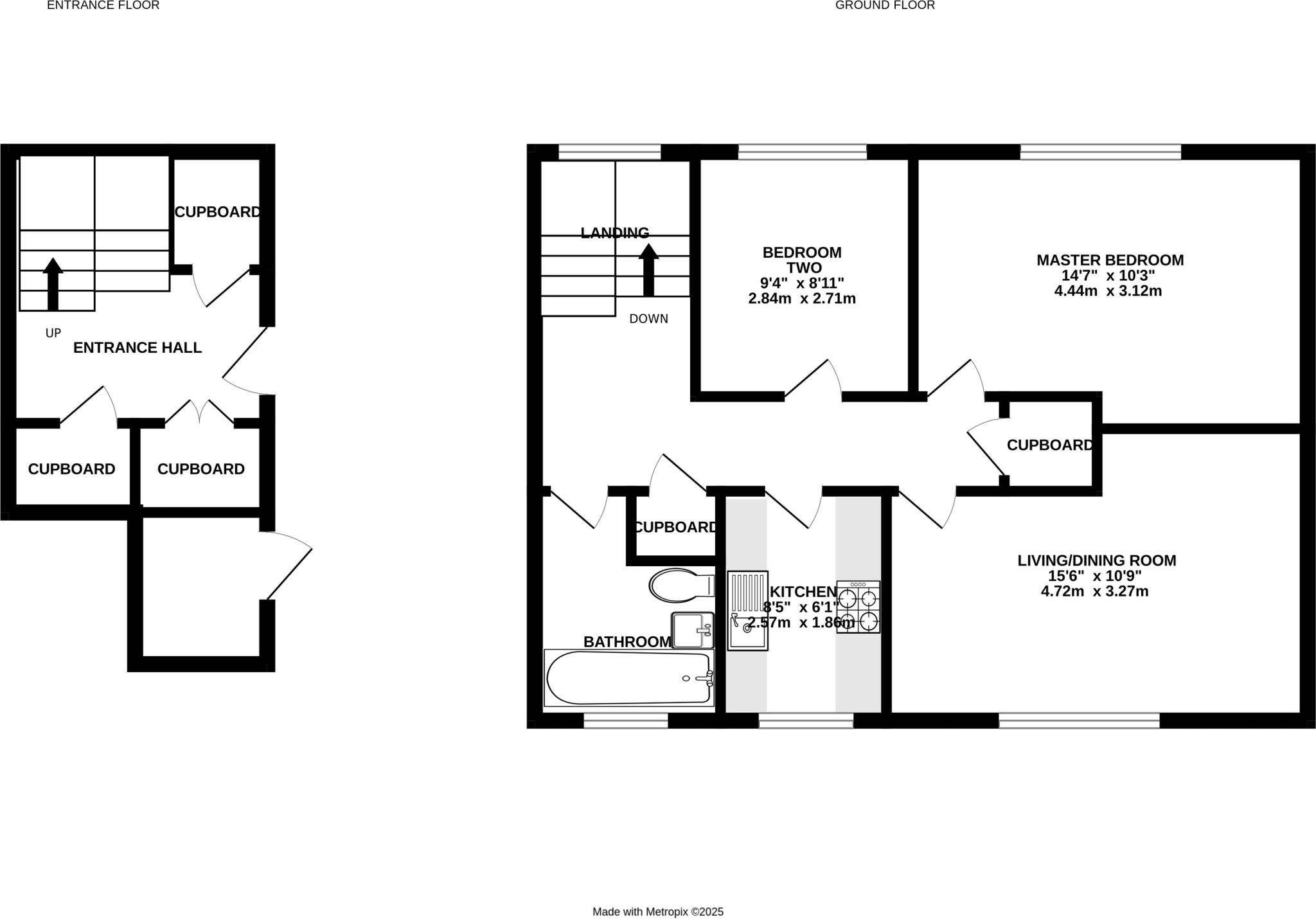
A first-floor two-bedroom maisonette in Wildridings, offered chain-free and with a long lease (about 130 years). The layout is compact and efficient: entrance, living room, fitted kitchen, bathroom, two bedrooms and a large built-in storage cupboard. Accommodation totals about 721 sq ft and presents neutrally, ready for immediate occupation or letting.

Practical benefits include a garage in a nearby block, residents' parking, good mobile signal and fast broadband — useful for commuters and renters. The location provides easy access to the M3/M4, Bracknell station, local buses, and several well-regarded primary and secondary schools.

Be aware of the wider context: the area scores as deprived with higher-than-average crime levels. The building dates from the late 1960s–1970s with timber-frame elements and partial insulation (assumed). Double glazing is fitted but installation date is unknown. Council tax is low and ground rent is nominal (£30). This property suits first-time buyers seeking a manageable starter home or investors after a straightforward buy-to-let with modest refurbishment potential.

Property Details

Brochure Descriptions

Image Descriptions

Rooms

Textual Property Features

Target Audience

AI Tags

Detected Visual Features

EPC Details

Nearby Schools

Nearest Bars And Restaurants

,,,,}

Nearest General Shops

,,}

Nearest Grocery shops

,,}

Nearest Supermarkets

,,}

Nearest Religious buildings

,,}

Nearest Medical buildings

,,,}

Nearest Airports

}

Nearest Leisure Facilities

,,,,}

Nearest Tourist attractions

,,}

Nearest Train stations

,,,,}

Nearest Bus stations and stops

,,,,}

Nearest Hotels

,,}

Tags

Local Market Stats

AirBnB Data

Similar Properties

Meta

High Res Images

Compatible Images

Low res Images

Thumbnails

Raw Images

High Res Floorplan Images

Compatible Floorplan Images

Low res Floorplan Images

FloorplanImages Thumbnail

Raw Floorplan Images