Modern, low-maintenance home with parking and storage near local amenities.
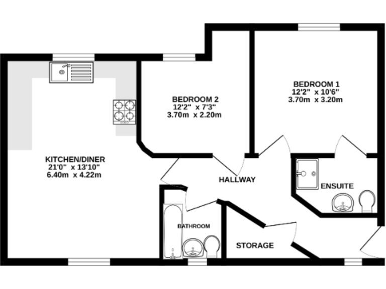
Two-bedroom second-floor apartment with en suite to principal bedroom
This well-presented two-bedroom second-floor apartment in Brighton Hill offers low-maintenance modern living with practical essentials in place. The principal bedroom benefits from an en suite, and the open-plan lounge/kitchen creates a bright, sociable ground for everyday life. An allocated off-street parking space and private outdoor storage add convenient storage and parking solutions.
The flat is leasehold with 114 years remaining and reasonable running costs for its type: an annual service charge of £1,615.13 and ground rent of £190. Energy performance is fair at EPC C (80), with mains gas heating and double glazing fitted. Council Tax Band C keeps ongoing taxes affordable.
Buyers should note the property’s compact overall size (about 505 sq ft) and that the local area faces higher crime levels and wider area deprivation indicators. Broadband speeds are reported slow, which may affect remote working. These factors, together with the service charge and ground rent, are important for budgeting and suitability.
Well-located for local shops, schools rated Good nearby, and transport links into Basingstoke, this apartment suits first-time buyers or investors seeking a manageable, modern home with clear income or owner-occupier potential. No onward chain offers a straightforward purchase route.
2 bedroom flat for sale in Sinclair Drive, Basingstoke, Hampshire, RG21 — £210,000 • 2 bed • 2 bath • 625 ft²
2 bedroom apartment for sale in Wella Road, Park Heights Wella Road, RG22 — £185,000 • 2 bed • 1 bath • 517 ft²
2 bedroom flat for sale in Victoria Street, Basingstoke, Hampshire, RG21 — £210,000 • 2 bed • 1 bath • 542 ft²
2 bedroom ground floor flat for sale in Bourdillon Gardens, Basingstoke, RG24 — £180,000 • 2 bed • 2 bath • 571 ft²
2 bedroom flat for sale in Park Prewett Road, Basingstoke, RG24 — £210,000 • 2 bed • 1 bath • 600 ft²
2 bedroom apartment for sale in Winterthur Way, Basingstoke, Hampshire, RG21 — £165,000 • 2 bed • 2 bath • 710 ft²


































