W3 7AJ - 3 bedroom semidetached house for sale in Glendun Road, Acto…

View on Property Piper

3 bedroom semi-detached house for sale in Glendun Road, Acton, W3

Summary - 10, GLENDUN ROAD W3 7AJ

3 bed 1 bath Semi-Detached

**Standout Features:**
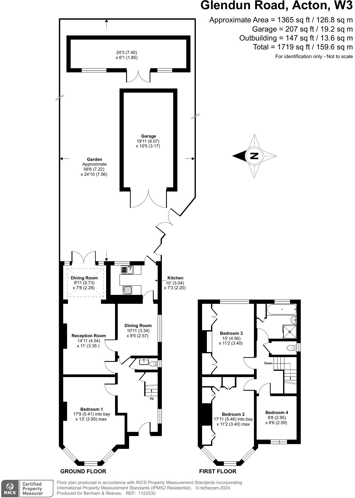
- Charming 1930's semi-detached home, approximately 1,365 sq ft
- Flexible layout with three bedrooms and potential to extend (STPP)
- Spacious east-facing garden and garage for parking convenience
- Chain-free for easy and quick transactions
- Close to East Acton Underground Station for convenient commuting

This delightful 1930's semi-detached home offers over 1,300 square feet of living space, perfect for families or investors looking for a property with immense potential. With the possibility to extend (subject to planning permission), the thoughtful layout includes a separate reception currently serving as a bedroom, a cozy family dining room, and a compact modern kitchen leading directly into the sunny east-facing garden. The three well-sized bedrooms and a family bathroom are conveniently positioned upstairs, complemented by loft storage for added practicality.

Situated on a quiet residential street, the property benefits from ample off-street parking and a garage, while local amenities, including shops like Lidl and leisure facilities, are just a stone's throw away. Additionally, the excellent transport links provided by East Acton Underground Station and easy access to the A40 make for a seamless commute. While the area has seen a slightly above-average crime rate, it's home to a vibrant community with several reputable schools nearby, making it an attractive option for families. With its appealing condition and flexible living options, this property won’t be on the market for long—act quickly to envision your life here!

Property Details

Brochure Descriptions

Image Descriptions

Floorplan Description

Rooms

Textual Property Features

Detected Visual Features

EPC Details

Nearby Schools

Nearest Bars And Restaurants

,,,,}

Nearest General Shops

,,}

Nearest Grocery shops

,,}

Nearest Supermarkets

,,}

Nearest Religious buildings

,,}

Nearest Medical buildings

,,,}

Nearest Airports

,}

Nearest Leisure Facilities

,,,,}

Nearest Tourist attractions

,,}

Nearest Train stations

,,,,}

Nearest Bus stations and stops

,,,,}

Nearest Hotels

,,}

Tags

Local Market Stats

AirBnB Data

Similar Properties

Meta

High Res Images

Compatible Images

Low res Images

Thumbnails

Raw Images

High Res Floorplan Images

Compatible Floorplan Images

Low res Floorplan Images

FloorplanImages Thumbnail

Raw Floorplan Images