Newly renovated four-bed executive home on a large private plot in peaceful St Michaels..
- Newly renovated throughout, turnkey family home
- Four double bedrooms; main bedroom with walk-in wardrobe and en suite
- Conservatory with insulated roof and five radiators, year-round use
- Detached double garage with electric door, power and lighting
- Large private rear garden with new 16m² patio and mature planting
- New combi boiler and upgraded heating system, water tank removed
- Hamlet location: limited local services and average broadband/mobile
- Council Tax Band G — relatively high running cost
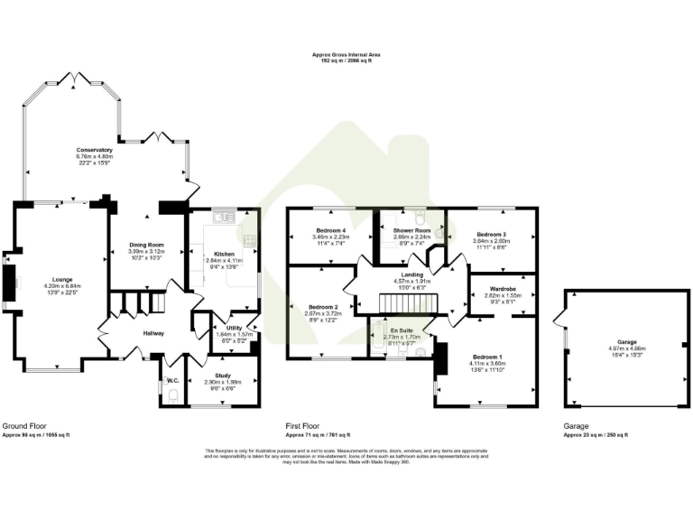
A large, newly renovated four-bedroom detached home set at the end of a peaceful cul-de-sac in St Michaels. Upgrades over the last 12 months include a new combi boiler, bespoke oak staircase, refreshed flooring and lighting, and fully refurbished bathrooms — the house is presented ready to move into.
The ground floor offers flexible living: a formal lounge with gas living flame fire, bright conservatory with insulated roof and radiators for year-round use, separate games/snug room and a well-equipped kitchen with high-spec integrated Bosch appliances and adjoining utility. A front study provides practical space for home working.
Upstairs, the principal suite includes a walk-in wardrobe and en suite; three further double bedrooms and a modern family bathroom complete the layout. Outside there is a large private garden with new patio, mature planting, a detached double garage with electric door and ample driveway parking.
Practical points to note: the house sits in a hamlet-style location with limited local services, average mobile and broadband speeds, and council tax described as quite expensive (Band G). Flood risk is low and the plot is generous, making the home well suited to families seeking space, quality finishes and countryside living with good privacy.
4 bedroom detached house for sale in Chatsworth House, Garstang Road, St. Michaels, PR3 — £548,500 • 4 bed • 3 bath • 2000 ft²
5 bedroom detached house for sale in Garstang Road, St Michaels On Wyre, PR3 — £575,000 • 5 bed • 3 bath • 2442 ft²
4 bedroom detached house for sale in The Oaks, Preston, PR3 — £440,000 • 4 bed • 2 bath • 1895 ft²
4 bedroom detached house for sale in Sparrow Lane, Preston, PR3 — £430,000 • 4 bed • 2 bath • 1798 ft²
4 bedroom detached house for sale in Moss House Road, Blackpool, FY4 — £440,000 • 4 bed • 2 bath • 2091 ft²
4 bedroom detached house for sale in Kinsale, Stricklands Lane, Stalmine, Poulton-Le-Fylde, FY6 — £625,000 • 4 bed • 2 bath • 1898 ft²






















































































































































