Bright, flexible three-bedroom property with private garden and garage near top schools.
Three-bedroom semi-detached with flexible study that can be fourth bedroom
Main bedroom with private en-suite shower room for added convenience
Bright lounge flowing into modern kitchen/diner, ideal for families
Fully enclosed, landscaped rear garden for privacy and entertaining
Garage plus off-road parking; practical for multiple vehicles
Double glazing and mains gas central heating; EPC rating C
Freehold tenure; built 2007–2011, approximately 1,217 sq ft
Moderate council tax; average-sized rooms for this property type
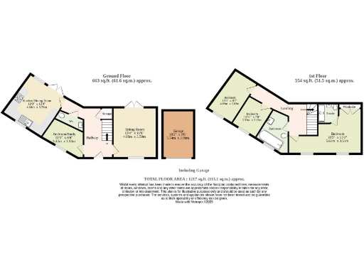
Set on the popular Round House Park development in Cringleford, this well-presented semi-detached house offers practical, flexible living for growing families. The ground floor features a bright lounge opening into a modern kitchen/diner, plus a study that can serve as a fourth bedroom or home office. A cloakroom adds day-to-day convenience.
Upstairs, the main bedroom benefits from its own en-suite shower room, with two further bedrooms served by a well-appointed family bathroom. The property is offered in move-in condition and benefits from double glazing and gas central heating, combining comfort with reasonable running costs.
Outside, the fully enclosed, landscaped rear garden provides a private space for relaxing or entertaining, while a garage and off-road parking increase practicality for households with cars. The house is Freehold, built within the 2007–2011 period, and extends to about 1,217 sq ft.
Location is a strong selling point: excellent local amenities, highly regarded schools nearby, and straightforward access to Norwich, the A11 and public transport. Notable practical points include a moderate council tax band and an EPC rating of C—comfortable but not top-tier energy performance.
4 bedroom detached house for sale in Round House Way, Cringleford, NR4 — £450,000 • 4 bed • 2 bath • 1596 ft²
4 bedroom detached house for sale in Kingfisher Close, Cringleford, Norwich, Norfolk, NR4 — £398,500 • 4 bed • 3 bath • 1198 ft²
3 bedroom terraced house for sale in Lobelia Lane, Cringleford, NR4 — £280,000 • 3 bed • 2 bath • 750 ft²
4 bedroom detached house for sale in Oaklands Drive, Off Colney Lane, NR4 — £600,000 • 4 bed • 2 bath • 1724 ft²
3 bedroom end of terrace house for sale in Willowcroft Way, Cringleford, Norwich, Norfolk, NR4 — £350,000 • 3 bed • 3 bath • 1299 ft²
2 bedroom terraced house for sale in Verbena Road, Cringleford, NR4 — £250,000 • 2 bed • 1 bath • 824 ft²














































































