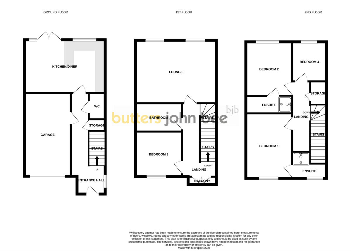
**Standout Features:**
- Four spacious bedrooms, two with ensuite bathrooms
- Modern, three-storey semi-detached design
- Integrated garage and private driveway for convenient parking
- Well-maintained enclosed rear garden, ideal for family activities
- Open plan kitchen and dining area with built-in appliances
**Concerns:**
- Leasehold tenure with an annual ground rent of £200
- Located in an area classified as high-crime and very deprived
Discover your next family home in this contemporary four-bedroom semi-detached townhouse, offering a blend of style and functionality in a growing community. Spread across three levels, this property boasts a well-designed kitchen with ample storage, a bright living room with large windows, and a versatile bedroom that can serve as a playroom or office. Enjoy the convenience of two ensuite bathrooms on the second and third floors, designed for family comfort.
The property features a private driveway and an integral garage, providing excellent parking options, while the low-maintenance garden offers a serene outdoor space for relaxation or play. With high-speed broadband and excellent mobile signal, stay connected with ease. Although the surrounding area presents challenges, including a high crime rate and economic deprivation, the home itself provides a secure and comfortable environment perfect for families or investors looking for rental potential. Act fast, as opportunities like this don't stay on the market long!
2 bedroom semi-detached house for sale in Fell Avenue, Newcastle, Staffordshire, ST5 — £195,000 • 2 bed • 2 bath • 705 ft²
3 bedroom semi-detached house for sale in Harry Eaton Grove, Stoke-on-Trent, Staffordshire, ST1 — £230,000 • 3 bed • 2 bath • 854 ft²
3 bedroom semi-detached house for sale in Kelbrook Grove, Stoke-On-Trent, ST1 3R, ST1 — £175,000 • 3 bed • 3 bath • 722 ft²
4 bedroom end of terrace house for sale in Paris Court, Hanley, Stoke-on-Trent, ST1 — £185,000 • 4 bed • 2 bath • 1218 ft²
4 bedroom town house for sale in Park Street, Fenton, Stoke-On-Trent, ST4 — £199,950 • 4 bed • 2 bath • 1097 ft²
3 bedroom terraced house for sale in Adkins Street, Stoke-On-Trent, ST6 2LH, ST6 — £150,000 • 3 bed • 1 bath


















































































