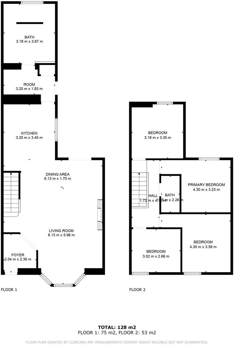
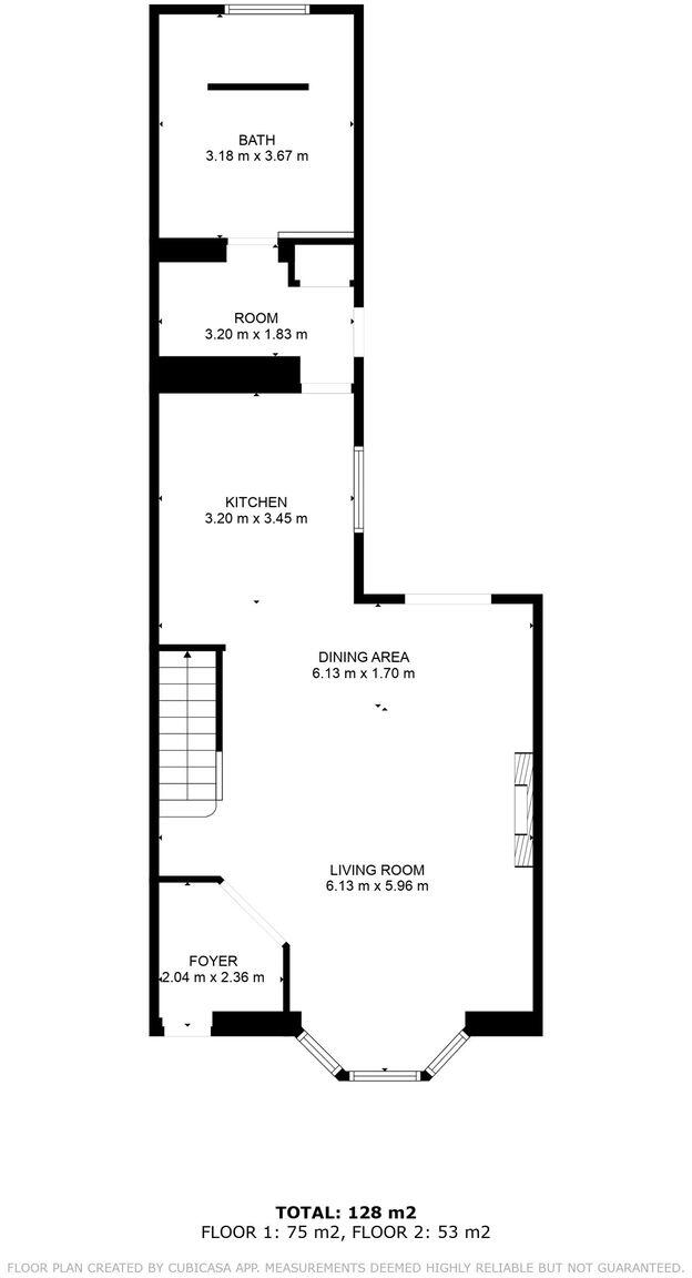
Newly renovated four-bedroom Victorian terrace near Caerphilly town centre and schools..
- Four double bedrooms with large windows
- Designer kitchen with acoustic wall slats and utility area
- Spa-style bathroom with freestanding bath and underfloor heating
- Full rewire and new plumbing completed
- Off-street parking for two cars via rear gate
- Landscaped, low-maintenance garden with porcelain patio
- Small plot; modest outdoor space for children/pets
- Located in very deprived area; above-average local crime
This newly renovated four-bedroom end‑of‑terrace sits just a short walk from Caerphilly town centre and its amenities, including schools, sports clubs and the castle. Interiors are bright and contemporary: generous bay-windowed living space, designer kitchen with black-and-gold accents, and a spa-style bathroom with freestanding bath and underfloor heating.
Practical modern upgrades include a full rewire, new plumbing, LED lighting throughout and off-street parking for two cars accessed by a rear gate. The landscaped garden and patio provide low-maintenance outdoor space, while large windows and French doors maximise natural light across the ground floor.
Buyers should note the property sits in a very deprived area with above-average local crime rates and a small plot size. The house is a Victorian build (c.1900–1929); external walls are likely uninsulated as built, and double-glazing install dates are unknown — though the interior has been comprehensively refurbished. These factors may influence heating costs or future insulation work for energy efficiency.
Overall this home suits families seeking a move-in‑ready, stylish period property close to town facilities and recreation fields, and for buyers prepared to consider modest ongoing maintenance or insulation improvements typical of older terraces.
4 bedroom detached house for sale in St. Martins Road, Caerphilly, CF83 1EN, CF83 — £565,000 • 4 bed • 2 bath • 1356 ft²
4 bedroom terraced house for sale in Rhymney Terrace, Caerphilly Town Centre, CF83 — £290,000 • 4 bed • 2 bath
3 bedroom end of terrace house for sale in Bowls Terrace, Caerphilly, CF83 2RD, CF83 — £240,000 • 3 bed • 2 bath • 1012 ft²
3 bedroom end of terrace house for sale in Salop Street, Caerphilly, CF83 1FX, CF83 — £220,000 • 3 bed • 1 bath • 893 ft²
3 bedroom terraced house for sale in De Winton Terrace, Llanbradach, Caerphilly, CF83 — £175,000 • 3 bed • 1 bath • 826 ft²
3 bedroom terraced house for sale in Princes Avenue, Caerphilly, CF83 1HS, CF83 — £300,000 • 3 bed • 1 bath • 1163 ft²


















































































































































































































