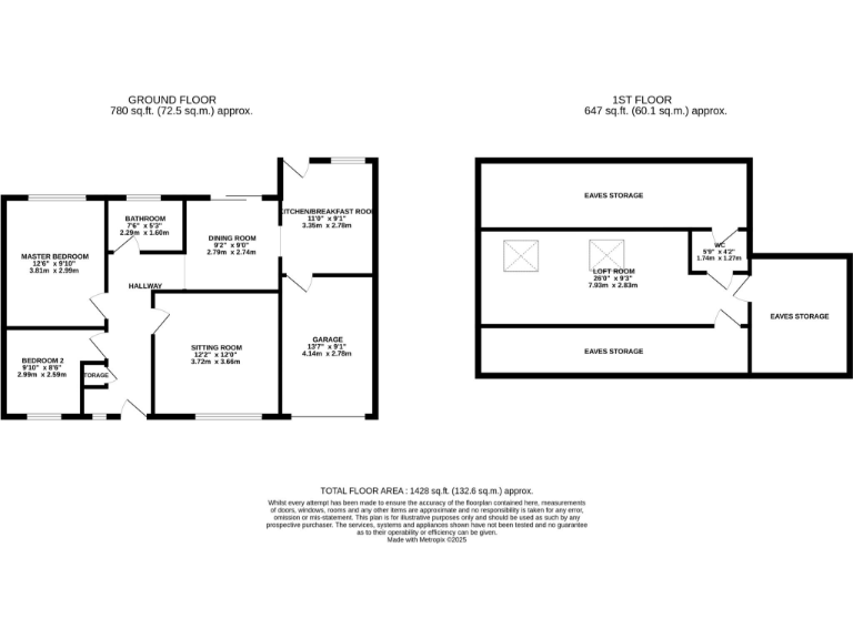
Large single-storey home with garage and low-maintenance garden.
Extremely large internal area — approx. 1,428 sqft
Two spacious reception rooms plus kitchen-breakfast room
Block-paved driveway and attached single garage
Low-maintenance rear garden with patio and stone areas
Single shower room only; one bathroom may limit larger households
Built c.1950–1966 — likely scope for modernization or updating
Area classified as deprived; local socioeconomic profile noted
Tenure and council tax band not provided — needs verification
This well-presented two-bedroom semi-detached bungalow offers roomy single-storey living with an unusually large footprint for the area. The layout includes two reception rooms, a kitchen-breakfast room with external access, and a modern three-piece shower room — practical for downsizers or buyers seeking comfortable, accessible accommodation. The block-paved driveway and attached single garage provide secure parking and storage, while the low-maintenance rear garden is simple to manage.
Constructed in the mid-20th century, the property benefits from double glazing and gas central heating to radiators. Broadband is fast and mobile signal is excellent, supporting home working or streaming without issue. The overall internal area is generous (approx. 1,428 sqft) and the large plot offers scope for modest extension or garden reconfiguration, subject to consents.
Important practical notes: tenure and council tax band are not specified in the data provided and should be confirmed. The area is classified as deprived with local socio-economic indicators showing ‘renting hard-pressed workers’ and ‘endeavouring social renters’ — buyers sensitive to neighbourhood profile should consider this. The building dates from c.1950–1966, so services and finishes may require updating in time; the description also notes potential for modernization.
With easy access to local shops, good primary schools and transport links into Wigan and Manchester, this bungalow suits buyers seeking accessible, low-maintenance single-storey living. It will particularly appeal to downsizers wanting space without the upkeep of a large garden, or investors looking for a sizeable rental property after confirming tenure and local demand.
2 bedroom bungalow for sale in Kenilworth Drive, Hindley Green, Wigan, Greater Manchester, WN2 — £220,000 • 2 bed • 1 bath • 727 ft²
2 bedroom semi-detached bungalow for sale in Grasscroft Road, Hindley Green, WN2 — £170,000 • 2 bed • 1 bath • 496 ft²
3 bedroom semi-detached bungalow for sale in Taylor Road, Hindley Green, WN2 — £250,000 • 3 bed • 1 bath • 1037 ft²
4 bedroom detached bungalow for sale in Regaby Grove, Hindley Green, WN2 4EB, WN2 — £340,000 • 4 bed • 2 bath • 1676 ft²
3 bedroom semi-detached bungalow for sale in Balmoral Drive, Hindley, WN2 — £250,000 • 3 bed • 2 bath
3 bedroom detached bungalow for sale in Cranstal Drive, Hindley Green, Wigan, WN2 — £345,000 • 3 bed • 2 bath • 911 ft²














































































