**Standout Features:**
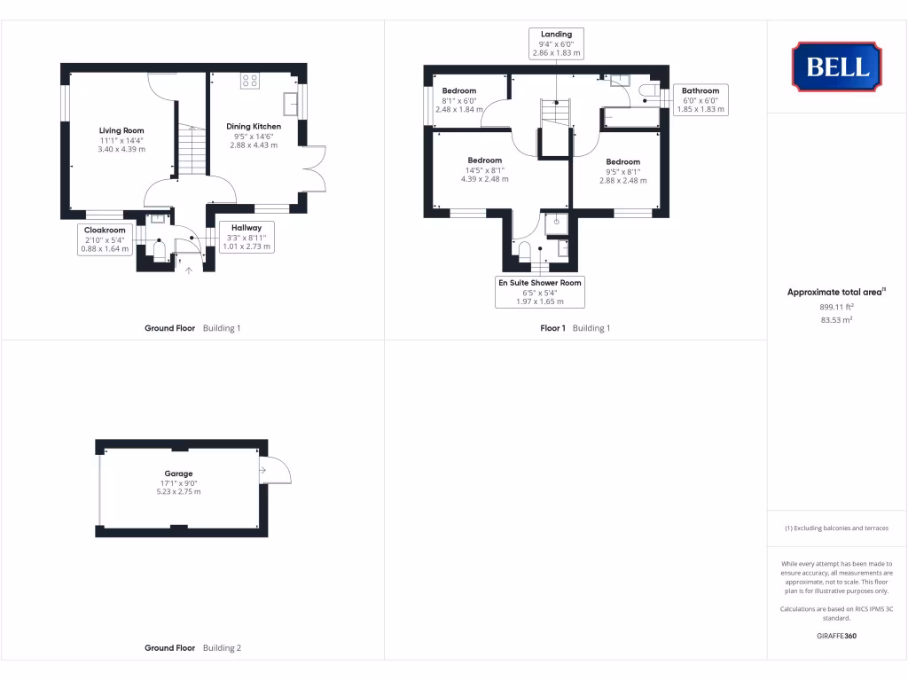
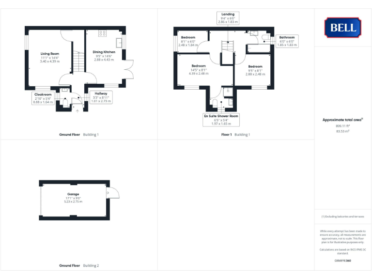
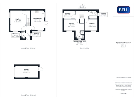
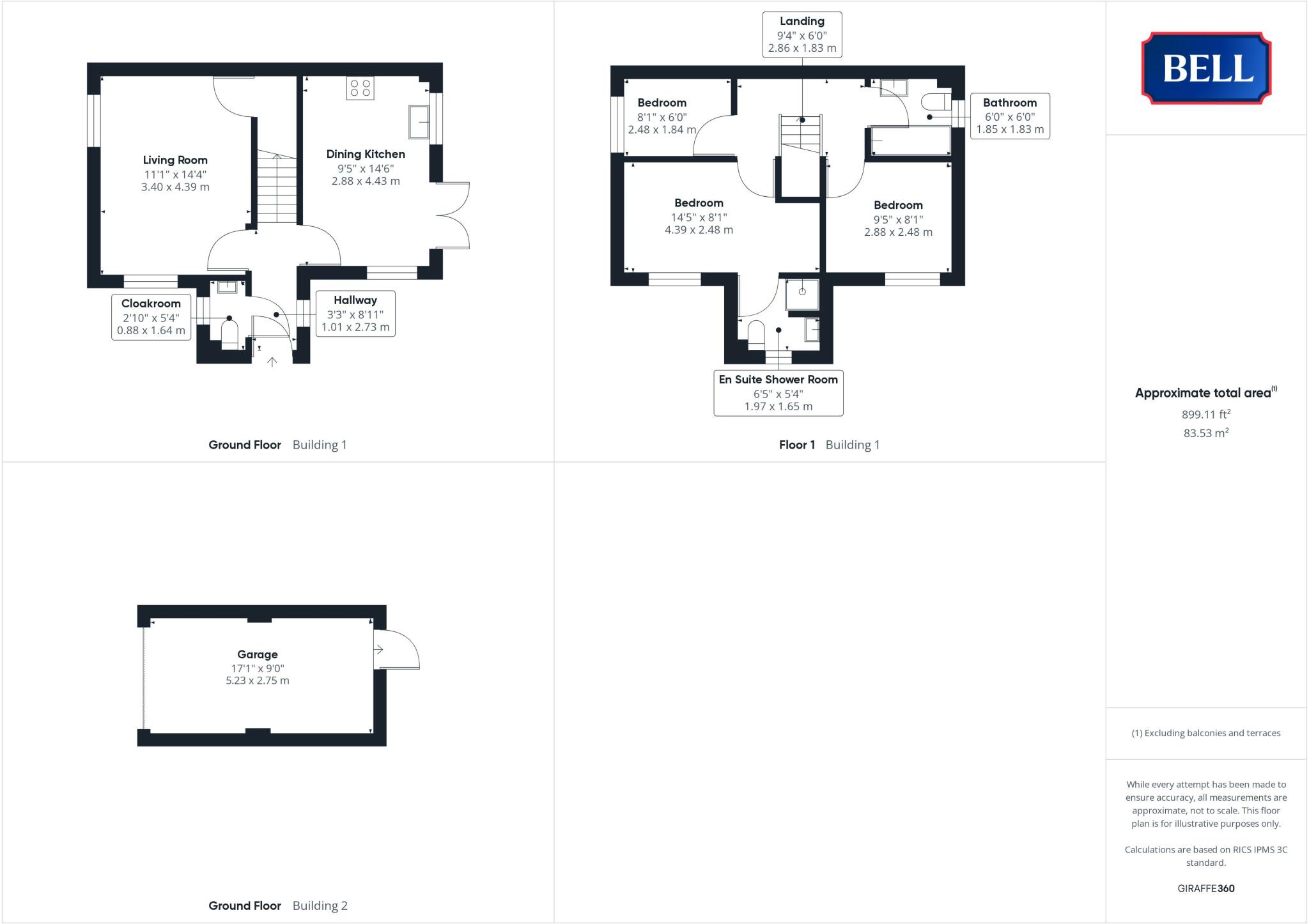
- Modern three-bedroom detached home, built in 2022
- Attractive corner plot with a well-maintained exterior
- Spacious dual-aspect living room and dining kitchen
- Master bedroom with en-suite bathroom
- Generous lawned garden and driveway parking for multiple vehicles
- Single garage for additional storage
- Located in a peaceful, affluent neighborhood with low crime rates
- Close proximity to schools, convenience stores, and public transport links
**Summary:**
Discover an exceptional opportunity to own this modern three-bedroom detached home at 24 Winceby Gardens, where contemporary comfort meets practical living. Perfectly suited for families, this property boasts a spacious and light-filled dual-aspect living room, a stylish dining kitchen, and a convenient cloakroom on the ground floor. The first floor features three well-proportioned bedrooms, including a master suite with its own en-suite bathroom and a family bathroom that caters to everyday needs.
Set on a desirable corner plot with a beautifully maintained garden, this home offers an inviting outdoor space for relaxation and play, along with ample driveway parking and a single garage for ease of access. Nestled in the charming Georgian market town of Horncastle, you're just moments away from local amenities, renowned schools like Queen Elizabeth’s Grammar School, and convenient public transport links to the coast and the city of Lincoln. With fast broadband and a strong mobile signal, it’s perfect for today’s modern living.
This property is a fantastic blend of comfort, functionality, and location—ideal for first-time buyers or families. Don’t miss this chance to make it your own; properties like this, in such a vibrant community, are not available for long!



































































