Generous family home with off-street parking, private garden and extension potential (STPP).
Detached five-bedroom family house with private rear garden
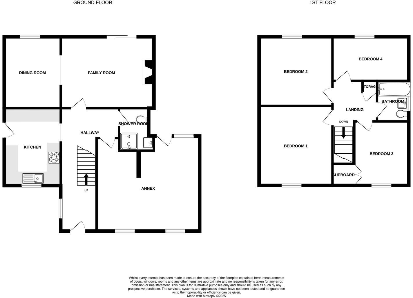
This spacious five-bedroom detached house on Peterborough Close offers practical family living in a highly sought-after Ashton-under-Lyne neighbourhood. The home sits on a quiet cul-de-sac with a wide driveway providing off-street parking for multiple cars and a private, not-overlooked rear garden with patio, lawn and sheltered decking — ideal for children and outside entertaining.
Internally the layout suits a growing family: a modern kitchen, generous lounge with patio doors, a separate dining room and a handy ground-floor shower room. A converted garage currently provides a self-contained annex with living space and bedroom, useful for guests or multigenerational living. Upstairs are four good double bedrooms and a family bathroom; the overall footprint and an opportunity to extend above the annex (STPP) offer scope to increase living space.
Practical details: the house is gas‑central heated with a boiler and radiators, double glazing (pre-2002), cavity‑filled walls and around 1,486 sq ft of accommodation. The 950‑year lease provides long-term security, but the property is leasehold and has a small ground rent of £40 per year. Council tax is moderate and broadband and mobile signal are strong.
Notable points to check at viewing include the converted garage’s compliance with building regulations/permissions, the age of the double glazing and any planned works if you intend to extend (STPP). Local schools and transport links are strong in parts of the area, though some nearby schools currently have weaker Ofsted ratings, so check school catchment priorities if that’s critical.
4 bedroom detached house for sale in Holden Clough Drive, Ashton-Under-Lyne, OL7 — £495,000 • 4 bed • 3 bath • 1858 ft²
5 bedroom detached house for sale in Winchester Avenue, Ashton-under-Lyne, Greater Manchester, OL6 — £500,000 • 5 bed • 3 bath • 1599 ft²
4 bedroom detached house for sale in Larkfield Close, Ashton-Under-Lyne, OL7 — £450,000 • 4 bed • 3 bath • 1225 ft²
4 bedroom detached house for sale in Durham Drive, Ashton-Under-Lyne, OL6 — £475,000 • 4 bed • 1 bath • 1626 ft²
5 bedroom detached house for sale in Truro Avenue, Ashton-under-Lyne, Greater Manchester, OL6 — £595,000 • 5 bed • 3 bath • 3000 ft²
4 bedroom detached house for sale in Exmoor Close, Ashton-Under-Lyne, OL6 — £365,000 • 4 bed • 2 bath • 1273 ft²






























































































