No chain detached bungalow in Hawarden village with garden, parking and strong renovation potential.
No onward chain — vacant and immediately available
Set on a decent plot in Hawarden village, this detached three-bedroom bungalow offers practical single‑storey living and no onward chain. The property sits close to excellent local primary and secondary schools, regular bus routes and commuter links (A55/A494), making it well placed for families and commuters.
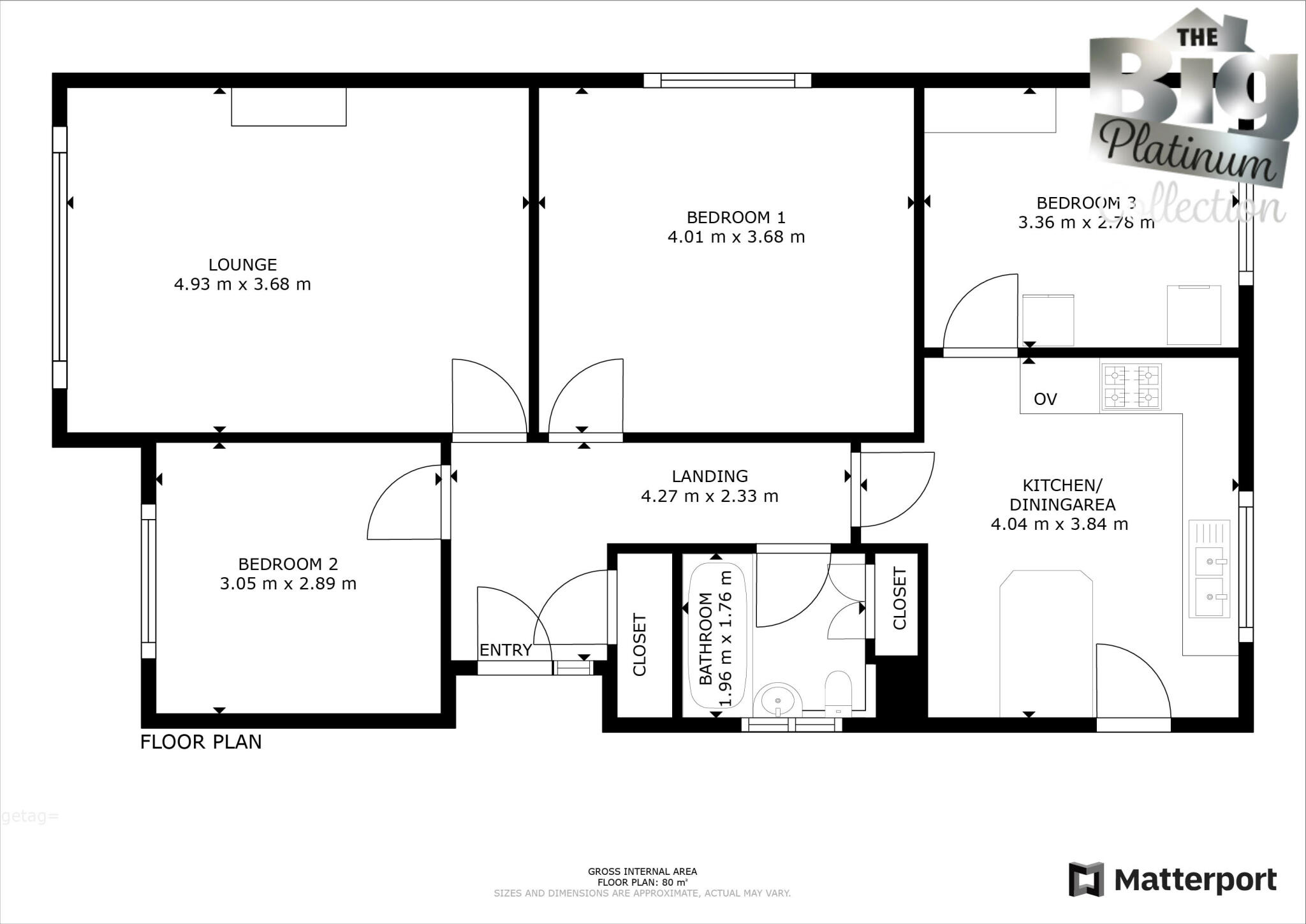
Internally the layout is traditional with a generous living room, separate dining room (or third bedroom), two double bedrooms and a bathroom. The house dates from the mid‑20th century and has double glazing and gas central heating; it measures about 861 sq ft, so rooms are comfortable rather than large.
The real opportunity here is refurbishment: the bungalow needs modernisation throughout, so buyers can reconfigure, update services and create an open plan kitchen/dining space. There is an enclosed rear garden, off‑street parking for multiple cars and useful outbuildings, which add practical value while works are undertaken.
Important practical points: the property is freehold but shows signs of ageing typical of its era and will require renovation; the single bathroom may limit larger families; council tax is above average. Local data include a mixed set of area indicators – village amenities and low crime, alongside some higher deprivation measures nearby – so prospective buyers should check locality details to suit their priorities.
3 bedroom detached bungalow for sale in Overlea Crescent, Hawarden, CH5 — £230,000 • 3 bed • 1 bath • 904 ft²
3 bedroom detached bungalow for sale in Moorfield Road, Hawarden, CH5 — £240,000 • 3 bed • 1 bath • 1733 ft²
3 bedroom bungalow for sale in Glynnedale Park, Hawarden, Deeside, Flintshire, CH5 — £350,000 • 3 bed • 1 bath • 1526 ft²
2 bedroom bungalow for sale in Vickers Close, Hawarden, Deeside, Flintshire, CH5 — £210,000 • 2 bed • 1 bath • 718 ft²
3 bedroom detached bungalow for sale in Penlan Drive, Hawarden, CH5 — £260,000 • 3 bed • 1 bath • 1076 ft²
3 bedroom bungalow for sale in Halkyn Road, Flint, CH6 — £215,000 • 3 bed • 1 bath • 1184 ft²






























































































































