Five-bedroom detached house with pool, large plot and easy commuter links..
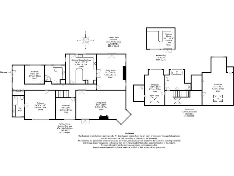
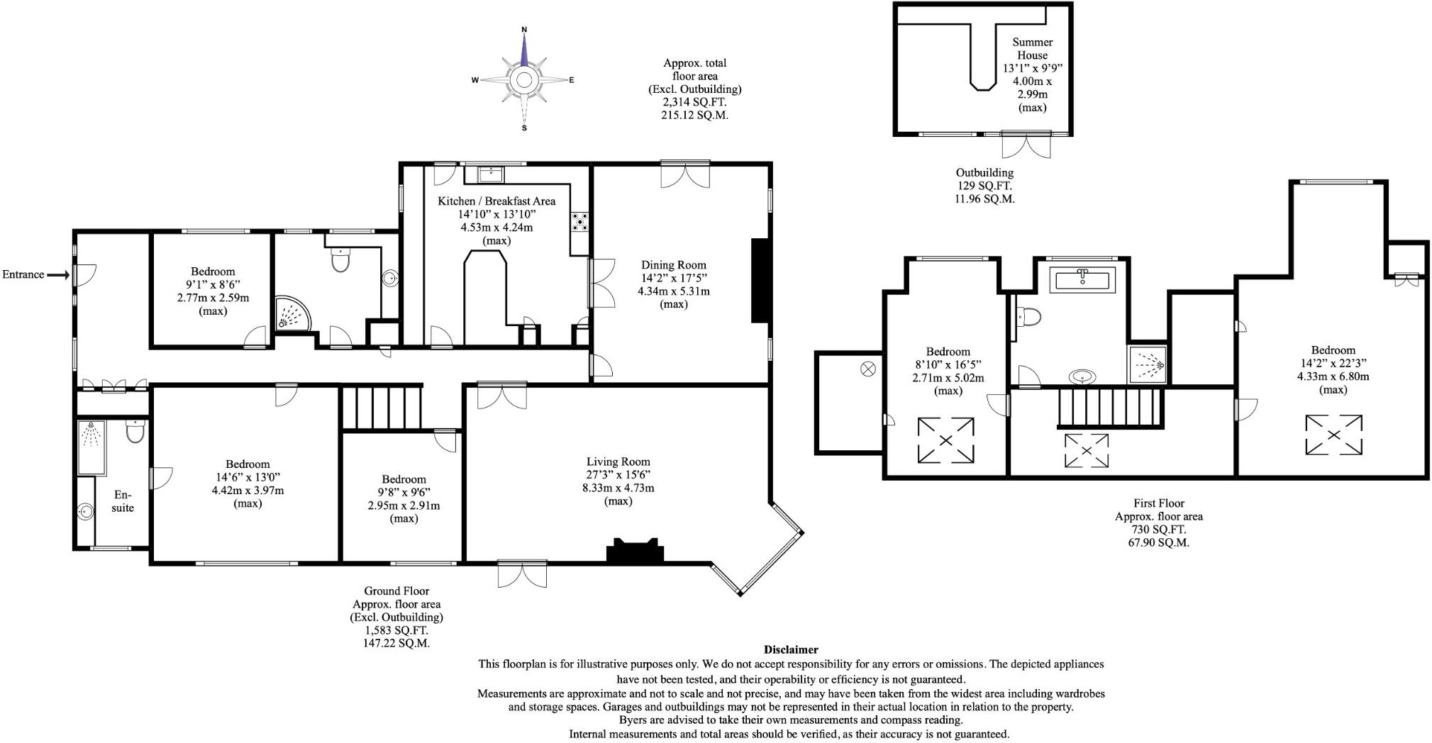
Five generous bedrooms across two levels, including two double bedrooms with skylights
Large kitchen/breakfast room with adjoining formal dining room
Swimming pool, summer house and BBQ area ideal for outdoor entertaining
Large plot with picturesque countryside views and quiet village location
Multiple-car driveway and detached garage; off-street parking available
Oil-fired boiler and radiators; main fuel is oil (buyer to note ongoing running costs)
Cavity walls likely uninsulated and unknown double-glazing age — upgrade potential
Council tax rated quite expensive; some modernisation required for energy efficiency
Set on a large plot in peaceful Higham, this five-bedroom detached home pairs generous family living with expansive Kentish countryside views. The ground floor offers an open flow from a substantial kitchen/breakfast room to a large dining room and cosy living area, while upstairs provides two airy double bedrooms with skylights and a family bathroom. Natural light and exterior sightlines are standout features throughout.
Outside, the garden is laid out for entertaining and family life: a swimming pool, dedicated BBQ area with sink, summer house and a multi-car driveway. The setting is tranquil yet convenient — Higham station is a short walk for direct London links and local schools (including selective grammar schools) are within easy reach, making the location strong for commuters and families.
Practical considerations: the house was built in the 1930s–40s and has oil-fired central heating with a boiler and radiators. Walls are cavity-built with no known insulation upgrade; glazing is double but install date is unknown. Council tax is noted as quite expensive. These factors, plus some mid-century elements, mean the property will suit buyers happy to invest in updating for improved energy efficiency and modern finishes.
This is a compelling option for families who prioritise space, outdoor lifestyle and school access, or for buyers seeking a characterful home with scope to modernise. The combination of rural views, sizeable plot and good transport links gives clear potential — whether you plan to refresh key systems and finishes or enjoy the property largely as-is.
5 bedroom detached house for sale in School Lane, Higham, Kent, ME3 — £625,000 • 5 bed • 2 bath • 2118 ft²
5 bedroom detached house for sale in Lee Green Cottages Town Road, Cliffe Woods, Rochester, Kent, ME3 — £900,000 • 5 bed • 3 bath • 1606 ft²
4 bedroom detached house for sale in Dillywood Lane, Higham, Rochester, Kent, ME3 — £1,000,000 • 4 bed • 3 bath • 2172 ft²
5 bedroom detached house for sale in Gore Green Road, Higham, Kent, ME3 — £875,000 • 5 bed • 3 bath • 2648 ft²
4 bedroom detached house for sale in Old Watling Street, Rochester, Kent, ME2 — £800,000 • 4 bed • 2 bath • 2569 ft²
5 bedroom detached house for sale in Chalk Road, Higham, Rochester, Kent, ME3 — £875,000 • 5 bed • 3 bath • 2169 ft²


























































































































