Extensive 10-bed end-terrace with strong conversion potential, sold via online auction.
End-of-terrace Victorian-style property with high ceilings and original features
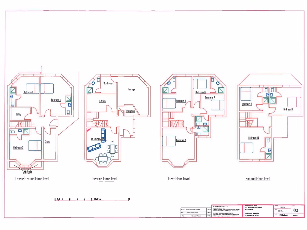
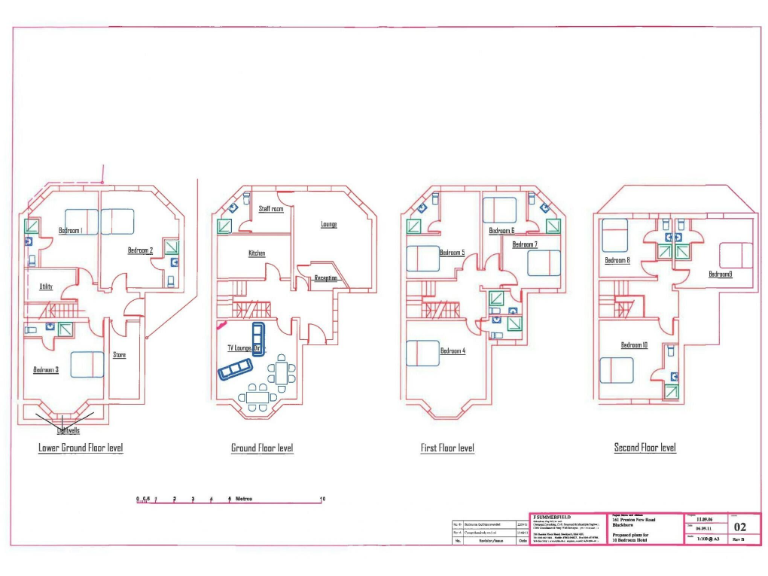
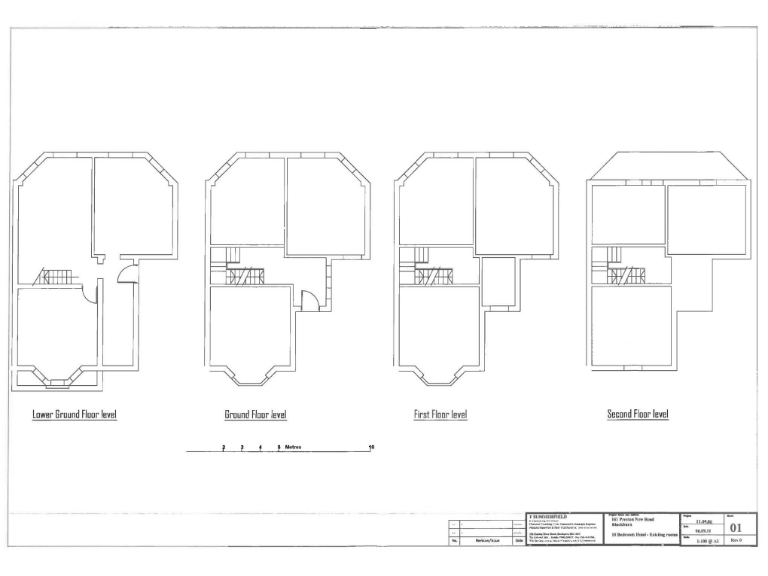
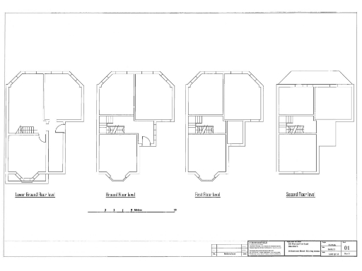
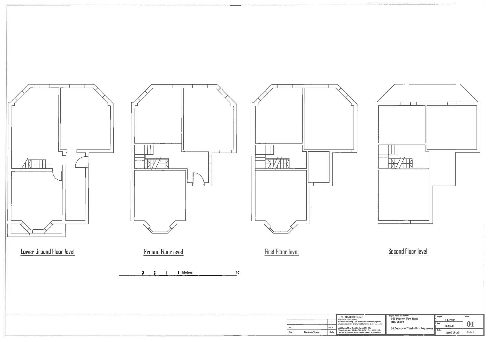
A large end-of-terrace property with genuine income or conversion potential close to Blackburn town centre. The house offers 16 rooms including ten bedrooms and four bathrooms across high-ceilinged, period-style accommodation. Off-street parking includes a driveway for three cars plus six rear spaces — rare for central locations.
This lot is marketed as an investment/refurbishment opportunity: potential for a HMO, offices or apartments subject to planning permission. The building will need work throughout; gas and water supplies are currently turned off and the property requires renovation to make habitable or lettable. EPC rating F should be factored into running-cost and improvement budgets.
Sold freehold via Secure Sale online auction — terms apply. The plot is large and the house’s scale, high ceilings and period features offer scope for a strong yield after refurbishment or for conversion if planning permits. Note the local area is classified as very deprived, which affects tenant demand and rental levels.
Serious buyers should budget for immediate works to services, energy-efficiency improvements and a full refurbishment. Viewings are recommended to assess layout and scope for conversion; planning enquiries will be needed for HMO or apartment use.
End of terrace house for sale in Preston New Road, Blackburn, BB2 — £350,000 • 1 bed • 1 bath • 2971 ft²
3 bedroom end of terrace house for sale in Revidge Road, Blackburn, BB2 — £120,000 • 3 bed • 1 bath
2 bedroom terraced house for sale in Wensley Road, Blackburn, Lancashire, BB2 — £85,000 • 2 bed • 1 bath • 840 ft²
3 bedroom house for sale in Jessel Street, Blackburn, BB2 — £65,000 • 3 bed • 2 bath • 1055 ft²
3 bedroom terraced house for sale in 8 Elim Place, Blackburn, Lancashire BB2 4HB, BB2 — £50,000 • 3 bed • 1 bath • 926 ft²
2 bedroom terraced house for sale in Dukes Brow, Blackburn, Lancashire, BB2 6DH, BB2 — £69,950 • 2 bed • 1 bath • 991 ft²


























































































