Light modern living with a low-maintenance garden and garage.
3 bedrooms with ensuite and family bathroom
Open-plan kitchen/dining with central island and French doors
Garage and driveway for family parking
Landscaped, low-maintenance rear garden with patio and decking
Freehold tenure; excellent mobile and fast broadband
Small overall internal size (~660 sq ft) may feel compact
High local crime levels and area deprivation are notable concerns
No flood risk; decent plot size
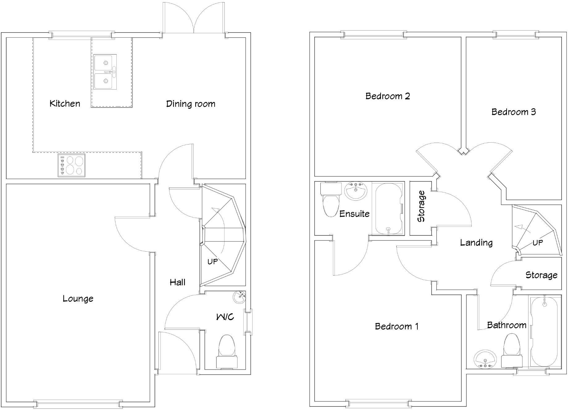
This attractive three-bedroom semi-detached home blends a distinctive exterior with bright, modern living internally. The open-plan kitchen/dining space and lounge offer comfortable family living, while the landscaped, low-maintenance rear garden and front driveway with garage provide easy outdoor space and parking.
Inside, the house is well-equipped for family life: a convenient ground-floor cloakroom, useful under-stair storage with plumbing for a washing machine, and an ensuite to the main bedroom. Decorative touches such as panelled media walls, a central island in the kitchen, and a diamond window in the bathroom give the house individual character.
Practical strengths include freehold tenure, excellent mobile signal and fast broadband, low flood risk and a decent plot size. Equally important to note: the property is classed as small overall (about 660 sq ft), which may feel compact for some families, and the surrounding area records higher crime levels and significant deprivation.
For buyers seeking a stylish, turnkey first or family home close to local schools and amenities, this property delivers on low-maintenance living and curb appeal. Buyers wanting more space or quieter surrounds should weigh the smaller internal area and local neighbourhood statistics against the house’s conveniences and character.
3 bedroom semi-detached house for sale in Ynys Bery Close, Caerphilly, CF83 — £275,000 • 3 bed • 1 bath • 721 ft²
3 bedroom property for sale in Pwll Yr Allt, Tir-Y-Berth, CF82 — £205,000 • 3 bed • 1 bath • 818 ft²
3 bedroom detached house for sale in Rhodfa'r Afon, Aberdare, CF44 — £270,000 • 3 bed • 3 bath
3 bedroom semi-detached house for sale in Pwll Yr Allt, Tir-Y-Berth, CF82 — £245,000 • 3 bed • 1 bath • 732 ft²
3 bedroom semi-detached house for sale in Lon Rhymni, Blackwood, NP12 — £250,000 • 3 bed • 1 bath • 743 ft²
3 bedroom detached house for sale in Cae'r Garreg, Oakdale, NP12 — £275,000 • 3 bed • 3 bath • 957 ft²














































































































































































