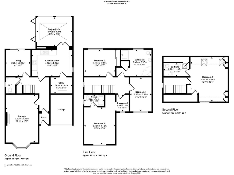
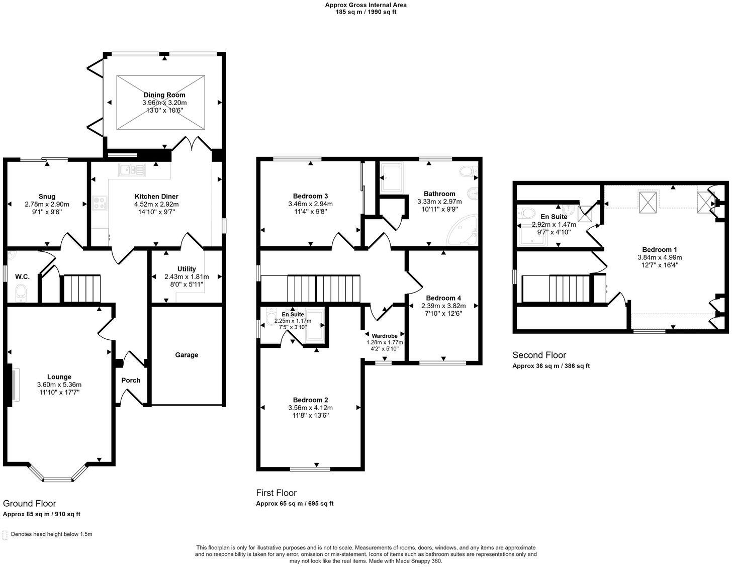
**Standout Features:**
- Four double bedrooms with two ensuites
- Spacious family bathroom and ground floor WC
- Three versatile reception rooms
- Stunning sea views from the master suite
- Private, fully enclosed rear garden
- Driveway parking for two cars and a garage
- No forward chain for a smooth transaction
- Excellent commuting access to A55
Nestled in a tranquil cul-de-sac in Tanllwyfan, Old Colwyn, this beautifully presented four-bedroom family home is a rare find. The heart of the house showcases a bright open-concept layout, featuring three generous reception areas—including a cozy lounge, a dining room with a feature lantern roof, and a snug that could serve as a playroom or home office. The modern kitchen is complete with ample storage and a utility room. Upstairs, you'll discover a spacious master suite that offers stunning sea views along with two additional double bedrooms and a stylish family bathroom.
The enclosed south-facing garden is perfect for family gatherings and relaxation, while your parking needs are met with the driveway and garage. Built in 2004, this home has been thoughtfully maintained and updated, boasting no forward chain for a seamless move-in experience. With easy access to the A55, this property not only provides comfort and elegance but also a convenient lifestyle. Don't miss out on this exceptional family haven—schedule your viewing today!















































































































