Charming three-storey home moments from shops, restaurants and the seafront.
- Direct beachfront position with panoramic sea views
- Short stroll to Whitstable High Street and harbour
- Beautifully presented Victorian terraced cottage, three floors
- Two double bedrooms plus third-floor bedroom/study
- South-facing rear garden with pedestrian rear access
- Solid brick walls; no confirmed insulation — likely upgrade needed
- Small plot and modest external space
- Area recorded as very high crime level
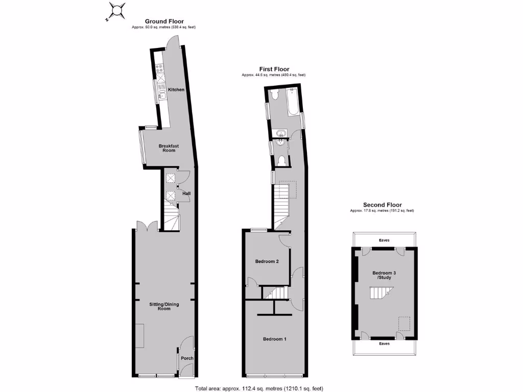
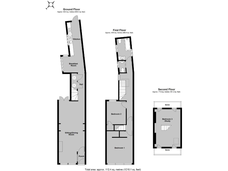
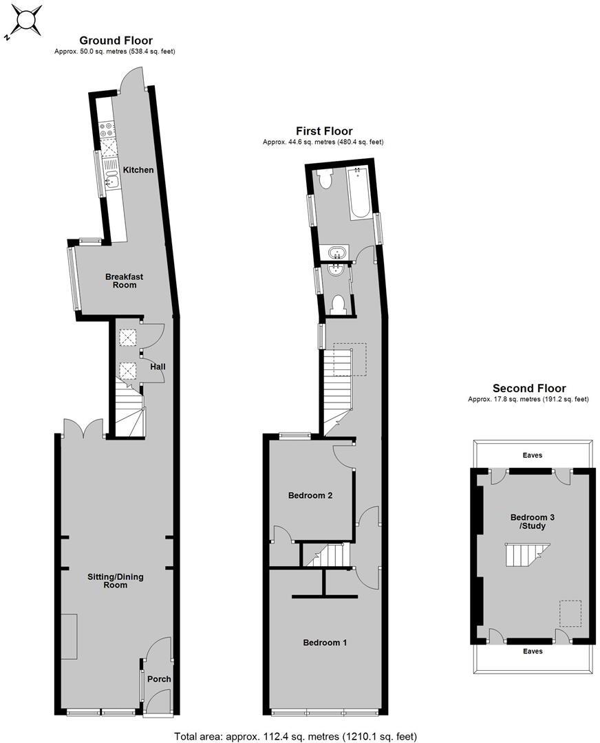
Set directly on Marine Terrace, this Victorian terraced cottage offers genuine beachfront living and panoramic sea views from the upper floors. Beautifully presented interiors span three floors with a large open-plan sitting/dining room, a kitchen/breakfast room and a third-floor bedroom/study that captures far-reaching coastal vistas. The property is chain free and freehold, ready for a buyer to move in and enjoy the town and seafront immediately.
Practical features include two double bedrooms, a cloakroom and a single bathroom, plus a secluded south-facing rear garden with pedestrian access via a rear alley. The house is solid brick and double glazed, heated by a mains-gas boiler and radiators, with fast broadband available — all useful comforts for everyday coastal living.
Buyers should note material drawbacks plainly: the walls are original solid brick with no confirmed insulation (likely to need upgrading for thermal efficiency), the plot is small and external space limited to the modest rear garden, and accommodation is spread over three floors with multiple staircases. Crime levels in the area are recorded as very high, which may concern some purchasers. There is only one bathroom for the house.
Overall, the cottage will suit someone who prioritises location above all else — downsizers, sea-change buyers or those seeking a lock-up-and-leave coastal home within easy walking distance of Whitstable’s shops, harbour and amenities. The property also provides refurbishment potential for anyone wanting to improve insulation or reconfigure layouts to suit modern living.
3 bedroom terraced house for sale in Island Wall, Whitstable, CT5 — £495,000 • 3 bed • 2 bath • 1370 ft²
3 bedroom terraced house for sale in Island Wall, Whitstable, CT5 — £699,950 • 3 bed • 2 bath • 1202 ft²
2 bedroom end of terrace house for sale in Sea Wall, Whitstable, CT5 — £675,000 • 2 bed • 2 bath • 998 ft²
2 bedroom terraced house for sale in Island Wall, Whitstable, CT5 — £525,000 • 2 bed • 1 bath • 872 ft²
4 bedroom semi-detached house for sale in Marine Gap, Whitstable, CT5 — £775,000 • 4 bed • 1 bath
4 bedroom semi-detached house for sale in Island Wall, Whitstable, CT5 — £795,000 • 4 bed • 2 bath • 1636 ft²














































































