**Standout Features:**
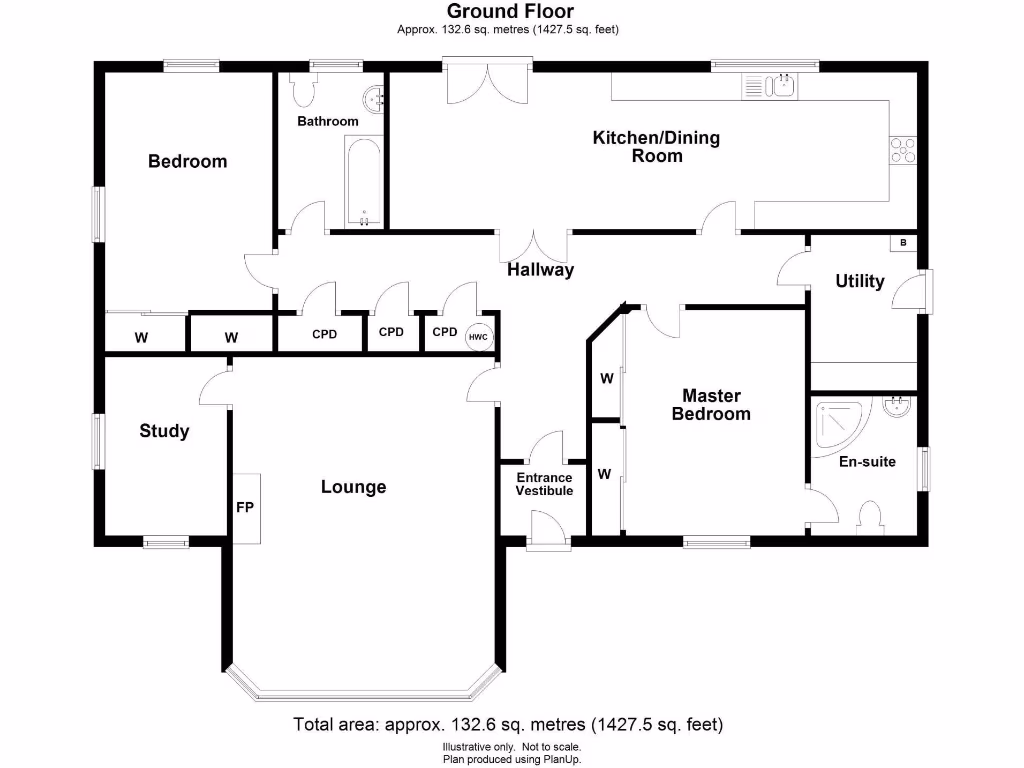
- Two double bedrooms (one en-suite)
- Oil-fired central heating and UPVC double glazing
- Expansive views of Loch Harport and the Cuillins
- Spacious, walk-in condition with contemporary finishes
- Large, well-maintained garden grounds and a detached garage
- Chain-free sale with ample parking available
- Excellent mobile signal, but slow broadband speeds
**Summary:**
Discover “Durkar,” a charming detached bungalow nestled in a tranquil rural setting with breathtaking views over Loch Harport and the Cuillins. This modern home features two generous double bedrooms, including an en-suite master, alongside a bright lounge, study, kitchen/dining area, utility room, and a well-appointed bathroom. With a welcoming entrance vestibule and quality fittings throughout, this property is presented in pristine, walk-in condition, catering ideally to families or those seeking a peaceful retreat.
Surrounded by neatly landscaped gardens providing both beauty and privacy, the bungalow benefits from a detached garage and ample driveway space for multiple vehicles. Enjoy the serenity of rural life while being only a stone's throw from pristine natural scenery. Perfect for first-time buyers or investors keen on a scenic getaway, Durkar presents an exclusive opportunity in an area ripe for future exploration and potential renovations. Don't miss your chance to own this elevated slice of paradise; arrange a viewing today!
2 bedroom detached house for sale in 18 Roag, Dunvegan, Isle of Skye, IV55 8ZA, IV55 — £215,000 • 2 bed • 1 bath • 1066 ft²
3 bedroom property for sale in Creag Nam Meann, 2 Tianavaig Place, Portree, IV51 — £265,000 • 3 bed • 2 bath
3 bedroom detached house for sale in 14 Steele Croft Road, Carbost, Isle of Skye, IV47 8SY, IV47 — £325,000 • 3 bed • 2 bath • 1281 ft²
5 bedroom detached house for sale in 2 Camustianavaig, Camustianavaig, Isle Of Skye, IV51 — £395,000 • 5 bed • 3 bath • 1929 ft²
4 bedroom detached house for sale in Milovaig, Hedgefield Road, Portree, IV51 — £660,000 • 4 bed • 4 bath • 1937 ft²
4 bedroom detached house for sale in 10b Fiscavaig, Isle Of Skye, IV47 — £550,000 • 4 bed • 4 bath • 2324 ft²


































































































