Chain‑free five‑bedroom detached home with double garage and private garden in a quiet cul‑de‑sac..
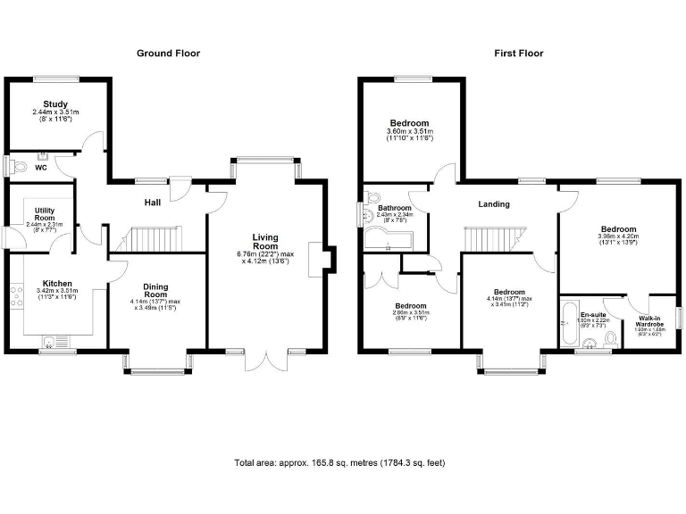
Chain free detached house in a private cul‑de‑sac of three homes|Four double bedrooms plus large study/5th bedroom flexible use|Principal bedroom with dressing room and en‑suite|Two reception rooms and separate dining room|Private rear garden and double garage with extra parking|EPC rating C; cavity walls assumed uninsulated — upgrade recommended|Only two bathrooms for five bedrooms; may need additional facilities|Council tax band relatively expensive
Set in a private cluster of just three homes, this detached five-bedroom house offers roomy family living with practical extras. The principal bedroom includes a dressing room and en‑suite, and a large study/ground-floor bedroom gives flexible accommodation for home working or guests. Two reception rooms plus a separate dining room and utility make everyday life and entertaining straightforward.
Outside, a decent-sized private rear garden and a double garage with additional driveway parking suit families with multiple vehicles and hobbies. The property is chain free and benefits from double glazing and an EPC rating of C, with fast broadband and low flood risk for peace of mind.
Buyers should note the house was built in the 1950s–60s and the cavity walls are recorded as having no added insulation (assumed). There are only two bathrooms for five bedrooms and council tax is relatively high; some modernisation or insulation upgrades may be desirable to improve efficiency and long‑term running costs.
Overall this is a comfortable, well‑proportioned family home in a quiet cul‑de‑sac close to good primary and secondary schools. It suits families seeking space, privacy and flexible rooms, and offers clear potential to update energy performance and internal finishes to personal taste.
4 bedroom detached house for sale in Rocks Close, East Malling, West Malling, Kent, ME19 — £600,000 • 4 bed • 2 bath • 1223 ft²
5 bedroom detached house for sale in Heath Road, Langley, Maidstone, Kent, ME17 — £700,000 • 5 bed • 3 bath • 2732 ft²
4 bedroom detached house for sale in Sephton Close, Aylesford, ME20 — £600,000 • 4 bed • 2 bath • 1335 ft²
4 bedroom detached house for sale in Setford Road, Chatham, ME5 — £375,000 • 4 bed • 2 bath • 1330 ft²
3 bedroom detached house for sale in Cranborne Avenue, Maidstone, Kent, ME15 — £425,000 • 3 bed • 1 bath
4 bedroom detached house for sale in Collier Street, Yalding, Maidstone, Kent, ME18 — £600,000 • 4 bed • 3 bath • 1468 ft²










































































































