Compact first-floor flat with balcony — ideal for first-time buyers or investors.
Chain free first-floor flat, walkable to Halesowen town centre
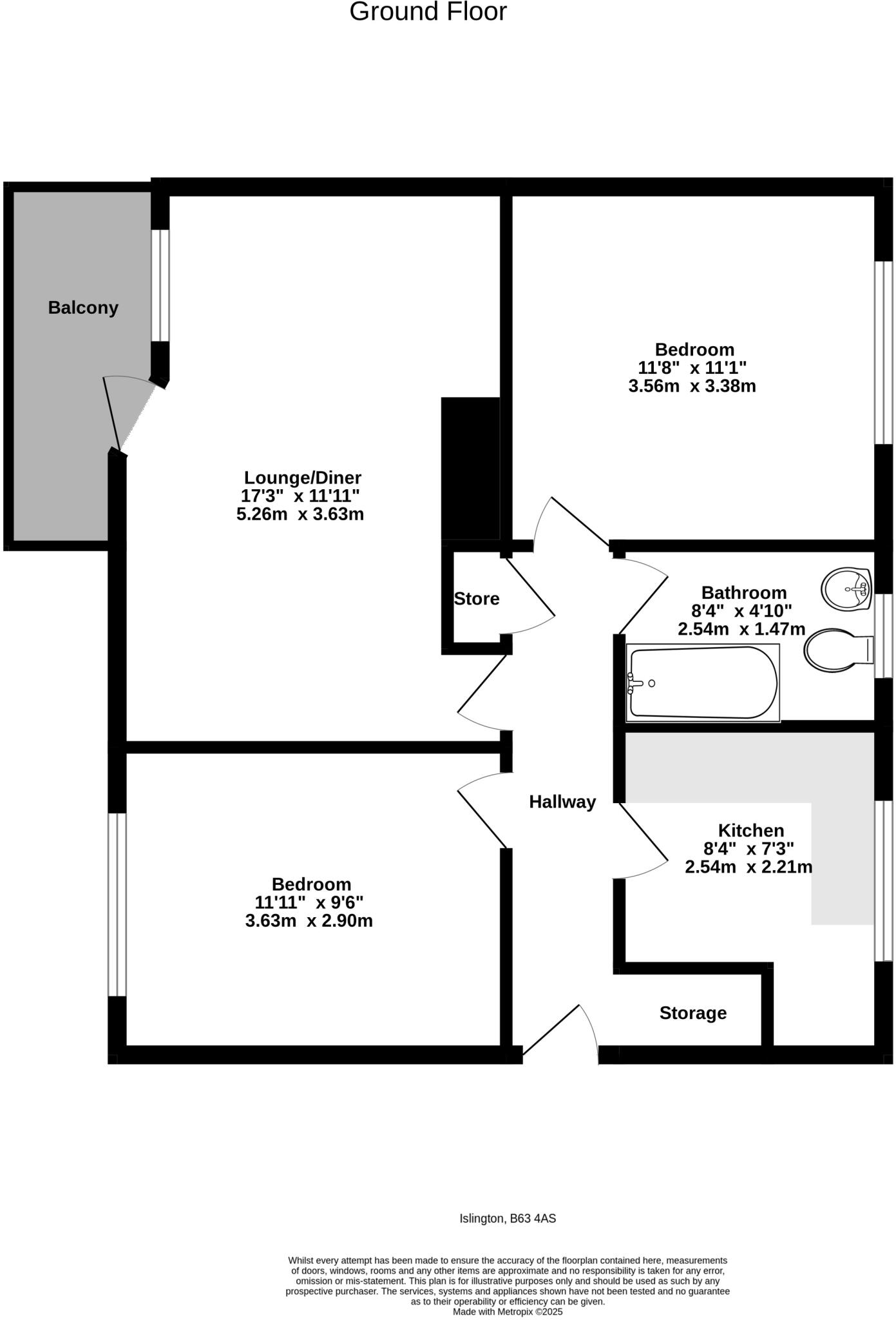
A compact two-bedroom first-floor flat close to Halesowen town centre, offered chain free and ready to move into. The living room opens onto a balcony; the fitted kitchen includes an oven and hob and the bathroom has a shower over the bath. Practical features include gas central heating, double glazing, communal parking, and a communal drying area.
The flat is modest in size (approximately 552 sq ft) with traditional layout and standard ceiling heights. The 93-year lease provides a reasonable remaining term for many buyers, but purchasers should note the service charge is about £1,250 per year (includes ground rent) and factor that into ongoing costs. The building shows typical mid-20th-century wear and will suit buyers happy with compact rooms and straightforward decoration rather than a large family home.
Location is a key strength: a short walk to shops, buses and local amenities, with good broadband and mobile signal. However, the surrounding area records higher crime levels and elevated deprivation indicators; buyers seeking a quieter, low-crime neighbourhood should consider this carefully.
This property will appeal to first-time buyers and investors looking for a central, low-entry purchase with rental potential. It offers simple, practical living and scope for modest cosmetic updates, but be clear about service charges, lease length and local area challenges when deciding to view.
2 bedroom flat for sale in Grange Crescent, Halesowen, B63 3ED, B63 — £140,000 • 2 bed • 1 bath • 700 ft²
2 bedroom flat for sale in Hill Street, HALESOWEN, West Midlands, B63 — £95,000 • 2 bed • 1 bath • 629 ft²
2 bedroom flat for sale in Wall Well Lane, Halesowen, B63 — £135,000 • 2 bed • 1 bath • 603 ft²
2 bedroom flat for sale in Hill Street, Halesowen, B63 — £95,000 • 2 bed • 1 bath • 571 ft²
2 bedroom flat for sale in Witton Bank,Narrow Lane,Halesowen,West Midlands, B62 — £140,000 • 2 bed • 1 bath • 737 ft²
2 bedroom apartment for sale in George Road, Halesowen, B63 — £130,000 • 2 bed • 1 bath • 689 ft²










































