Driveway, generous garden and strong transport links close to local shops.
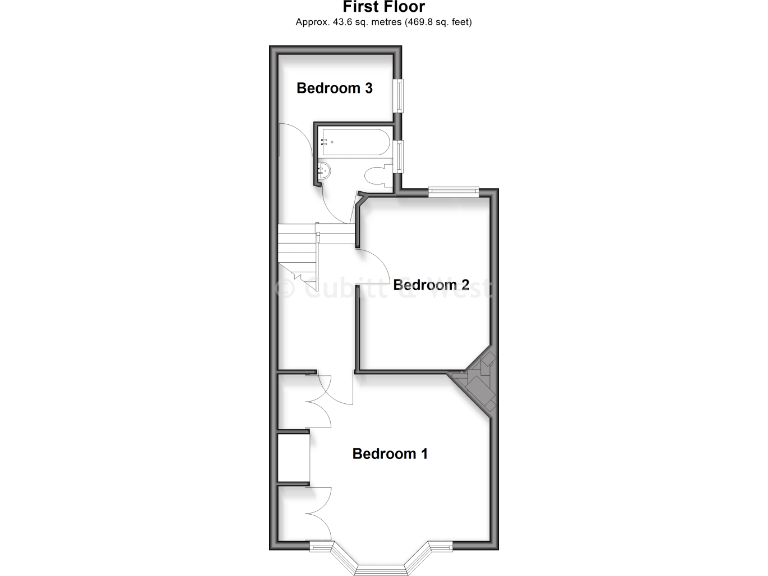
Chain-free three-bedroom terraced house, circa 727 sq ft
A compact three-bedroom terraced house in the heart of Sutton, offered chain-free and ready for a buyer to renovate and add value. The property sits moments from Sutton High Street, local shops and frequent transport links, with Sutton stations and multiple bus routes within walking distance.
The house has practical features: a driveway for two cars, a generous rear garden and a traditional 1930s bay-fronted façade. Internally the accommodation totals about 727 sq ft across two floors, with a lounge, dining area, kitchen, three bedrooms and a single bathroom. Bedroom three is notably small and some rooms will need updating.
This is a clear project for buyers who want to improve and extend (subject to planning permission) — suitable for first-time buyers prepared to DIY, investors seeking refurbishment opportunity, or families wanting to customise a home near good schools. Material drawbacks include a need for renovation throughout, a small overall footprint and no confirmed planning consent for extensions.
Viewings are by appointment; offers are invited above £420,000. Prospective buyers should verify all measurements, tenure and any planning requirements independently.
3 bedroom terraced house for sale in Rectory Road, Sutton, Surrey, SM1 — £475,000 • 3 bed • 1 bath • 786 ft²
3 bedroom terraced house for sale in William Road, Sutton, SM1 — £530,000 • 3 bed • 2 bath • 907 ft²
3 bedroom terraced house for sale in Rectory Road, Sutton, Surrey, SM1 — £314,000 • 3 bed • 1 bath • 786 ft²
3 bedroom semi-detached house for sale in Vale Road, Sutton, Surrey, SM1 — £550,000 • 3 bed • 1 bath • 948 ft²
3 bedroom semi-detached house for sale in Litchfield Road, Sutton, SM1 — £625,000 • 3 bed • 1 bath • 1361 ft²
3 bedroom semi-detached house for sale in Vale Road, Sutton, Surrey, SM1 — £363,500 • 3 bed • 1 bath • 948 ft²


































































