Three-bed Victorian terrace in cul-de-sac — renovation opportunity with enclosed garden.
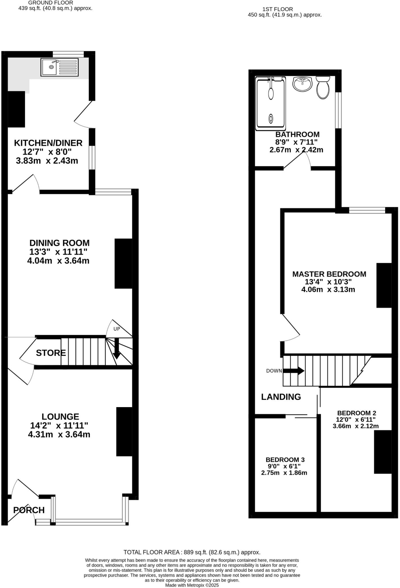
Three bedrooms and two reception rooms in traditional layout
Fully enclosed rear garden with large shed and paved patio
Requires full modernisation; dated fixtures and decor throughout
No garage; outside toilet and brick garden store only
Located on quiet cul-de-sac near Good-rated primary schools
Freehold tenure and very cheap council tax for low running costs
Slow local broadband; mobile signal average
EPC rating D — energy improvements likely to add value
This mid-terraced Victorian home on Stanleigh Road offers three bedrooms and two reception rooms across an average-sized footprint (approx. 889 sq ft). Located on a quiet cul-de-sac in Overseal, the property has a traditional red-brick facade and a fully enclosed rear garden with paved patio, lawn area and large garden shed — practical outdoor space for families or first-time buyers.
The house is sold freehold but requires modernisation throughout: dated interior decor, an upstairs bathroom in original condition, and some mid-20th-century fixtures. Heating, wiring and finishes may need updating to meet contemporary standards. Broadband speeds are slow locally, and there is no garage — an outside toilet and brick garden store are present instead.
For a buyer comfortable with renovation, this property offers clear value: an EPC D rating, affordable council tax, and a location close to Good-rated primary schools and village amenities. The layout is traditional and straightforward, making it suitable for a sympathetic refurbishment, while the cul-de-sac setting and enclosed garden provide family-friendly privacy.
Buyers seeking a move-in-ready home should note the required works and modest local broadband. Investors or first-time purchasers aiming to add value will find potential here, particularly if planning cosmetic and systems upgrades.
3 bedroom terraced house for sale in Woodville Road, Overseal, Swadlincote, Derbyshire, DE12 — £185,000 • 3 bed • 1 bath • 904 ft²
3 bedroom end of terrace house for sale in Main Street, Overseal, DE12 — £225,000 • 3 bed • 1 bath • 749 ft²
3 bedroom terraced house for sale in Oversetts Court, Newhall, DE11 0SH, DE11 — £165,000 • 3 bed • 1 bath • 786 ft²
3 bedroom semi-detached house for sale in Woodville Road, Overseal, Swadlincote, DE12 — £245,000 • 3 bed • 1 bath • 1389 ft²
3 bedroom semi-detached house for sale in Woodville Road, Overseal, DE12 6LX, DE12 — £170,000 • 3 bed • 1 bath • 733 ft²
2 bedroom semi-detached house for sale in Woodville Road, Overseal, Swadlincote, Derbyshire, DE12 — £210,000 • 2 bed • 1 bath • 870 ft²






















































