**Standout Features:**
- Spacious three-bedroom upper conversion in sought-after Pollokshields.
- Beautiful Victorian architecture with sandstone exterior and high ceilings.
- Generous private garden with a sun house and storage sheds.
- Modern, dining-sized kitchen with peaceful garden views.
- Excellent transport links and access to local amenities.
**Potential Downsides:**
- Council tax is expensive in this area.
- Property located in a highly deprived area.
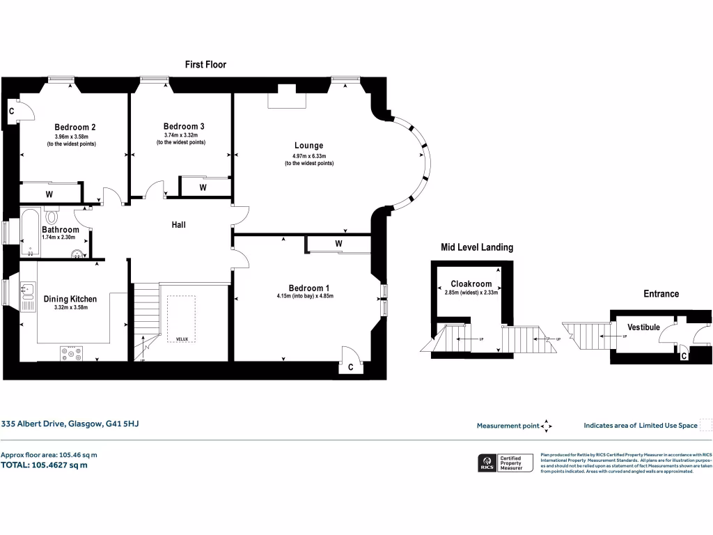
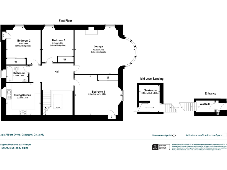
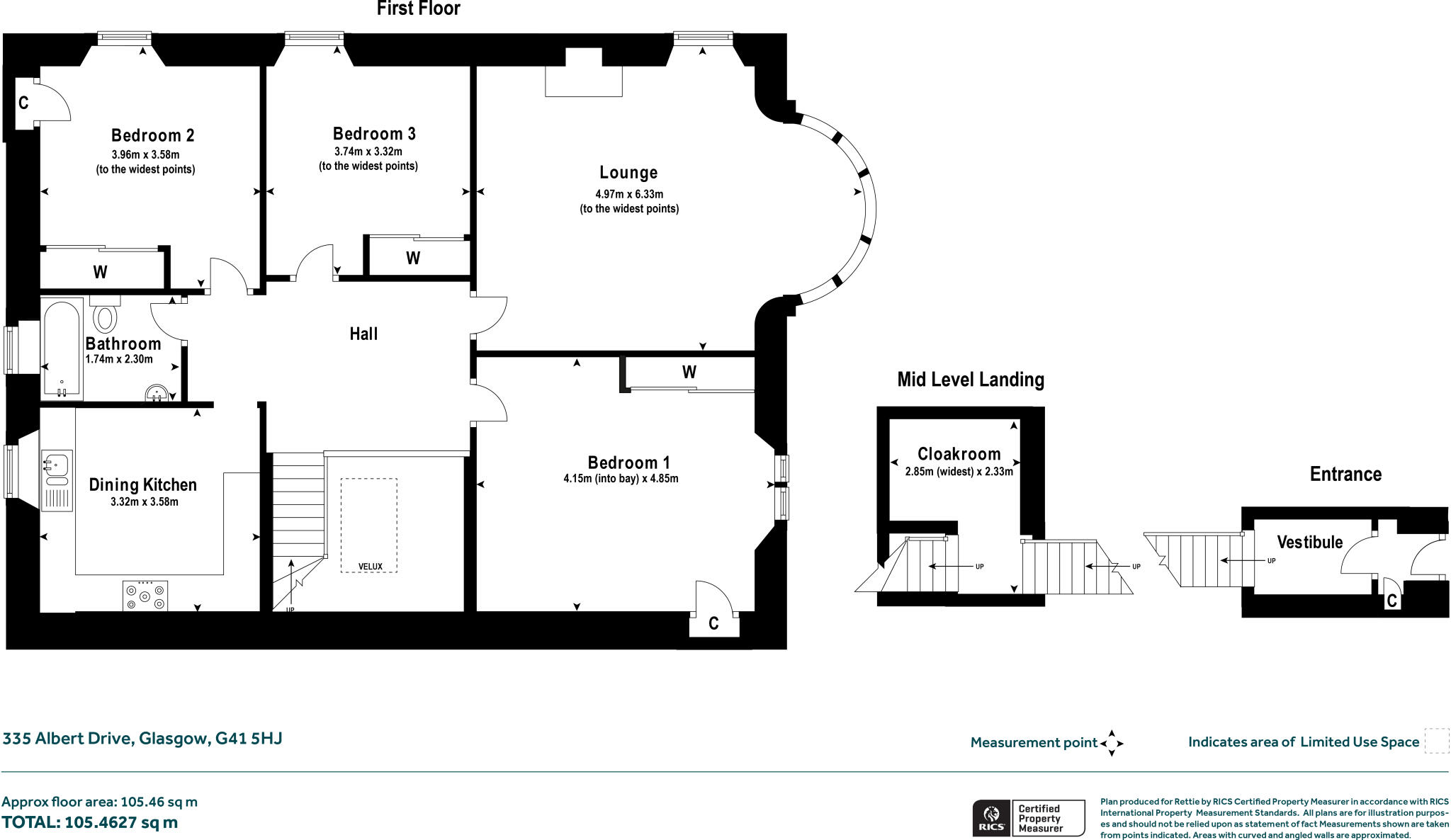
Discover the charm of this stunning three-bedroom upper conversion apartment located in the highly desirable Pollokshields neighborhood. This spacious home offers an inviting entrance vestibule leading to a bright reception hallway, complete with a traditional Victorian skylight. Highlighted by large dual-aspect windows, the formal sitting room boasts picturesque views along Albert Drive, while the modern kitchen is perfectly designed for entertaining.
The property features generous accommodation with a large principal bedroom and two additional bedrooms, all benefiting from lovely natural light. Enjoy the expansive private garden, ideal for relaxation and outdoor activities. Pollokshields is celebrated for its vibrant amenities, excellent transport links to Glasgow City Centre, and nearby green spaces like Maxwell Park and Pollok Country Park.
With gas central heating and traditional details such as cornicing and sash windows, this property presents a comfortable and attractive living space. However, potential buyers should note the high council tax and the fact that the surrounding area faces economic challenges. Early viewings are encouraged for this exclusive property; opportunities like this don’t last long!
3 bedroom apartment for sale in Albert Drive, Pollokshields, Glasgow, G41 — £380,000 • 3 bed • 2 bath • 1723 ft²
3 bedroom apartment for sale in Leslie Road, Pollokshields, Glasgow, G41 — £399,000 • 3 bed • 2 bath • 1685 ft²
4 bedroom semi-detached house for sale in Dalziel Drive, Pollokshields, Glasgow, G41 — £725,000 • 4 bed • 2 bath • 2575 ft²
3 bedroom apartment for sale in Kenmure Street, Pollokshields, Glasgow, G41 — £275,000 • 3 bed • 1 bath • 1243 ft²
3 bedroom apartment for sale in St. Andrews Drive, Pollokshields, Glasgow, G41 — £350,000 • 3 bed • 2 bath • 1274 ft²
4 bedroom flat for sale in 2/2, 277 Albert Drive, Pollokshields, G41 2RN, G41 — £325,000 • 4 bed • 1 bath • 1959 ft²


























































































































