Spacious two-bed ground-floor flat in Yorkhill — character and modern comforts close to amenities.
Ground-floor sandstone tenement with period character
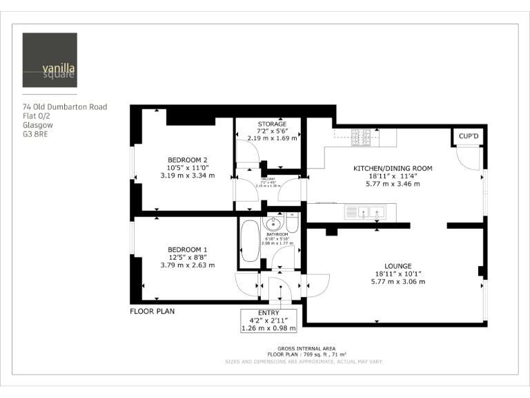
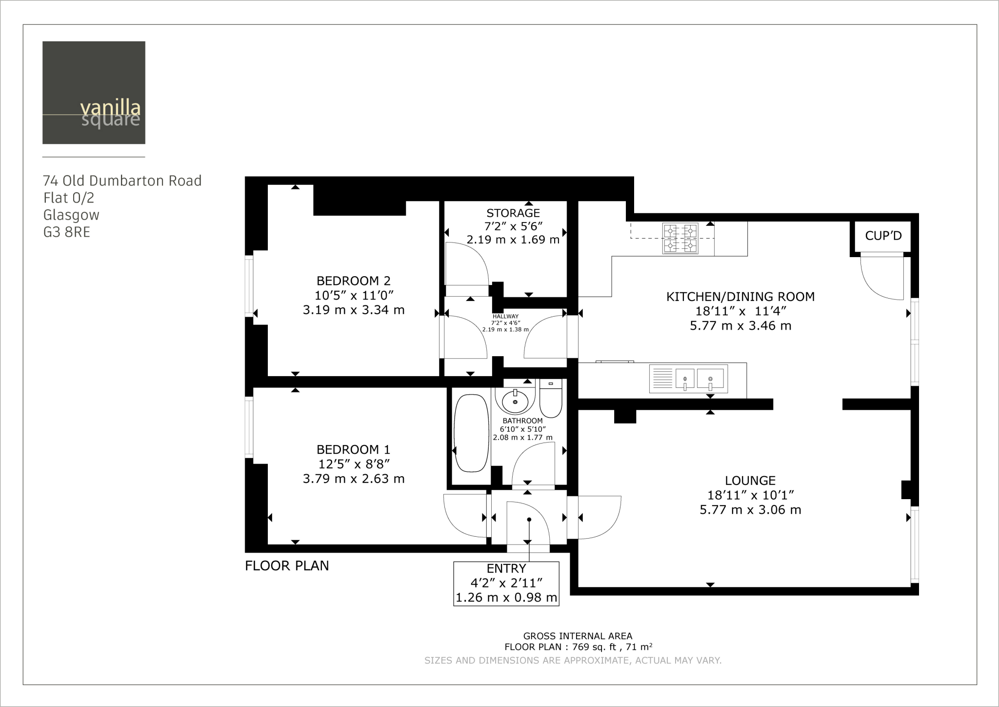
A well-proportioned two-bedroom ground-floor flat set within a handsome sandstone tenement in Yorkhill, offering period character paired with modern finishes. The generous lounge opens to a dining kitchen with quality units and ample workspace, creating a practical social hub for cooking and entertaining. Both bedrooms are double-sized and sit to the rear, providing quiet sleeping or study space away from the street. The home is presented with wood flooring throughout, double glazing, gas central heating and a secure entry system; its Energy Efficiency Rating of C keeps running costs reasonable. This freehold property extends to approximately 732 sq ft and suits first-time buyers, students sharing, or commuter professionals looking for West End living without a premium price. Local amenities are abundant — cafés, restaurants, cultural attractions and convenient transport links are all within easy walking distance. Be aware the immediate area is classified as very deprived and has a strong student/commuter profile, which can mean increased daytime and evening activity. Parking is on-street by Glasgow City Council permit only. Overall this flat offers a rare combination of character, size and West End location for buyers wanting a ready-to-live-in home with scope to personalise over time.
2 bedroom flat for sale in Regent Moray Street, Yorkhill, Glasgow, G3 — £200,000 • 2 bed • 1 bath • 632 ft²
2 bedroom flat for sale in Regent Moray Street, Yorkhill, G3 — £179,995 • 2 bed • 1 bath • 710 ft²
2 bedroom apartment for sale in Yorkhill Street, Yorkhill, Glasgow, G3 — £159,000 • 2 bed • 1 bath • 538 ft²
1 bedroom flat for sale in 10 Carfrae Street, Yorkhill, G3 — £105,000 • 1 bed • 1 bath • 484 ft²
1 bedroom flat for sale in Nairn Street, Flat 0/2, Yorkhill, Glasgow, G3 8SE, G3 — £129,000 • 1 bed • 1 bath • 517 ft²
2 bedroom flat for sale in Carfrae Street, Flat 3/1, Yorkhill, Glasgow, G3 8SS, G3 — £189,000 • 2 bed • 2 bath • 743 ft²


















































































