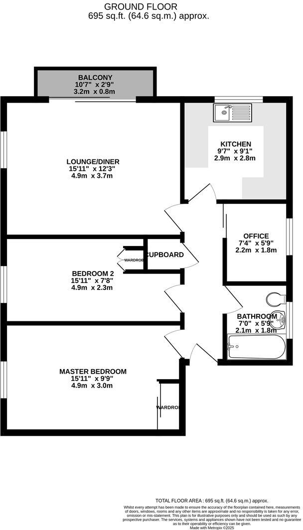
**Standout Features:**
- Newly renovated two double bedroom apartment
- Distant sea views from private balcony
- Additional office room for remote work
- Allocated parking and garage included
- Beautifully maintained communal gardens
- Chain-free sale for a quick move-in
**Summary:**
Nestled in the serene Bincleaves Road, this modern two-bedroom first-floor apartment is a gem for both families and first-time buyers. Newly renovated, it boasts a bright lounge/diner that flows seamlessly to a private balcony with stunning distant sea views—perfect for relaxing evenings. The kitchen is functional with ample storage, and the two generously sized bedrooms come with built-in wardrobes, while an additional office space caters to today's work-from-home needs.
With no forward chain, this well-maintained property also offers conveniences like allocated parking and a garage within a secure, landscaped community environment. Enjoy peaceful surroundings with access to coastal paths, local amenities, and Weymouth's celebrated beaches just a leisurely stroll away. Don't miss this opportunity to secure a charming seaside retreat with potential for future enhancements—this property is not expected to last long!
2 bedroom apartment for sale in Weymouth, Dorset, DT4 — £315,000 • 2 bed • 1 bath • 893 ft²
2 bedroom apartment for sale in Belle Vue Road, Rodwell, DT4 — £210,000 • 2 bed • 1 bath • 765 ft²
2 bedroom apartment for sale in Belle Vue Road, Rodwell, DT4 — £210,000 • 2 bed • 1 bath • 689 ft²
2 bedroom apartment for sale in Belle Vue Court, Belle Vue Road, Weymouth, Dorset, DT4 — £215,000 • 2 bed • 1 bath • 700 ft²
2 bedroom apartment for sale in Bincleaves Road, Weymouth, DT4 — £345,000 • 2 bed • 1 bath • 725 ft²
2 bedroom apartment for sale in Bincleaves Road, Weymouth, DT4 — £270,000 • 2 bed • 1 bath • 682 ft²


















































































