Large central two-bedroom with long lease and great commuter links.
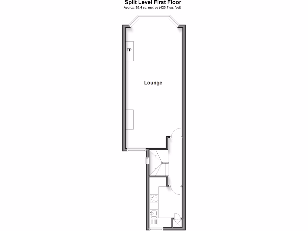
27ft bright lounge with church views
Set on Dorking’s bustling West Street, this large two-bedroom maisonette delivers generous space and town-centre convenience. The standout 27ft lounge/diner is bright and versatile, with attractive views over St Martin’s Church. A communal courtyard adds a quiet outside spot, while on-street parking is available via residents’ permits.
Practical details suit first-time buyers and commuters: a very long lease (993 years), affordable council tax, and below‑average service charge (£512). Broadband and mobile signal are both strong, and local train and bus links make commuting straightforward. Nearby schools include St Joseph’s and The Ashcombe, both rated Good.
Be clear about the compromises: the property is heated by electric room heaters rather than a mains central heating system, and there is a single bathroom. The location is lively but comes with a recorded high local crime level, which may be a consideration for some buyers. Overall it’s a characterful, well‑sized home for those prioritising central location and long‑term lease security, with scope for cosmetic updating to add value.
2 bedroom flat for sale in Church Street, DORKING, RH4 — £315,000 • 2 bed • 2 bath • 706 ft²
2 bedroom maisonette for sale in St. Martin's Mews, Dorking, Surrey, RH4 — £495,000 • 2 bed • 2 bath • 1131 ft²
2 bedroom apartment for sale in High Street, Dorking, Surrey, RH4 — £300,000 • 2 bed • 1 bath • 636 ft²
1 bedroom maisonette for sale in Dene Street, Dorking, Surrey, RH4 — £275,000 • 1 bed • 1 bath • 528 ft²
3 bedroom apartment for sale in Church Street, Dorking, RH4 — £525,000 • 3 bed • 2 bath • 1215 ft²
1 bedroom apartment for sale in St. Martin's Walk, Dorking, Surrey, RH4 — £250,000 • 1 bed • 1 bath • 373 ft²










































































