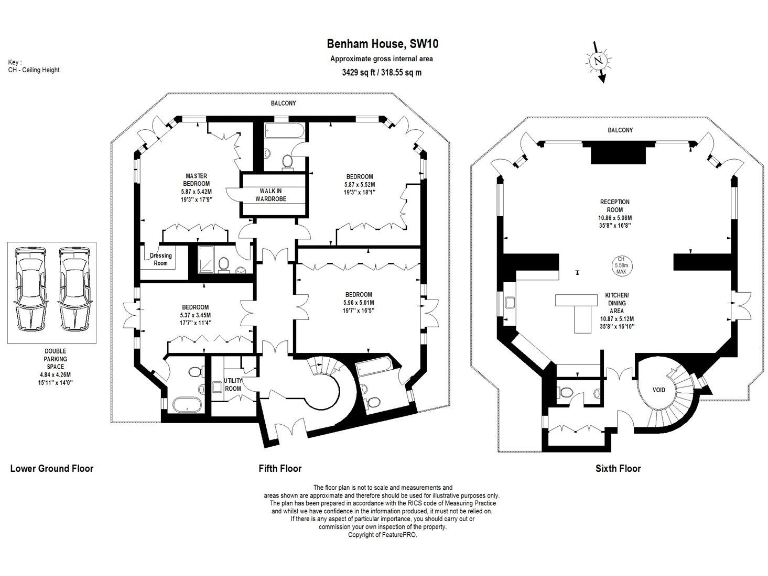
Spacious gated penthouse with premium leisure facilities and two parking spaces.
Approximately 3,429 sq ft of living space, exceptionally large rooms
Set across the top two floors of a secure gated development, this 4-bedroom penthouse offers rare lateral living and dramatic vaulted ceilings. At approximately 3,429 sq ft it delivers exceptionally large principal rooms, two wrap-around balconies and rooftop views from nearly every aspect.
The apartment is presented in excellent condition with a modern open-plan kitchen, island, abundant natural light and integrated air-conditioning. Four double bedrooms each have built-in storage and en suite bathrooms; the principal suite includes his-and-hers walk-in wardrobes. Two allocated underground parking spaces and lift access add everyday convenience.
Residents benefit from 24-hour security, concierge, large communal gardens across 7.5 acres and leisure facilities including a pool, gym, sauna, steam room and tennis court. Local schools rated outstanding sit close by and the property is well connected to Fulham Road, King’s Road and public transport links.
Important practical points: the apartment is leasehold (long lease remaining, c. 974 years) with an annual ground rent of £350 and very expensive council tax banding. Main heating and hot water are electric (underfloor heating) and service/management charges apply for communal maintenance and facilities.
3 bedroom flat for sale in Coleridge Gardens, London, SW10 — £2,500,000 • 3 bed • 3 bath • 1508 ft²
4 bedroom penthouse for sale in Royal Hospital Road, Chelsea, London, SW3 — £3,350,000 • 4 bed • 3 bath • 2035 ft²
3 bedroom flat for sale in Hudson House, Hortensia Road, London, SW10 — £3,250,000 • 3 bed • 2 bath • 1346 ft²
1 bedroom flat for sale in Coleridge Gardens, London, SW10 — £540,000 • 1 bed • 1 bath • 475 ft²
2 bedroom apartment for sale in Coleridge Gardens, Kings Chelsea, SW10 — £1,350,000 • 2 bed • 2 bath • 939 ft²
3 bedroom penthouse for sale in Culford Gardens, London, SW3 — £4,500,000 • 3 bed • 3 bath • 1588 ft²






















































































