KT3 4LB - 5 bedroom detached house for sale in Linkside, New Malden,…

View on Property Piper

5 bedroom detached house for sale in Linkside, New Malden, KT3

Summary - 30 LINKSIDE NEW MALDEN KT3 4LB

5 bed 3 bath Detached

Large detached house with annexe and west-facing secluded garden, ideal for families.
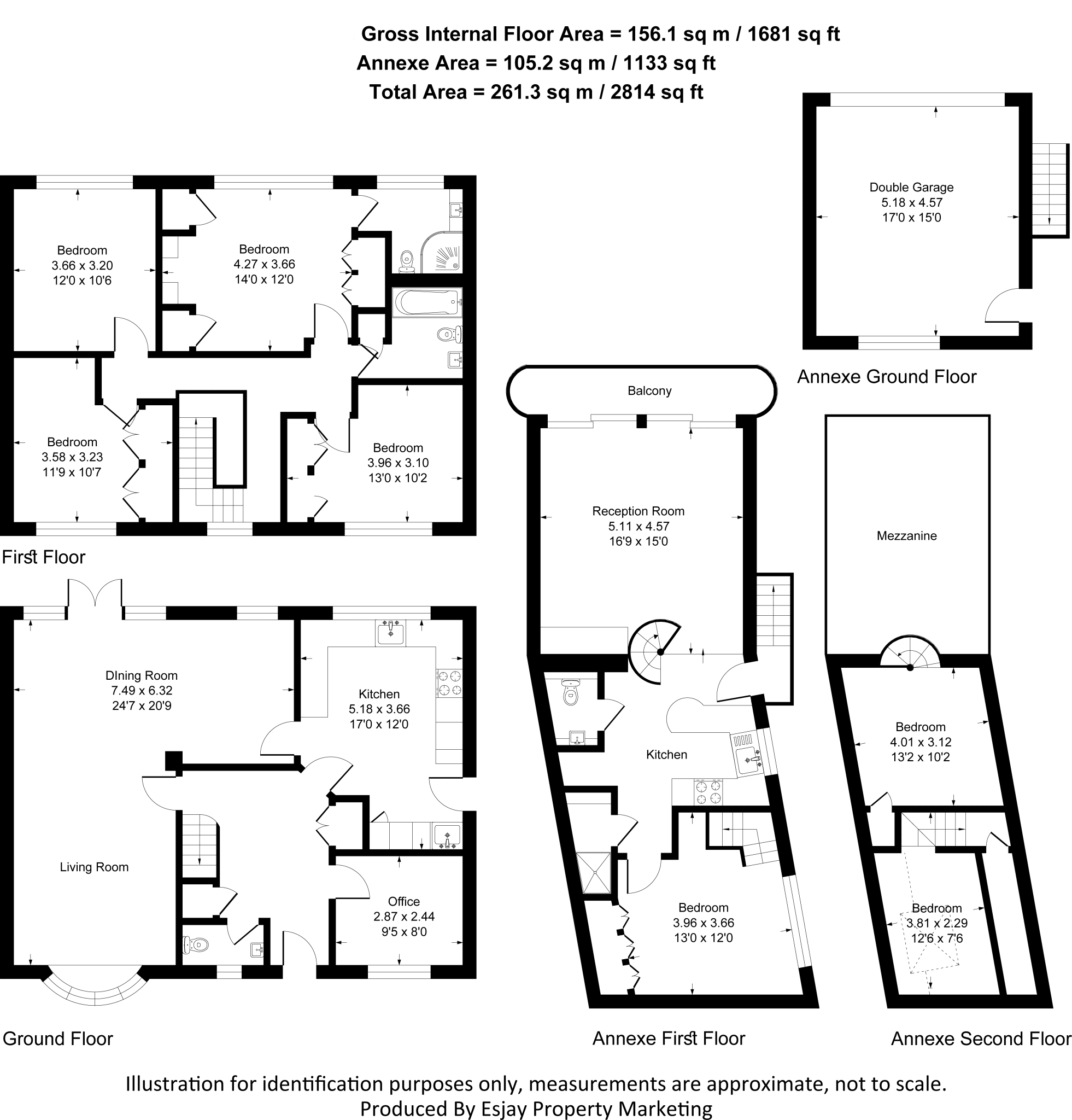
Detached five-bedroom family house, approx. 2,814 sq ft
Set in a quiet cul-de-sac in the sought-after Christ Church area of New Malden, this substantial detached family house offers flexible space across a generous footprint. The main home features a large open-plan living/dining room with hardwood floors and abundant natural light, a smart modern fitted kitchen and ground-floor WC — comfortable, contemporary living for family life.

A particular strength is the detached double garage with a self-contained annexe above, providing genuine multi-generational options or clear rental/income potential while keeping the main house private. The almost completely secluded west-facing garden with a covered BBQ area is well suited to family entertaining and evening sun.

Practical details are favourable: off-street parking for several cars, double glazing installed post-2002, mains gas central heating with radiators, low local crime and fast broadband. Buyers should note this is a freehold property with a substantial overall floor area (approx. 2,814 sq ft) and that council tax is described as quite expensive, which affects ongoing running costs.

The house presents in good decorative order and will suit families who value flexible reception space, separate annexe accommodation, and a private garden. There is also scope for personalisation or updating if a purchaser wants to tailor finishes or maximise rental use of the annexe.

Property Details

Brochure Descriptions

Image Descriptions

Floorplan Description

Rooms

Textual Property Features

Target Audience

AI Tags

Detected Visual Features

EPC Details

Nearby Schools

Nearest Bars And Restaurants

,,,,}

Nearest General Shops

,,}

Nearest Grocery shops

,,}

Nearest Supermarkets

,,}

Nearest Religious buildings

,,}

Nearest Medical buildings

,,,}

Nearest Airports

,,}

Nearest Leisure Facilities

,,,,}

Nearest Tourist attractions

,,}

Nearest Train stations

,,,,}

Nearest Bus stations and stops

,,,,}

Nearest Hotels

,,}

Tags

Local Market Stats

AirBnB Data

Similar Properties

Meta

High Res Images

Compatible Images

Low res Images

Thumbnails

Raw Images

High Res Floorplan Images

Compatible Floorplan Images

Low res Floorplan Images

FloorplanImages Thumbnail

Raw Floorplan Images