Affordable three-bed with garden and refurbishment potential near schools and transport.
Chain free sale for a smooth purchase
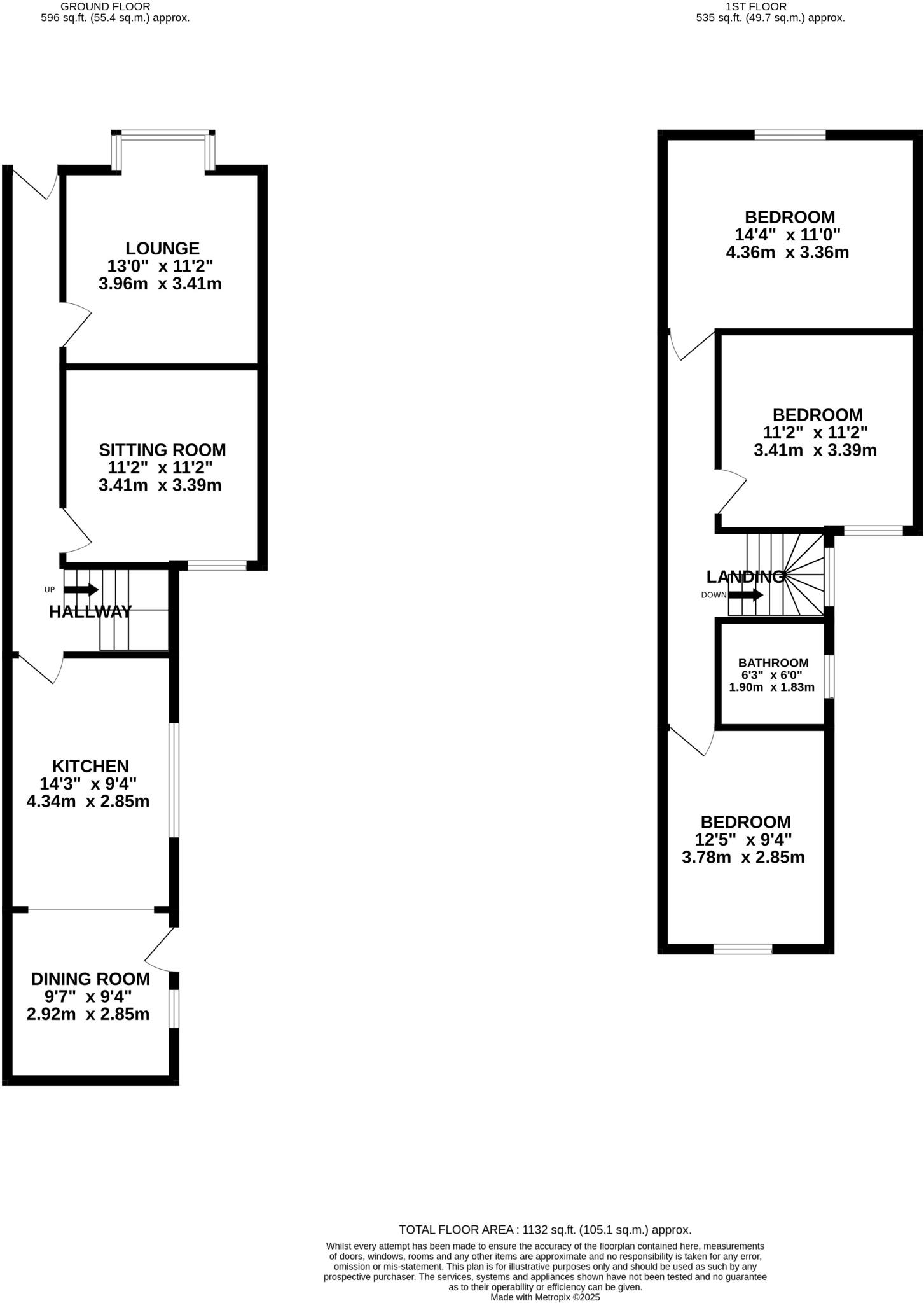
This bay-fronted mid-terrace offers three bedrooms, two reception rooms and a private rear garden — a straightforward purchase for first-time buyers. Offered chain free at a competitive price, the layout suits families or sharers and gives immediate living space with scope to personalise.
The house retains period character including a bay window, high ceilings and a corner fireplace. Gas central heating and double glazing are present (glazing install date unknown). The rear garden is private and low-maintenance with clear potential for landscaping or a seating area.
Buyers should note the property sits in a very deprived neighbourhood with higher-than-average crime levels. The building is solid-brick (as built) and likely has no wall insulation; cosmetic updating and some refurbishment are expected to modernise heating efficiency and internal finishes. On-street parking only and a small plot reflect the typical constraints of older terraces.
Practical positives include fast broadband, nearby schools and transport links, and a very low council tax band. For a first-time buyer or investor prepared to carry out modest improvements, this chain-free home in DN32 offers affordable entry and clear scope to add value.
3 bedroom terraced house for sale in Farebrother Street, Grimsby, DN32 — £130,000 • 3 bed • 1 bath • 1131 ft²
3 bedroom terraced house for sale in Gosport Road, Grimsby, DN34 — £95,000 • 3 bed • 1 bath • 747 ft²
3 bedroom terraced house for sale in Durban Road, Grimsby , DN32 — £97,950 • 3 bed • 1 bath • 891 ft²
3 bedroom semi-detached house for sale in Freeston Street, Cleethorpes, DN35 — £65,000 • 3 bed • 1 bath • 870 ft²
3 bedroom terraced house for sale in Fairmont Road, Grimsby , DN32 — £97,500 • 3 bed • 1 bath • 739 ft²
3 bedroom terraced house for sale in Hainton Avenue, Grimsby, DN32 — £75,000 • 3 bed • 1 bath • 1259 ft²






























































