Spacious two-bedroom flat with balcony and panoramic coastal outlook near shops and beach.
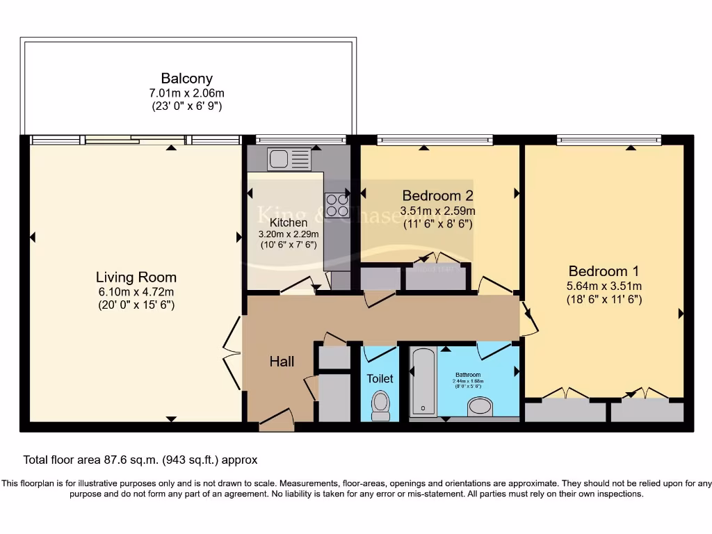
Sea-facing balcony with extensive coastal views
Two double bedrooms with fitted wardrobes
Long lease remaining — approx. 140 years
Generous internal size — approx. 943 sq ft
High annual service charge — about £4,600 (above average)
Very high local crime rate and area deprivation indicators
No private garden; communal high-rise living
Community heating scheme and older system-built walls (possible insulation limits)
Perched in a prominent seaside tower on St. Margaret’s Place, this two-double-bedroom flat offers expansive coastal views and a generous internal footprint (approx. 943 sq ft). The living room opens onto a good-sized balcony facing the sea, creating strong short‑term rental appeal and an attractive lifestyle proposition for buyers wanting Brighton town and beachfront access on foot.
The apartment is offered with a long lease (about 140 years) and benefits from fitted wardrobes, multiple storage cupboards and a separate modern kitchen. The building is a purpose-built high-rise from the late 1960s/early 1970s with double glazing already installed and a community heating scheme that serves the block.
There are notable running-cost and location considerations: the service charge is above average at around £4,600 pa and the neighbourhood records very high crime levels and local area deprivation indicators. Sea‑facing blocks also carry increased maintenance and repair exposure over time (balcony and façade maintenance likely). There is no private garden and the property is leasehold, so communal management and future service costs will influence long-term value.
This suite will suit buyers seeking a seafront pied-à-terre or an income-producing flat with clear tourist/letting potential, provided they account for the service charge, communal management arrangements and the area's safety profile. Viewing will confirm floor level, exact vista and the condition of communal areas before purchase.
2 bedroom apartment for sale in Sussex Heights, St Margarets Place, Central Brighton, BN1 — £450,000 • 2 bed • 1 bath • 1087 ft²
2 bedroom flat for sale in St. Margarets Place, Brighton, East Sussex, BN1 — £350,000 • 2 bed • 1 bath • 1118 ft²
2 bedroom ground floor flat for sale in Sussex Heights, Brighton, BN1 — £350,000 • 2 bed • 2 bath • 1115 ft²
2 bedroom apartment for sale in Chartwell Court, Russell Square, Brighton, BN1 — £350,000 • 2 bed • 2 bath • 870 ft²
1 bedroom semi-detached house for sale in Marine Parade, Brighton, BN2 — £340,000 • 1 bed • 1 bath • 568 ft²
2 bedroom apartment for sale in Russell Square, Brighton, BN1 — £600,000 • 2 bed • 2 bath • 970 ft²










































































