**Standout Features:**
- Spacious detached bungalow on a substantial 0.43-acre plot
- Three double bedrooms plus versatile study room
- Generous living areas with potential for modernization
- Large double garage/workshop and sweeping driveway
- Mature gardens with development potential (STPP)
- Chain-free sale, EPC rating TBC
**Potential Concerns:**
- Property is in need of maintenance and renovation
- Council tax band F, which is relatively expensive
- Area has above-average crime rates
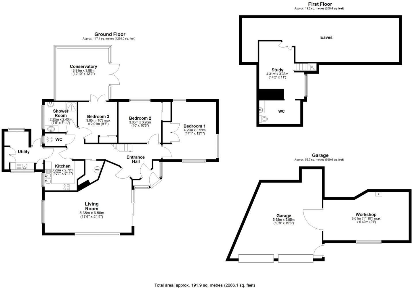
Experience ultimate potential and comfort in this spacious three-bedroom detached bungalow, set on an expansive 0.43-acre plot in Dinas Powys. The property offers a welcoming entrance, generous living room with open fireplace, and a fitted kitchen with integral appliances. Enjoy the convenience of a utility room and a versatile study that can cater to your work-from-home needs.
With well-sized bedrooms and a conservatory leading to a tranquil garden, this home is perfect for families or first-time buyers looking for space and future flexibility. The mature gardens provide an ideal canvas for outdoor enthusiasts or those dreaming of developing the property further (subject to planning permissions).
Located near local transport links and close to Penarth and Cardiff City Centre, this chain-free home offers an excellent opportunity to create your perfect living space. Don't miss this chance to acquire a property with so much potential—schedule a viewing today!
3 bedroom bungalow for sale in Melville Avenue, Old St. Mellons, Cardiff, CF3 — £425,000 • 3 bed • 2 bath • 2773 ft²
4 bedroom detached bungalow for sale in Ael-Y-Bryn, Radyr, Cardiff, CF15 — £450,000 • 4 bed • 2 bath • 1367 ft²
3 bedroom detached bungalow for sale in Bassett Road, Sully, CF64 — £375,000 • 3 bed • 1 bath • 951 ft²
4 bedroom detached bungalow for sale in 27 Pwll-Y-Myn Crescent , Peterston Super Ely, The Vale of Glamorgan CF5 6LR, CF5 — £595,000 • 4 bed • 3 bath • 2152 ft²
4 bedroom bungalow for sale in Cyncoed Rise, Cyncoed, Cardiff, CF23 — £650,000 • 4 bed • 2 bath • 2046 ft²
3 bedroom bungalow for sale in Rhydypenau Road, Cyncoed, Cardiff, CF23 — £479,950 • 3 bed • 2 bath • 1245 ft²


























































































































