Large private plot, countryside outlook and strong extension potential.
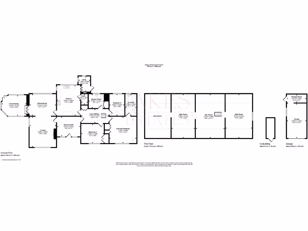
Detached three-bedroom bungalow on a circa one-third acre plot backing onto fields
Large private, well-established wraparound gardens with patio seating areas
Boarded attic with gable window — viable for conversion subject to consents
Detached garage, gated driveway and plentiful private parking
Requires renovation; budget for general refurbishment throughout
Stone walls likely uninsulated; thermal improvements needed
Oil-fired boiler and electric storage heaters; oil tank present
Freehold and offered with no onward chain
Set in the sought-after Eden Valley village of Great Salkeld, this detached three-bedroom bungalow sits on a very large, private plot backing onto open fields. The bungalow offers generous living rooms, a conservatory, detached garage and a gated driveway — ideal for families seeking space and countryside access just five miles from Penrith.
The house needs renovation but has genuine scope: boarded attic with gable window could be converted, and the footprint allows possible single-storey extension (subject to consents). Mature, well-established gardens and multiple outdoor seating areas provide immediate enjoyment while offering clear potential for landscaping or garden projects.
Practical considerations are straightforward: the property is freehold and chain-free, with oil-fired central heating, electric storage heaters and double glazing (installed before 2002). Construction is traditional stone with assumed no wall insulation, so buyers should budget for thermal upgrades and general refurbishment throughout.
This home will suit families (or buyers seeking a spacious countryside base) who value privacy, outdoor space and location over a turnkey finish. Viewing is essential to appreciate the plot size and the potential to create a bespoke home in a quiet village setting.
3 bedroom semi-detached house for sale in Great Salkeld, Penrith, CA11 — £365,000 • 3 bed • 2 bath • 1129 ft²
3 bedroom detached house for sale in Great Strickland, CA10 — £550,000 • 3 bed • 3 bath • 3327 ft²
4 bedroom semi-detached house for sale in Great Salkeld, Penrith, CA11 — £327,500 • 4 bed • 1 bath • 1206 ft²
8 bedroom detached house for sale in Great Strickland, Penrith, CA10 — £1,250,000 • 8 bed • 4 bath • 5761 ft²
3 bedroom bungalow for sale in Netherend Road, Penrith, CA11 — £425,000 • 3 bed • 3 bath • 1892 ft²
3 bedroom semi-detached house for sale in 1 The Croft, Great Strickland, Penrith, CA10 3DG, CA10 — £275,000 • 3 bed • 1 bath • 770 ft²






































































































































































