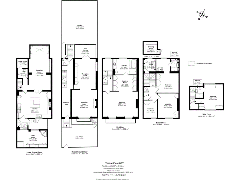
Spacious, renovated residence between South Kensington and Knightsbridge.
Six bedrooms including three en-suite bedrooms and further shower room
A substantial Victorian terraced house on Thurloe Place, recently comprehensively refurbished and offered in excellent condition. The layout suits a large family with generous reception rooms, a bespoke eat-in kitchen, and three en-suite bedrooms plus further shower room and guest WCs. The property benefits from a secluded front and rear garden and a terrace accessed from the drawing room for outdoor living in central London.
The house is finished to a high specification and includes a central air-conditioning system, high ceilings and period features restored throughout. At c.3,341 sq ft across multiple storeys, the accommodation balances formal entertaining spaces and everyday family rooms, making it versatile for different household needs. Freehold tenure and the SW7 postcode place it between South Kensington and Knightsbridge with world-class shopping, dining and museum access on the doorstep.
Buyers should note the plot is small and the house sits in an area with very high recorded crime levels — practical security measures may be required. While newly renovated, the scale of the property and its central location mean ongoing maintenance and higher running costs should be expected. Overall, this is a rare, large family home in a prime central London location for those seeking space, period character and contemporary comforts.
5 bedroom town house for sale in Freehold House - Thurloe Place, Knightsbridge, SW7 — £7,350,000 • 5 bed • 5 bath • 3309 ft²
4 bedroom terraced house for sale in Thurloe Street,
South Kensington, SW7 — £7,250,000 • 4 bed • 6 bath • 3199 ft²
6 bedroom terraced house for sale in Thurloe Square, South Kensington, SW7 — £5,850,000 • 6 bed • 4 bath • 3500 ft²
5 bedroom terraced house for sale in Thurloe Place,
South Kensington, SW7 — £7,350,000 • 5 bed • 4 bath • 3873 ft²
5 bedroom terraced house for sale in Thurloe Place, London, SW7 — £7,350,000 • 5 bed • 3 bath • 3631 ft²
6 bedroom town house for sale in Thurloe Square, London, SW7 — £5,850,000 • 6 bed • 4 bath • 3570 ft²






























































































































































