NR13 5BP - 4 bed handsome corner detached in Lawn Crescent, NR13 5BP

View on Property Piper

4 bedroom detached house for sale in Thorpe End, NR13

Summary - 1 LAWN CRESCENT THORPE END NORWICH NR13 5BP

4 bed 2 bath Detached

Spacious renovated 4-bedroom family home on a large corner plot near Norwich.
Handsomely renovated detached house over 2,000 sq ft
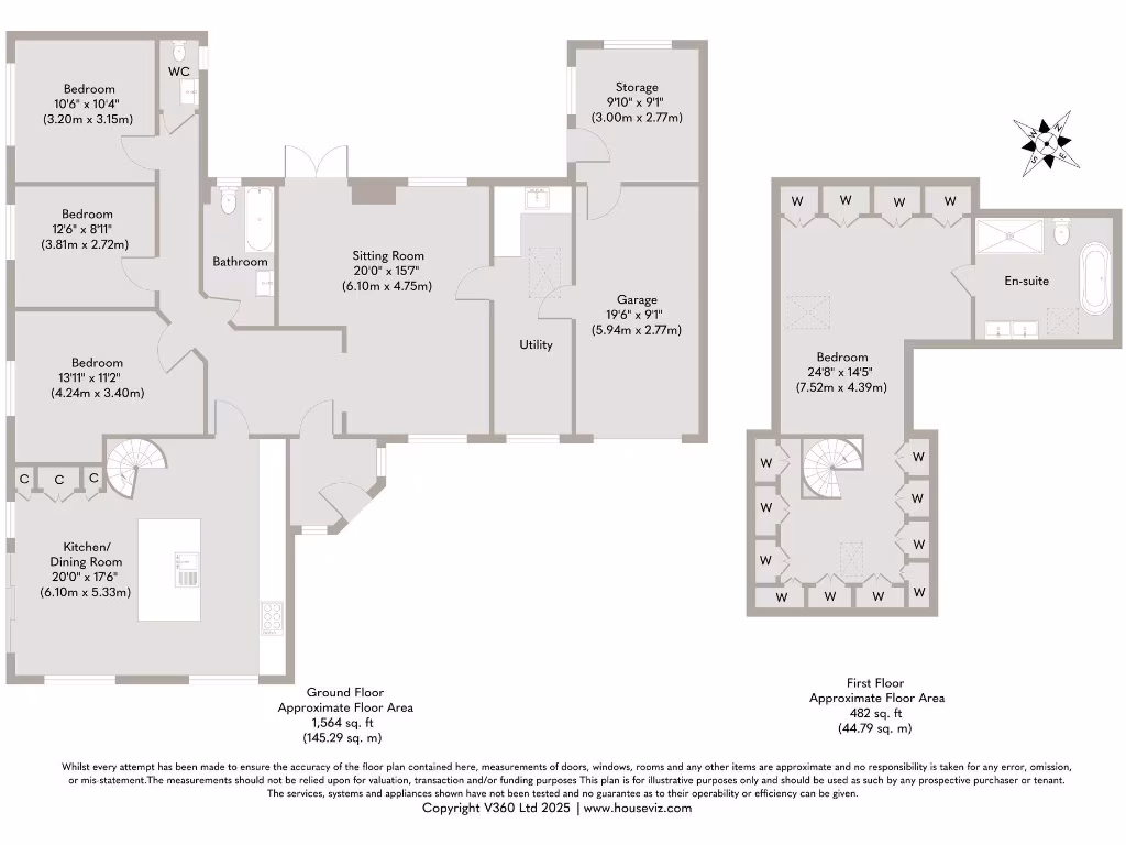
Set on a substantial corner plot in peaceful Thorpe End, this freshly renovated detached home offers more than 2,000 sq ft of flexible living space tailored to family life. The ground floor provides three double bedrooms alongside generous reception rooms, while the entire first floor is devoted to a principal suite with dressing room and large en-suite — a useful layout for multi-generational households or those needing home-working space.

The heart of the house is a contemporary kitchen/dining room with an island and bi-fold doors leading to a sun terrace, creating a strong indoor–outdoor flow for entertaining. A formal sitting room with a wood burner offers a cosy retreat. Practicality is covered by a utility room, integral garage and ample off-road parking.

Energy and maintenance are modernised: underfloor heating served by an air-source heat pump reduces reliance on fossil fuels, and the property benefits from double glazing and a recent full renovation that delivers a low-maintenance finish throughout. The EPC is rated C, reflecting a reasonable but not exceptional energy performance for the size and age of the house.

Buyers should note a few material points: mains electricity is the primary fuel (despite the heat pump), broadband speeds in the area are reported slow, and mobile signal is average. Council Tax is Band E, reflecting above-average running costs. Overall, this is a polished, versatile family home in a quiet village setting with straightforward access to Norwich and local schools.

Property Details

Brochure Descriptions

Image Descriptions

Floorplan Description

Rooms

Textual Property Features

Target Audience

AI Tags

Detected Visual Features

EPC Details

Nearby Schools

Nearest Bars And Restaurants

,,,,}

Nearest General Shops

,,}

Nearest Grocery shops

,,}

Nearest Supermarkets

,,}

Nearest Religious buildings

,,}

Nearest Medical buildings

,,,}

Nearest Leisure Facilities

,,,,}

Nearest Tourist attractions

,,}

Nearest Train stations

,,,,}

Nearest Bus stations and stops

,,,,}

Nearest Hotels

,,}

Tags

Local Market Stats

Similar Properties

Meta

High Res Images

Compatible Images

Low res Images

Thumbnails

Raw Images

High Res Floorplan Images

Compatible Floorplan Images

Low res Floorplan Images

FloorplanImages Thumbnail

Raw Floorplan Images