Large family home with garden, parking and no onward chain.
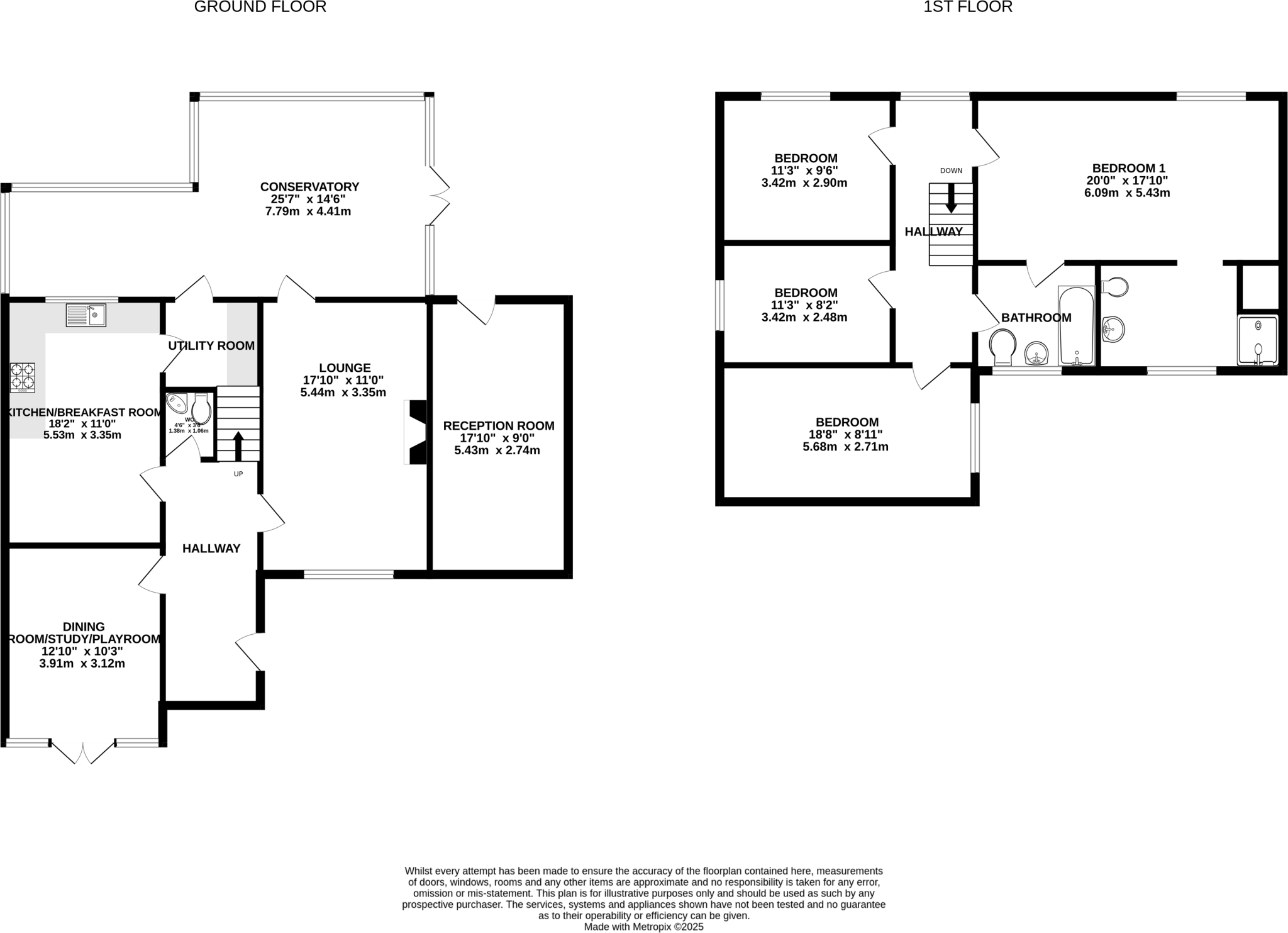
- Over 2,000 sq ft living space across spacious rooms
- Four double bedrooms; principal bedroom with en suite
- Large 18ft kitchen and 25ft conservatory to garden
- Three reception rooms ideal for family and entertaining
- Large, private rear garden; corner plot with several parking spaces
- EPC C (70); Council Tax Band E (above average)
- Potential dampness reported in living room — survey advised
- Built 1980s; good order but scope to modernise and personalise
Spacious four-bedroom detached house arranged over more than 2,000 sq ft, set at the end of a quiet cul-de-sac in Heathermount, Bracknell. The ground floor offers three reception rooms, an 18ft kitchen–breakfast room, utility and a 25ft conservatory that opens to a private, enclosed rear garden — good for family life and entertaining.
The principal bedroom includes an en suite and there is a large family bathroom plus driveway parking for several cars and additional communal spaces. The property was built in the 1980s and benefits from double glazing, mains gas central heating and an EPC rating of C (70). Council Tax is Band E.
The house is presented in good order but offers clear scope for buyers to personalise and update finishes. Note the living room has a potential dampness concern reported and buyers may want to survey structural and services prior to commitment. No onward chain and freehold tenure make for a straightforward purchase route.
Local amenities, good primary and secondary schools nearby and fast broadband make this a practical family location. For purchasers seeking space, privacy and scope to modernise, this property delivers a large, flexible layout in an affluent Bracknell neighbourhood.
4 bedroom detached house for sale in Heathermount, Bracknell, Berkshire, RG12 — £625,000 • 4 bed • 2 bath • 2153 ft²
4 bedroom detached house for sale in Heathermount, Bracknell, RG12 — £625,000 • 4 bed • 2 bath • 1894 ft²
4 bedroom detached house for sale in Eddington Road, Bracknell, Berkshire, RG12 — £575,000 • 4 bed • 3 bath • 1188 ft²
4 bedroom detached house for sale in Candleford Close, Bracknell, Berkshire, RG12 — £635,000 • 4 bed • 1 bath • 1723 ft²
4 bedroom detached house for sale in Trefoil Close, Wokingham, Berkshire, RG40 5YQ, RG40 — £635,000 • 4 bed • 2 bath • 1355 ft²
4 bedroom terraced house for sale in Tebbit Close, Bracknell, Berkshire, RG12 — £425,000 • 4 bed • 2 bath • 1060 ft²










































































